Acquisto Assistito - in Asta e Pre-Asta

In vendita
Appartamento
Cremona
57.975 €
Descrizione
Acquisto Assistito - in Asta e Pre-Asta
Per maggiori proposte visita il sito dell’agenzia: www.asteagency.com

Verifica fattibilità d’acquisto in PRE-ASTA

DATA ASTA: 26/03/2026

UBICAZIONE E DESCRIZIONE:
Via Degli Ippocastani 9 - 26100 - Cremona

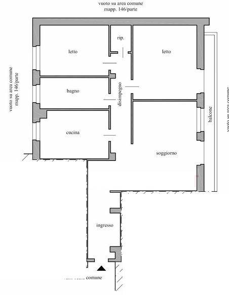
Descrizione sintetica: Appartamento al piano secondo composto da ingresso, soggiorno, cucina, due camere da letto, corridoio, un bagno ed un balcone, oltre al locale cantina posto al piano seminterrato e box auto di mq 10,00.

Aste Agency SRL offre il servizio di assistenza per acquistare tramite un mutuo con banche convenzionate. Assiste ed indirizza, dall’aggiudicazione fino alla consegna delle chiavi.

PERCHE’ COMPRARE ALL’ASTA:
- Acquisto sicuro tramite Tribunale;
- Prezzo inferiore rispetto al mercato libero, quindi rata del mutuo più bassa;
- Banche convenzionate con i Tribunali;
- Nessun vincolo di prezzo nella rivendita e nella locazione.

Le Aste Giudiziarie sono soluzioni abitative a prezzi unici, in quanto si compera ad un prezzo inferiore, paragonato alla realtà proibitiva del mercato libero, e l’investimento immobiliare risulta essere sicuramente conveniente.
Per maggiori delucidazioni vi invitiamo a contattarci. Sarà nostra premura fissare un appuntamento in studio e trasferirvi tutte le informazioni necessarie per un’attenta e serena valutazione.

ASTE AGENCY SRL – Contattateci per un appuntamento presso uno dei nostri uffici o in videochiamata.
Caratteristiche principali
Codice:
76.25.260326.CR
Città:
Cremona
Categoria:
Appartamento
Locali:
4
Camere:
2
Bagni:
1
Mq:
99
Box:
1
Balconi:
1
Piano:
2
Anno:
1964
Classe energetica:
G
Stato Immobile:
Buono
Grado:
Medio
Tipo Cucina:
Abitabile
Riscaldamento:
Autonomo
Fonte Energetica:
Metano
Accesso Disabili:
No
Mappa
Via Degli Ippocastani , 9 - Cremona (CR)
Planimetrie
Richiedi informazioni
Invia
Cookie preference