Acquisto Assistito - in Asta e Pre-Asta

In vendita
Villa
Santa Lucia di Piave
229.800 €
Descrizione
Per maggiori proposte visita il sito dell’agenzia: www.asteagency.com

Verifica fattibilità d’acquisto in PRE-ASTA

DATA ASTA: 03/02/26

UBICAZIONE E DESCRIZIONE:
Via Ungheresca, 29 – 31025 Santa Lucia di Piave (TV)
Descrizione sintetica: Villa sita in località Bolda così composta:
Al piano interrato, accessibile tramite la scala interna ed una rampa esterna, ci sono una cantina, suddivisa in due locali, separati da una parete di legno. E' presente un disimpegno, un piccolo vano sottoscala, un deposito utilizzato come sala biliardo, un ripostiglio, un bagno, con una parte che entra nella sagoma dell'attiguo magazzino-ripostiglio, un magazzino-ripostiglio ed un garage.
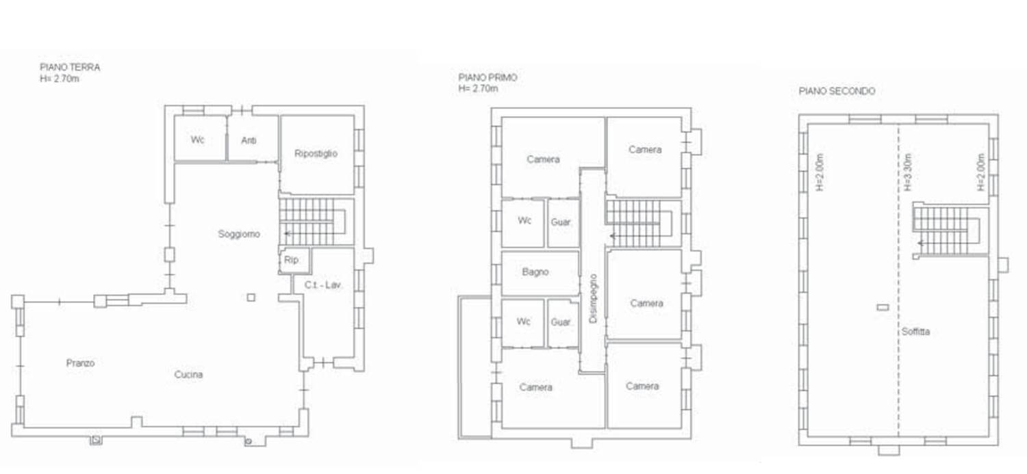
Il piano terra ha un portico, con pianta ad "L", ad est e nord, dal quale si accede all'ingresso principale. Gli altri ambienti sono: l'ingresso, un bagno, un ripostiglio-studio, il vano scale, un piccolo ripostiglio, un ampio spazio con cucina-pranzo e due zone soggiorno, una loggia, nell'angolo sud-est e una lavanderia-centrale termica accessibile dalla loggia. Una parte dell'ampia zona giorno, adibita a soggiorno, fuoriesce dalla sagoma dell'edificio, è ad un solo piano, con copertura a due falde in legno ed è dotata di caminetto.
Il piano primo è dotato di vano scale, un disimpegno, un bagno e 5 camere, tutte con superficie minima che soddisfa le caratteristiche di camera doppia; due di queste camere, sono dotate di bagno e guardaroba riservato. La camera esposta a sud-ovest è dotata di una terrazza; le 3 camere esposte ad est, sono dotate di balcone.
Il piano secondo ha il vano scale, con un lucernario in copertura, un piccolo ripostiglio adiacente al vano scale, accessibile da una piccola apertura posta a metà altezza, un grande ambiente adibito a cucina e pranzo, un bagno – accessibile dalla zona pranzo - dotato di ripostiglio, un soggiorno con un piccolo vano ricavato sopra il vano scale, un ripostiglio ed una camera dotata di bagno e 2 guardaroba riservati.
È compresa un’area scoperta esclusiva di mq. 1.431 catastali e un appezzamento di terreno agricolo di mq. 6.362 catastali.
I locali al piano seminterrato hanno una superficie di mq 171,70 con il garage di mq 25,80.
I locali al piano terra hanno una superficie di mq 177,50 con il portico e la loggia di mq 84,50.
I locali al piano primo hanno una superficie di mq 141,70 con terrazza di mq 11,10.
I locali al piano secondo (sottotetto) hanno una superficie di mq 141,70.

Aste Agency SRL offre il servizio di assistenza per acquistare tramite un mutuo con banche convenzionate. Assiste ed indirizza, dall’aggiudicazione fino alla consegna delle chiavi.

PERCHE’ COMPRARE ALL’ASTA:
- Acquisto sicuro tramite Tribunale;
- Prezzo inferiore rispetto al mercato libero, quindi rata del mutuo più bassa;
- Banche convenzionate con i Tribunali;
- Nessun vincolo di prezzo nella rivendita e nella locazione.

Le Aste Giudiziarie sono soluzioni abitative a prezzi unici, in quanto si compera ad un prezzo inferiore, paragonato alla realtà proibitiva del mercato libero, e l’investimento immobiliare risulta essere sicuramente conveniente.
Per maggiori delucidazioni vi invitiamo a contattarci. Sarà nostra premura fissare un appuntamento in studio e trasferirvi tutte le informazioni necessarie per un’attenta e serena valutazione.

ASTE AGENCY SRL – Contattateci per un appuntamento presso uno dei nostri uffici o in videochiamata.
Caratteristiche principali
Codice:
76.22.030226.TV
Città:
Santa Lucia di Piave
Categoria:
Villa
Locali:
8
Camere:
5
Bagni:
3
Mq:
555,4
Box:
1
Balconi:
4
Piano:
Terra
Anno:
2002
Classe energetica:
B
65,58
Stato Immobile:
Buono
Grado:
Signorile
Arredi:
Non Arredato
Tipo Cucina:
Abitabile
Riscaldamento:
Autonomo
Fonte Energetica:
Metano
Accesso Disabili:
No
Mappa
Via ungheresca, 29 - Santa Lucia di Piave (TV)
Richiedi informazioni
Invia
Cookie preference