Acquisto Assistito in Asta Giudiziaria

In vendita
Ufficio
Bolzano
169.988 €
Descrizione
Acquisto Assistito in Asta Giudiziaria
Per maggiori proposte visita il sito dell’agenzia: www.asteagency.com

Verifica fattibilità d’acquisto in Pre-Asta
DATA ASTA :17/12/2025 

Disponibilità:  Libero al decreto di trasferimento

UBICAZIONE E DESCRIZIONE:
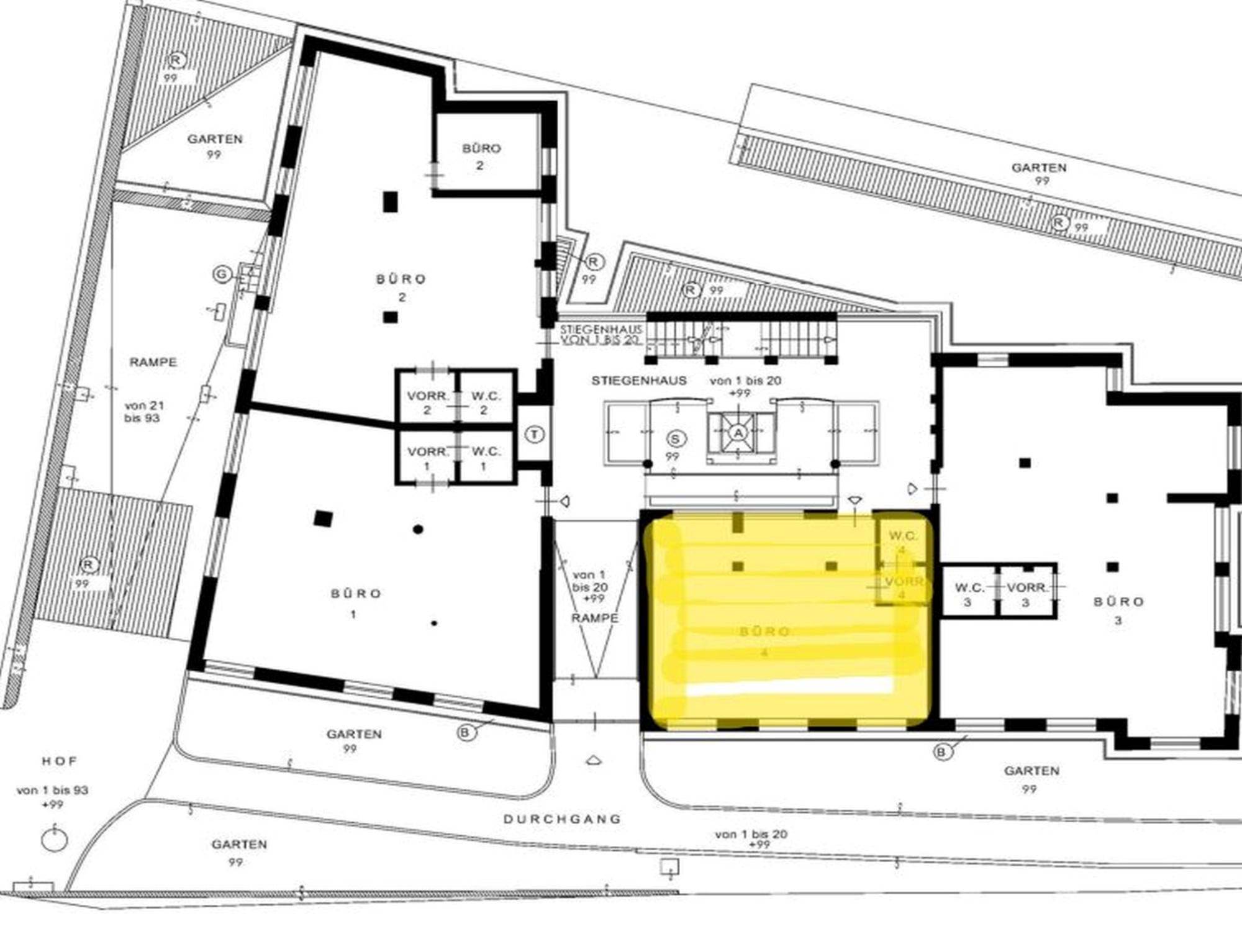
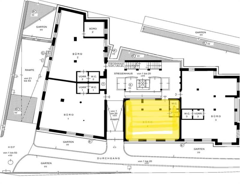
Indirizzo: Vicolo della Fossa, 3, 39100 Bolzano (BZ)

Descrizione sintetica:
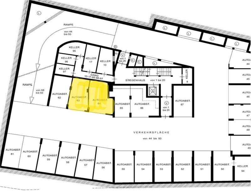
Proprietà di ufficio a BOLZANO Vicolo della Fossa 3, quartiere Gries , della superficie commerciale di 72,24 mq per la quota di 1/1 di piena proprietà con Due posti auto coperti a BOLZANO Vicolo della Fossa 3, quartiere Gries , della superficie commerciale di 36,00 mq. L'edificio si sviluppa su cinque piani fuori terra e tre piani interrati ed è composto da quattro uffici al piano terra (seminterrato), sedici unità abitative, ciascuna dotata di cantina e sessantatré unità destinate a garage o posti auto coperti, distribuite nei tre piani interrati. Sono inoltre presenti locali comuni, tra cui un ripostiglio, un locale contatori e una centrale termica. L'edificio è servito da un ampio vano scala con ascensore.

Superficie lorda commerciale ufficio mq: 72,24
Superficie lorda commerciale posti auto mq: 36,00


Home Agency offre il servizio di assistenza per acquistare tramite un mutuo con banche convenzionate. Assiste ed indirizza, dall’aggiudicazione fino alla consegna delle chiavi.

PERCHE’ COMPRARE ALL’ASTA:
- Acquisto sicuro tramite Tribunale;
- Prezzo inferiore rispetto al mercato libero, quindi rata del mutuo più bassa;
- Banche convenzionate con i Tribunali;
- Nessun vincolo di prezzo nella rivendita e nella locazione.

Le Aste Giudiziarie sono soluzioni abitative a prezzi unici, in quanto si compera ad un prezzo inferiore, paragonato alla realtà proibitiva del mercato libero, e l’investimento immobiliare risulta essere sicuramente conveniente.
Per maggiori delucidazioni vi invitiamo a contattarci. Sarà nostra premura fissare un appuntamento in studio e trasferirvi tutte le informazioni necessarie per un’attenta e serena valutazione.

PADOVA (PD) Via Giovanni Berchet, 10 - previo appuntamento
Bologna - Padova - Rovigo - Treviso - Venezia - Vicenza
Caratteristiche principali
Codice:
74.24.4.171225.BZ
Città:
Bolzano
Categoria:
Ufficio
Locali:
1
Bagni:
1
Mq:
72,24
Posti auto:
2
Piano:
Terra
Anno:
2003
Anno ristrutturazione:
2009
Classe energetica:
C
Stato Immobile:
Buono
Grado:
Signorile
Posizione:
Centro
Panorama:
Vista Aperta
Lati Liberi:
2
Arredi:
Non Arredato
Riscaldamento:
Centralizzato
Tipo Riscaldam.:
Caldaia
Tipo Impianto:
Radiatori
Fonte Energetica:
Metano
Acqua Calda:
Centralizzata
Raffrescamento:
No
Infissi:
Legno Doppio Vetro
Serramenti:
Buono
Persiana:
Personalizzato
Accesso Disabili:
Nessuna Barriera
Accesso interno disabili:
Pieno accesso
Accessori
Ascensore
Mappa
Vicolo della Fossa , 3 - Bolzano (BZ)
Richiedi informazioni
Invia
Cookie preference