Acquisto Assistito in Asta Giudiziaria

In vendita
Ufficio
Bolzano
248.344 €
Descrizione
Acquisto Assistito in Asta Giudiziaria
Per maggiori proposte visita il sito dell’agenzia:
www.asteagency.com

Verifica fattibilità d’acquisto in PRE-ASTA
DATA ASTA : 17/12/2025

Disponibilità: Libero al Decreto di Trasferimento

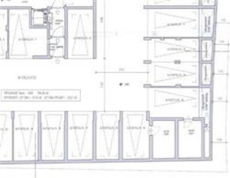
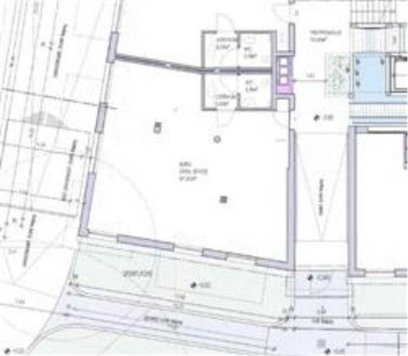
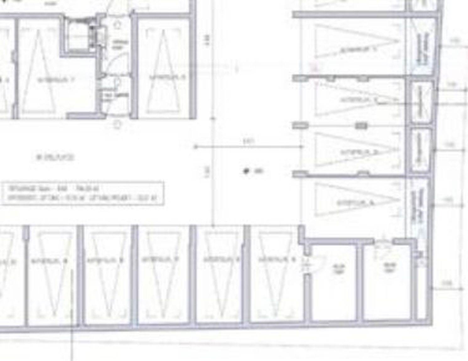
UBICAZIONE E DESCRIZIONE:
Indirizzo: Vicolo della Fossa n. 3 – Bolzano (BZ)
Descrizione sintetica: Ufficio di 111 mq con cantina che si trova all'interno di un condominio situato in Vicolo della Fossa n. 3, a Bolzano, completato nel 2007 e n. 2 posti auto coperti di 31 mq. L'edificio si sviluppa su cinque piani fuori terra e tre piani interrati ed è composto da quattro uffici al piano terra (seminterrato), sedici unità abitative, ciascuna dotata di cantina e sessantatré unità destinate a garage o posti auto coperti, distribuite nei tre piani interrati. Sono inoltre presenti locali comuni, tra cui un ripostiglio, un locale contatori e una centrale termica. L'edificio è servito da un ampio vano scala con ascensore.

Aste Agency SRL offre il servizio di assistenza per acquistare tramite un mutuo con banche convenzionate. Assiste ed indirizza, dall’aggiudicazione fino alla consegna delle chiavi.

PERCHE’ COMPRARE ALL’ASTA:
- Acquisto sicuro tramite Tribunale;
- Prezzo inferiore rispetto al mercato libero, quindi rata del mutuo più bassa;
- Banche convenzionate con i Tribunali;
- Nessun vincolo di prezzo nella rivendita e nella locazione.

Le Aste Giudiziarie sono soluzioni abitative a prezzi unici, in quanto si compera ad un prezzo inferiore, paragonato alla realtà proibitiva del mercato libero, e l’investimento immobiliare risulta essere sicuramente conveniente.
Per maggiori delucidazioni vi invitiamo a contattarci. Sarà nostra premura fissare un appuntamento in studio e trasferirvi tutte le informazioni necessarie per un’attenta e serena valutazione.

ASTE AGENCY SRL – Contattateci per un appuntamento presso uno dei nostri uffici o in videochiamata.
Caratteristiche principali
Codice:
74.24.1.171225.BZ
Città:
Bolzano
Categoria:
Ufficio
Locali:
3
Camere:
2
Bagni:
1
Mq:
110,87
Posti auto:
2
Piano:
1
Anno:
2007
Classe energetica:
C
Stato Immobile:
Buono
Grado:
Medio
Arredi:
Non Arredato
Riscaldamento:
Centralizzato
Tipo Riscaldam.:
Caldaia
Tipo Impianto:
Radiatori
Fonte Energetica:
Metano
Infissi:
Legno Doppio Vetro
Accesso Disabili:
No
Mappa
Vicolo della Fossa, 39100 Bolzano BZ, Italia, 3 - Bolzano (BZ)
Richiedi informazioni
Invia
Cookie preference