Acquisto Assistito in Asta Giudiziaria

In vendita
Villetta schiera
Esine
261.563 €
Descrizione
Acquisto Assistito in Asta Giudiziaria
Per maggiori proposte visita il sito dell’agenzia: www.asteagency.com

Verifica fattibilità d’acquisto in Pre-Asta
DATA ASTA : 10/12/2025

Disponibilità: Libero al decreto di trasferimento

UBICAZIONE E DESCRIZIONE:
Indirizzo: via Saletti n. 14 - 25040 - Esine(BS)

Descrizione sintetica:
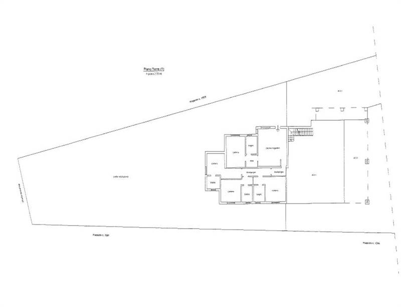
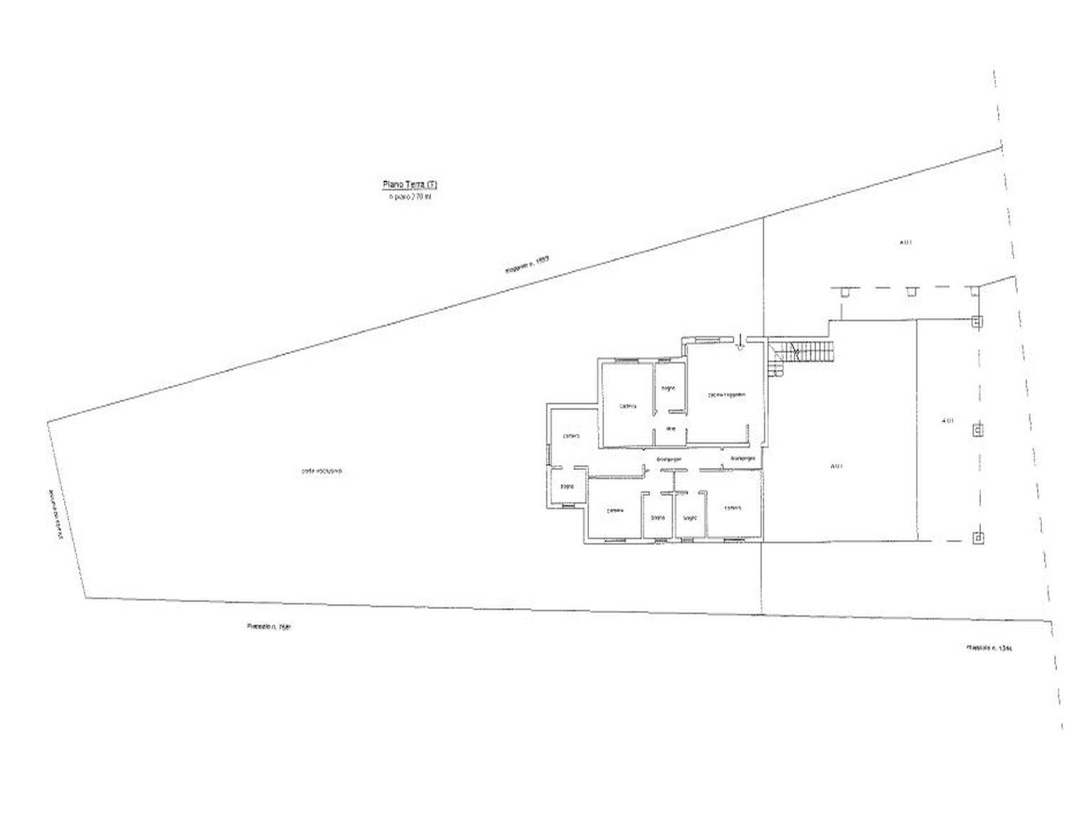
Trattasi di una porzione di una villa bifamiliare di grandi dimensioni su un piano fuori terra, un piano sottotetto e un piano interrato con ampio giardino pertinenziale esclusivo. Il lotto interamente recintato da muretto con sovrastante rete metallica; attualmente l’accesso principale all’immobile, sia pedonale che carraio avviene dalla via Saletti n. 14.
La porzione oggetto di esecuzione è così composta :
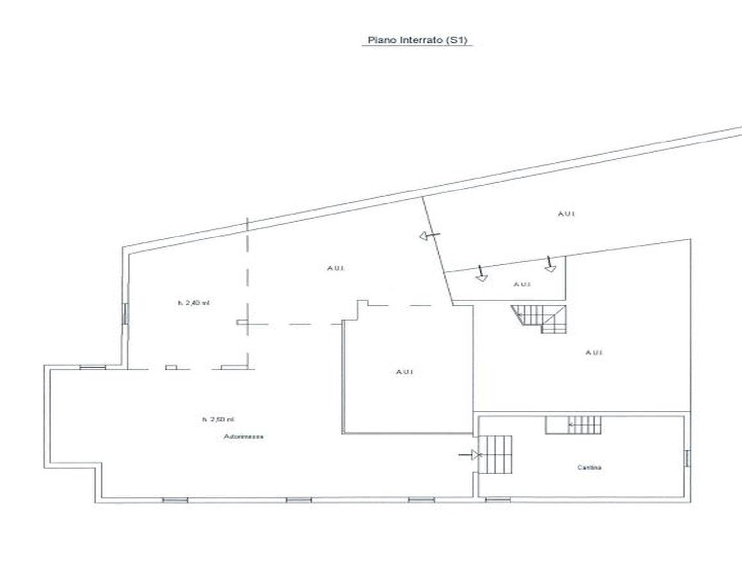
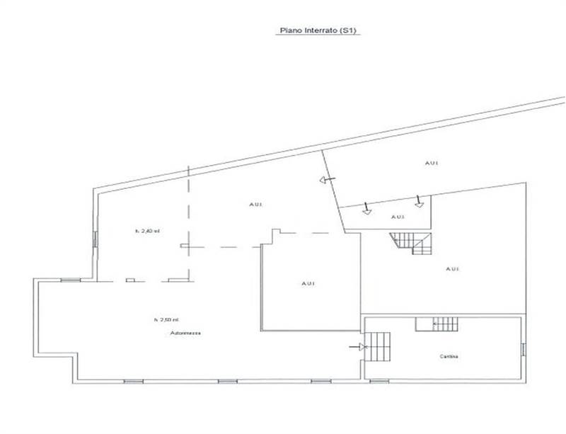
-al piano interrato si trovano: • una autorimessa di circa mq 193,• una cantina per complessivi mq 53 ,• un locale centrale termica di circa mq 12 in comune con altre unità immobiliari,
-al terra primo si trovano: • cucina/soggiorno, un atrio, disimpegni e corridoi, 4 camere e 4 bagni per complessivi mq 151 .
Completa la proprietà un ’ ampia area pertinenziale in parte a verde e in parte pavimentata di circa mq 637.

Superficie lorda commerciale mq: 315,98

Home Agency offre il servizio di assistenza per acquistare tramite un mutuo con banche convenzionate. Assiste ed indirizza, dall’aggiudicazione fino alla consegna delle chiavi.

PERCHE’ COMPRARE ALL’ASTA:
- Acquisto sicuro tramite Tribunale;
- Prezzo inferiore rispetto al mercato libero, quindi rata del mutuo più bassa;
- Banche convenzionate con i Tribunali;
- Nessun vincolo di prezzo nella rivendita e nella locazione.

Le Aste Giudiziarie sono soluzioni abitative a prezzi unici, in quanto si compera ad un prezzo inferiore, paragonato alla realtà proibitiva del mercato libero, e l’investimento immobiliare risulta essere sicuramente conveniente.
Per maggiori delucidazioni vi invitiamo a contattarci. Sarà nostra premura fissare un appuntamento in studio e trasferirvi tutte le informazioni necessarie per un’attenta e serena valutazione.

VERONA (VR) Vicolo Dietro Caserma Chiodo 22/C- previo appuntamento
Bologna - Padova - Rovigo - Treviso - Venezia - Vicenza
Caratteristiche principali
Codice:
736.12.101225.BS
Città:
Esine
Categoria:
Villetta schiera
Locali:
5
Camere:
4
Bagni:
4
Mq:
151
Box:
1
Mq Box:
193
Mq Giardino:
637
Piano:
Terra
Anno:
2006
Anno ristrutturazione:
2023
Classe energetica:
G
Stato Immobile:
Buono
Grado:
Signorile
Posizione:
Collina
Panorama:
Vista Aperta
Lati Liberi:
3
Giardino:
Privato
Arredi:
Non Arredato
Tipo Soggiorno:
Soggiorno
Tipo Cucina:
Angolo Cottura
Riscaldamento:
Autonomo
Tipo Riscaldam.:
Caldaia
Tipo Impianto:
Radiatori
Fonte Energetica:
Metano
Acqua Calda:
Autonoma
Raffrescamento:
No
Infissi:
Legno Doppio Vetro
Serramenti:
Buono
Persiana:
Persiana Legno
Accesso Disabili:
Nessuna Barriera
Accesso interno disabili:
Parziale
Mappa
via Saletti , 14 - Esine (BS)
Video
Richiedi informazioni
Invia
Cookie preference