Acquisto Assistito in Asta e Pre-Asta

In vendita
Appartamento
Mesagne
39.443 €
Descrizione
Acquisto Assistito in Asta e Pre-Asta
Per maggiori proposte visita il sito dell’agenzia: www.asteagency.com

Verifica fattibilità d’acquisto in PRE-ASTA

DATA ASTA: 23/03/2026

UBICAZIONE E DESCRIZIONE:
Via Cicerone 3, 72023 Mesagne Brindisi

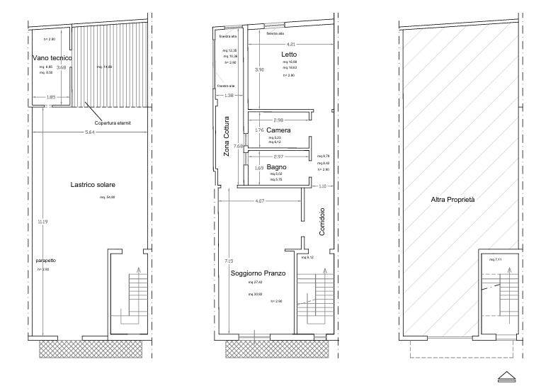
Descrizione sintetica: Appartamento al piano primo composto da un ingresso con un lungo corridoio e due camere, un bagno ed un soggiorno-pranzo con affaccio da balcone di mq 4,26 su prospetto principale. La zona cottura, collegata al soggiorno, è ricavata su di una veranda chiusa con finestre alte. Mediante altre due rampe di scale, si accede al lastrico solare di mq 54,80 dove vi è un vano tecnico nel quale è allocata la caldaia.

Aste Agency SRL offre il servizio di assistenza per acquistare tramite un mutuo con banche convenzionate. Assiste ed indirizza, dall’aggiudicazione fino alla consegna delle chiavi.

PERCHE’ COMPRARE ALL’ASTA:
- Acquisto sicuro tramite Tribunale;
- Prezzo inferiore rispetto al mercato libero, quindi rata del mutuo più bassa;
- Banche convenzionate con i Tribunali;
- Nessun vincolo di prezzo nella rivendita e nella locazione.

Le Aste Giudiziarie sono soluzioni abitative a prezzi unici, in quanto si compera ad un prezzo inferiore, paragonato alla realtà proibitiva del mercato libero, e l’investimento immobiliare risulta essere sicuramente conveniente.
Per maggiori delucidazioni vi invitiamo a contattarci. Sarà nostra premura fissare un appuntamento in studio e trasferirvi tutte le informazioni necessarie per un’attenta e serena valutazione.

ASTE AGENCY SRL – Contattateci per un appuntamento presso uno dei nostri uffici o in videochiamata.
Caratteristiche principali
Codice:
7.24.230326.BR
Città:
Mesagne
Categoria:
Appartamento
Locali:
3
Camere:
2
Bagni:
1
Mq:
109
Balconi:
1
Terrazzi:
1
Piano:
1
Anno:
1967
Classe energetica:
G
Stato Immobile:
Buono
Grado:
Medio
Tipo Cucina:
Angolo Cottura
Riscaldamento:
Autonomo
Tipo Impianto:
Radiatori
Fonte Energetica:
Metano
Accesso Disabili:
No
Mappa
Via Cicerone , 3 - Mesagne (BR)
Planimetrie
Richiedi informazioni
Invia
Cookie preference