Acquisto Assistito in Asta Giudiziaria

In vendita
Appartamento
Cles
57.750 €
Descrizione
Acquisto Assistito in Asta Giudiziaria
Per maggiori proposte visita il sito dell’agenzia: www.asteagency.com

Verifica fattibilità d’acquisto in Pre-Asta
DATA ASTA : 13/01/2026

Disponibilità:  Libero al decreto di trasferimento

UBICAZIONE E DESCRIZIONE:
Indirizzo: Via San Vito10 - 38023 - Cles(TN)

Descrizione sintetica:
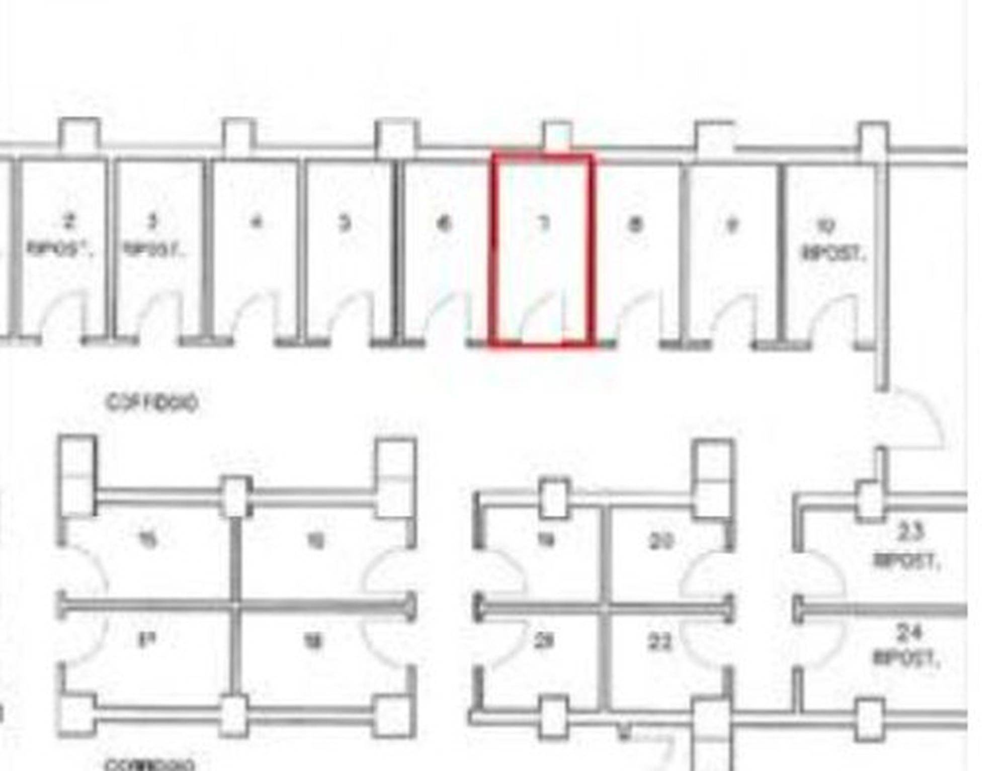
Intera piena proprietà di unità immobiliare posta a piano terzo in edificio a carattere condominiale denominato “Condominio Residenza Punto Verde” con locale ripostiglio/soffitta a piano sottotetto e locale ripostiglio/cantina a piano seminterrato nonché parti comuni.
Composizione: al P.T.: ripostiglio/cantina; a P 3: ingresso/cucina, soggiorno, bagno, 3 stanze, terrazzo; a P.4 (soppalco): ripostiglio/soffitta.

Superficie lorda commerciale mq: 78,73

Home Agency offre il servizio di assistenza per acquistare tramite un mutuo con banche convenzionate. Assiste ed indirizza, dall’aggiudicazione fino alla consegna delle chiavi.

PERCHE’ COMPRARE ALL’ASTA:
- Acquisto sicuro tramite Tribunale;
- Prezzo inferiore rispetto al mercato libero, quindi rata del mutuo più bassa;
- Banche convenzionate con i Tribunali;
- Nessun vincolo di prezzo nella rivendita e nella locazione.

Le Aste Giudiziarie sono soluzioni abitative a prezzi unici, in quanto si compera ad un prezzo inferiore, paragonato alla realtà proibitiva del mercato libero, e l’investimento immobiliare risulta essere sicuramente conveniente.
Per maggiori delucidazioni vi invitiamo a contattarci. Sarà nostra premura fissare un appuntamento in studio e trasferirvi tutte le informazioni necessarie per un’attenta e serena valutazione.

VERONA (VR) Vicolo Dietro Caserma Chiodo n. 22/C - previo appuntamento
Bologna - Padova - Rovigo - Treviso - Venezia - Vicenza
Caratteristiche principali
Codice:
67.24.130126.TN
Città:
Cles
Categoria:
Appartamento
Locali:
4
Camere:
3
Bagni:
1
Mq:
75,5
Terrazzi:
1
mq Terrazzo:
2,13
Piano:
3
Anno:
1357
Anno ristrutturazione:
2023
Classe energetica:
G
Stato Immobile:
Buono
Grado:
Signorile
Posizione:
Periferia
Panorama:
Vista Aperta
Lati Liberi:
1
Giardino:
Comune
Arredi:
Non Arredato
Tipo Soggiorno:
Soggiorno
Tipo Cucina:
Abitabile
Riscaldamento:
Autonomo
Tipo Riscaldam.:
Termocamino
Tipo Impianto:
Aria
Fonte Energetica:
Pellet
Acqua Calda:
Autonoma
Raffrescamento:
No
Infissi:
Legno Doppio Vetro
Serramenti:
Buono
Accesso Disabili:
No
Accesso interno disabili:
Non accessibile
Mappa
Via San Vito, 10 - Cles (TN)
Richiedi informazioni
Invia
Cookie preference