Acquisto Assistito in Asta Giudiziaria

In vendita
Appartamento
Treviso
309.750 €
Descrizione
Acquisto Assistito in Asta Giudiziaria
Per maggiori proposte visita il sito dell’agenzia: www.asteagency.com

Verifica fattibilità d’acquisto in PRE-ASTA

DATA ASTA : 27/01/26

UBICAZIONE E DESCRIZIONE:
Indirizzo: Viale Graziano Appiani, 22 – 31100 Treviso (TV)
Descrizione sintetica:
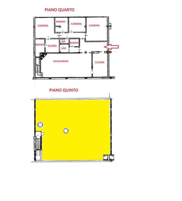
Unità immobiliari facenti parte di un fabbricato in condominio denominato “Porta Appiani”, costituite da: appartamento al quarto piano composto da ingresso, cucina, soggiorno, tre camere, ripostiglio, guardaroba e lavanderia e tre bagni; terrazza al quinto piano di circa mq. 182. Garage di mq. 31 al primo piano interrato

Superficie lorda commerciale mq: 176,54
Superficie garage mq. 15,57
Superficie terrazza mq. 91,33

Aste Agency SRL offre il servizio di assistenza per acquistare tramite un mutuo con banche convenzionate. Assiste ed indirizza, dall’aggiudicazione fino alla consegna delle chiavi.

PERCHE’ COMPRARE ALL’ASTA:
- Acquisto sicuro tramite Tribunale;
- Prezzo inferiore rispetto al mercato libero, quindi rata del mutuo più bassa;
- Banche convenzionate con i Tribunali;
- Nessun vincolo di prezzo nella rivendita e nella locazione.

Le Aste Giudiziarie sono soluzioni abitative a prezzi unici, in quanto si compera ad un prezzo inferiore, paragonato alla realtà proibitiva del mercato libero, e l’investimento immobiliare risulta essere sicuramente conveniente.
Per maggiori delucidazioni vi invitiamo a contattarci. Sarà nostra premura fissare un appuntamento in studio e trasferirvi tutte le informazioni necessarie per un’attenta e serena valutazione.

ASTE AGENCY SRL – Contattateci per un appuntamento presso uno dei nostri uffici o in videochiamata.
Caratteristiche principali
Codice:
62.21.270126.TV
Città:
Treviso
Categoria:
Appartamento
Locali:
5
Camere:
3
Bagni:
3
Mq:
176,54
Box:
1
Mq Box:
15,57
Terrazzi:
1
mq Terrazzo:
91,33
Piano:
4
Anno:
1993
Classe energetica:
D
Stato Immobile:
Buono
Grado:
Signorile
Lati Liberi:
3
Giardino:
No
Arredi:
Non Arredato
Tipo Soggiorno:
Soggiorno
Tipo Cucina:
Abitabile
Riscaldamento:
Autonomo
Tipo Riscaldam.:
Caldaia
Tipo Impianto:
Radiatori
Fonte Energetica:
Metano
Acqua Calda:
Autonoma
Raffrescamento:
Split
Infissi:
Legno Doppio Vetro
Serramenti:
Buono
Persiana:
Tapparella PVC
Pavim. Giorno:
Parquet
Pavim. Notte:
Parquet
Pavim. Cucina:
Gres Porcellanato
Pavim. Bagno:
Gres Porcellanato
Pavimento:
Parquet
Tipo Saracinesca:
Manuale
Accesso Disabili:
Nessuna Barriera
Accesso interno disabili:
Pieno accesso
Accessori
Aria Condizionata
Ascensore
Doppi Vetri
Lavanderia
Porta Blindata
Ripostiglio
Tende da Sole
Video Citofono
Zanzariere
Mappa
Viale Graziano Appiani, 22 - Treviso (TV)
Richiedi informazioni
Invia
Cookie preference