Acquisto Assistito - in Asta e Pre-Asta

In vendita
Villa
Carate Brianza
484.650 €
Descrizione
Acquisto Assistito - in Asta e Pre-Asta
Per maggiori proposte visita il sito dell’agenzia: www.asteagency.com

Verifica fattibilità d’acquisto in PRE-ASTA

DATA ASTA: 13/02/2026

UBICAZIONE E DESCRIZIONE:
Via Stanga Busca, 2, 20841 Costa Lambro MB

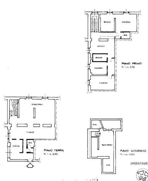
Descrizione sintetica: Villa su tre livelli composta da due appartamenti soggiorno, cucina, tinello e bagno al piano terra, da tre camere, studio, bagni e ripostiglio al piano primo oltre a cantina di mq 10,00 al piano seminterrato, box auto di mq 31,00, posto auto di mq 13,00 e giardino di mq 342,00.

Aste Agency SRL offre il servizio di assistenza per acquistare tramite un mutuo con banche convenzionate. Assiste ed indirizza, dall’aggiudicazione fino alla consegna delle chiavi.

PERCHE’ COMPRARE ALL’ASTA:
- Acquisto sicuro tramite Tribunale;
- Prezzo inferiore rispetto al mercato libero, quindi rata del mutuo più bassa;
- Banche convenzionate con i Tribunali;
- Nessun vincolo di prezzo nella rivendita e nella locazione.

Le Aste Giudiziarie sono soluzioni abitative a prezzi unici, in quanto si compera ad un prezzo inferiore, paragonato alla realtà proibitiva del mercato libero, e l’investimento immobiliare risulta essere sicuramente conveniente.
Per maggiori delucidazioni vi invitiamo a contattarci. Sarà nostra premura fissare un appuntamento in studio e trasferirvi tutte le informazioni necessarie per un’attenta e serena valutazione.

ASTE AGENCY SRL – Contattateci per un appuntamento presso uno dei nostri uffici o in videochiamata.
Caratteristiche principali
Codice:
6.24.130226.MB
Città:
Carate Brianza
Categoria:
Villa
Locali:
8
Camere:
3
Bagni:
2
Mq:
352,4
Box:
1
Posti auto:
1
Piano:
Terra
Anno:
1967
Classe energetica:
G
Stato Immobile:
Buono
Grado:
Medio
Tipo Cucina:
Abitabile
Riscaldamento:
Autonomo
Fonte Energetica:
Metano
Accesso Disabili:
No
Mappa
Via Stanga Busca, 2 - Carate Brianza (MB)
Planimetrie
Richiedi informazioni
Invia
Cookie preference