Acquisto Assistito - in Asta e Pre-Asta

In vendita
Appartamento
Fano
229.867 €
Descrizione
Acquisto Assistito in Asta Giudiziaria
Per maggiori proposte visita il sito dell’agenzia: www.asteagency.com

Verifica fattibilità d’acquisto in PRE-ASTA

DATA ASTA : 23/04/26

UBICAZIONE E DESCRIZIONE: Via Carlo Poma, 3, Fano, PU.

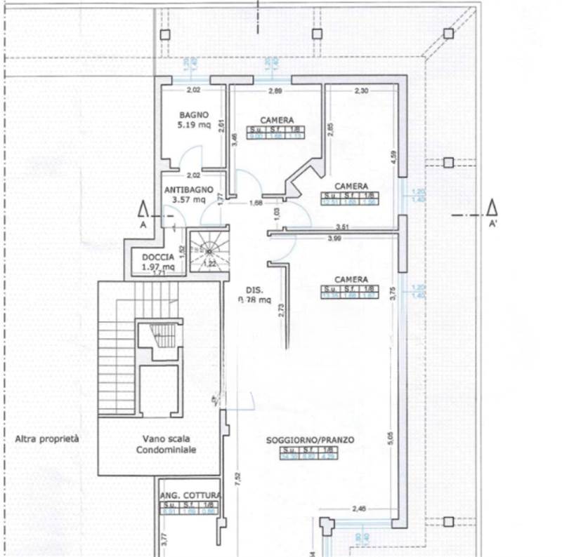
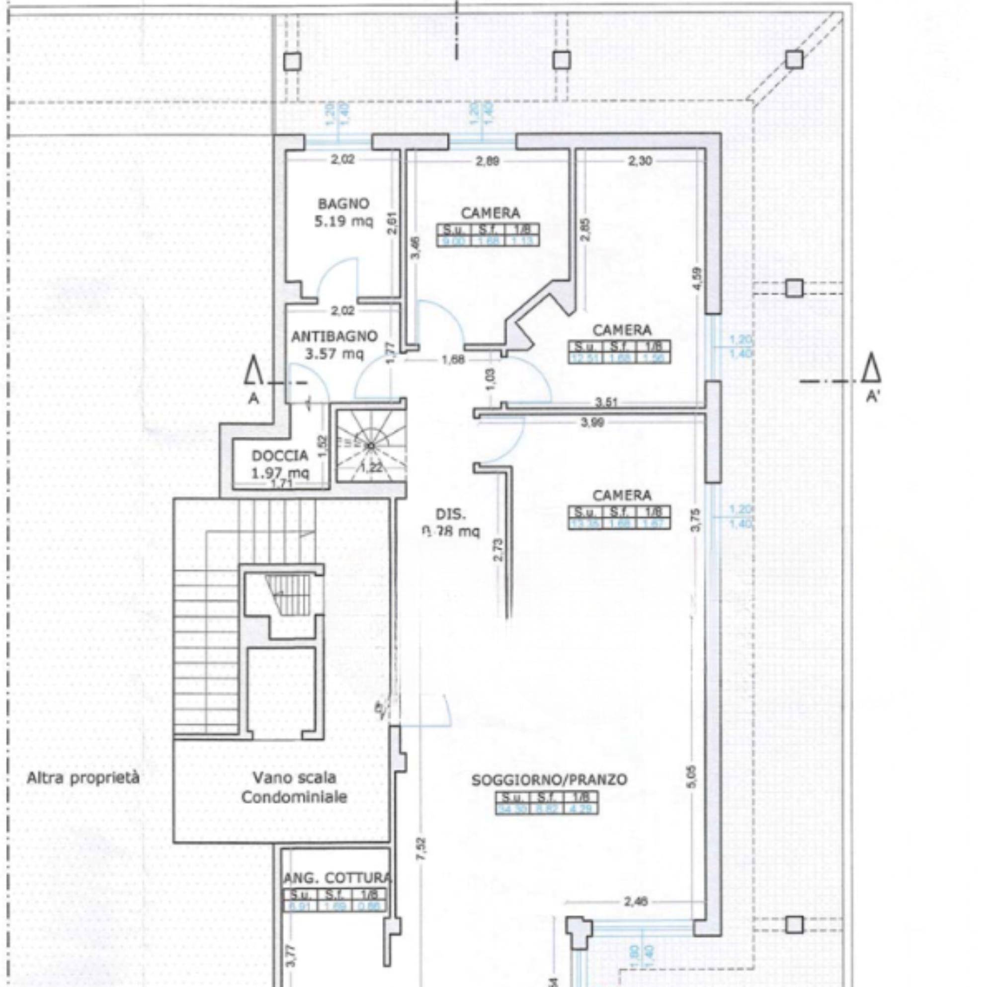
Descrizione sintetica: Appartamento al quarto e quinto piano composto da
ingresso, soggiorno, angolo cottura, disimpegno, tre camere da letto, un bagno, terrazzo panoramico al quinto piano sotto tetto.

Aste Agency SRL offre il servizio di assistenza per acquistare tramite un mutuo con banche convenzionate. Assiste ed indirizza, dall’aggiudicazione fino alla consegna delle chiavi.

PERCHE’ COMPRARE ALL’ASTA:
- Acquisto sicuro tramite Tribunale;
- Prezzo inferiore rispetto al mercato libero, quindi rata del mutuo più bassa;
- Banche convenzionate con i Tribunali;
- Nessun vincolo di prezzo nella rivendita e nella locazione.

Le Aste Giudiziarie sono soluzioni abitative a prezzi unici, in quanto si compera ad un prezzo inferiore, paragonato alla realtà proibitiva del mercato libero, e l’investimento immobiliare risulta essere sicuramente conveniente.
Per maggiori delucidazioni vi invitiamo a contattarci. Sarà nostra premura fissare un appuntamento in studio e trasferirvi tutte le informazioni necessarie per un’attenta e serena valutazione.

ASTE AGENCY SRL – Contattateci per un appuntamento presso uno dei nostri uffici o in videochiamata.
Caratteristiche principali
Codice:
55.25.230426.PU
Città:
Fano
Categoria:
Appartamento
Locali:
4
Camere:
3
Bagni:
1
Mq:
134
Posti auto:
1
Terrazzi:
1
Piano:
4
Anno:
1971
Classe energetica:
G
Stato Immobile:
Buono
Grado:
Medio
Tipo Cucina:
Angolo Cottura
Riscaldamento:
Autonomo
Tipo Impianto:
Radiatori
Fonte Energetica:
Metano
Raffrescamento:
Split
Accesso Disabili:
No
Accessori
Aria Condizionata
Camino
Canna Fumaria
Ripostiglio
Mappa
Via Carlo Poma, 3 - Fano (PU)
Planimetrie
Richiedi informazioni
Invia
Cookie preference