Acquisto Assistito in Asta e Pre-Asta

In vendita
Appartamento
Torchiarolo
46.245 €
Descrizione
Acquisto Assistito in Asta e Pre-Asta
Per maggiori proposte visita il sito dell’agenzia: www.asteagency.com

Verifica fattibilità d’acquisto in PRE-ASTA

DATA ASTA: 20/04/2026

UBICAZIONE E DESCRIZIONE:
Via Vincenzo Monti26/A - 72020 – Torchiarolo (BR)

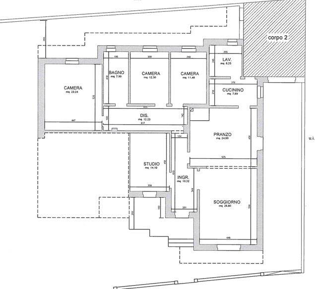
Descrizione sintetica: Appartamento al piano terra, composto da veranda di mq 12,53, ingresso, cucina con lavanderia, zona pranzo e soggiorno, uno studio, tre camere da letto di cui una usata come stireria e due bagni. Area di pertinenza antistante ed una nella parte retrostante di mq 28,47. Box singolo di mq 27,26.

Aste Agency SRL offre il servizio di assistenza per acquistare tramite un mutuo con banche convenzionate. Assiste ed indirizza, dall’aggiudicazione fino alla consegna delle chiavi.

PERCHE’ COMPRARE ALL’ASTA:
- Acquisto sicuro tramite Tribunale;
- Prezzo inferiore rispetto al mercato libero, quindi rata del mutuo più bassa;
- Banche convenzionate con i Tribunali;
- Nessun vincolo di prezzo nella rivendita e nella locazione.

Le Aste Giudiziarie sono soluzioni abitative a prezzi unici, in quanto si compera ad un prezzo inferiore, paragonato alla realtà proibitiva del mercato libero, e l’investimento immobiliare risulta essere sicuramente conveniente.
Per maggiori delucidazioni vi invitiamo a contattarci. Sarà nostra premura fissare un appuntamento in studio e trasferirvi tutte le informazioni necessarie per un’attenta e serena valutazione.

ASTE AGENCY SRL – Contattateci per un appuntamento presso uno dei nostri uffici o in videochiamata.
Caratteristiche principali
Codice:
54.23.200426.BR
Città:
Torchiarolo
Categoria:
Appartamento
Locali:
6
Camere:
3
Bagni:
2
Mq:
193
Box:
1
Piano:
Terra
Anno:
1984
Classe energetica:
G
Stato Immobile:
Buono
Grado:
Medio
Tipo Cucina:
Abitabile
Riscaldamento:
Autonomo
Tipo Impianto:
Radiatori
Fonte Energetica:
Metano
Accesso Disabili:
No
Mappa
Via Vincenzo Monti, 26/A - Torchiarolo (BR)
Planimetrie
Richiedi informazioni
Invia
Cookie preference