Acquisto Assistito in Asta e Pre-Asta

In vendita
Appartamento
Belluno
15.525 €
Descrizione
Acquisto Assistito in Asta Giudiziaria
Per maggiori proposte visita il sito dell’agenzia: www.asteagency.com

Verifica fattibilità d’acquisto in PRE-ASTA

DATA ASTA : 14/04/26

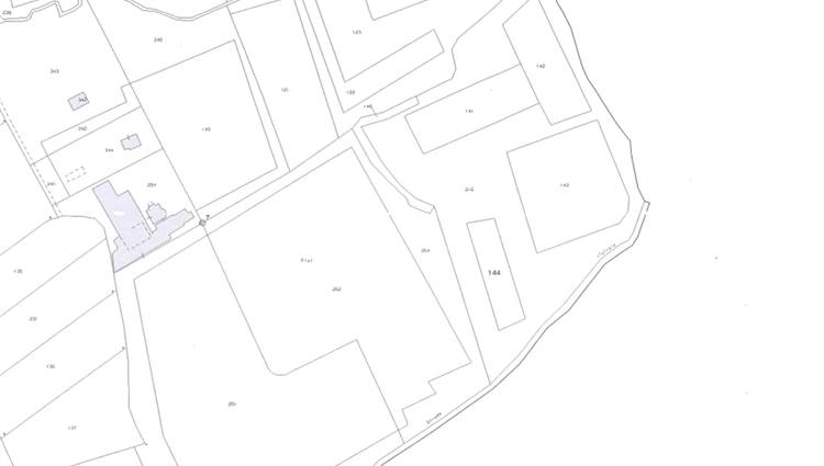
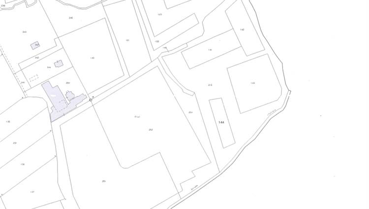
UBICAZIONE E DESCRIZIONE:
Via Salce, Belluno BL

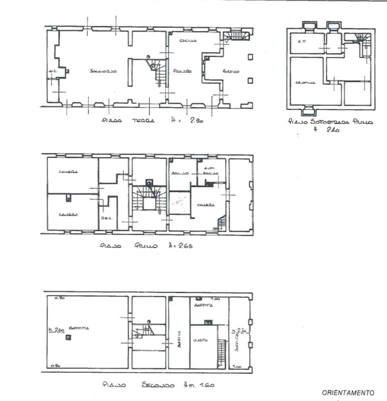
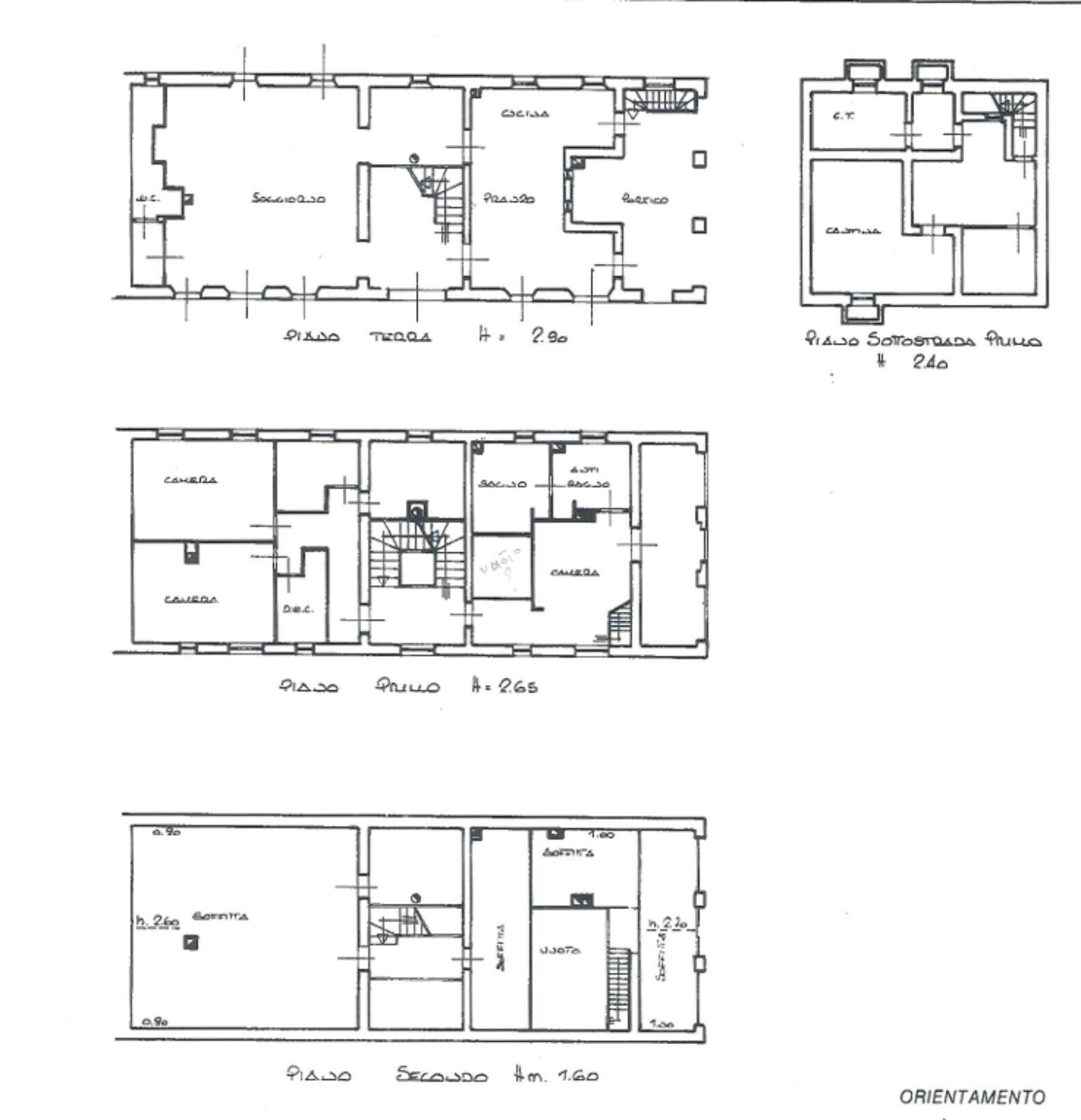
Descrizione sintetica: Abitazione utilizzata a deposito, su due livelli fuori terra, al margine di una serie di abitazioni, vi si accede dal cortile, tutta da ristrutturare. Al piano terra ingresso, con accesso ad un locale deposito, un corridoio conduce ad un ingresso, soggiorno con zona cottura, camera, bagno e piccola cantina. Al piano primo fienile. Totale superfice accessori, mq 48,90. Corte eprtinenziale di mq 30,00.


Aste Agency SRL offre il servizio di assistenza per acquistare tramite un mutuo con banche convenzionate. Assiste ed indirizza, dall’aggiudicazione fino alla consegna delle chiavi.

PERCHE’ COMPRARE ALL’ASTA:
- Acquisto sicuro tramite Tribunale;
- Prezzo inferiore rispetto al mercato libero, quindi rata del mutuo più bassa;
- Banche convenzionate con i Tribunali;
- Nessun vincolo di prezzo nella rivendita e nella locazione.

Le Aste Giudiziarie sono soluzioni abitative a prezzi unici, in quanto si compera ad un prezzo inferiore, paragonato alla realtà proibitiva del mercato libero, e l’investimento immobiliare risulta essere sicuramente conveniente.
Per maggiori delucidazioni vi invitiamo a contattarci. Sarà nostra premura fissare un appuntamento in studio e trasferirvi tutte le informazioni necessarie per un’attenta e serena valutazione.

ASTE AGENCY SRL – Contattateci per un appuntamento presso uno dei nostri uffici o in videochiamata.
Caratteristiche principali
Codice:
54.22.2.140426.BL
Città:
Belluno
Categoria:
Appartamento
Locali:
2
Camere:
1
Bagni:
1
Mq:
92
Piano:
Terra
Anno:
1977
Classe energetica:
G
Stato Immobile:
Buono
Grado:
Medio
Tipo Cucina:
Angolo Cottura
Riscaldamento:
Autonomo
Fonte Energetica:
Metano
Accesso Disabili:
No
Mappa
Via salce, - Belluno (BL)
Planimetrie
Richiedi informazioni
Invia
Cookie preference