Acquisto Assistito - in Asta e Pre-Asta

In vendita
Appartamento
Montorio al Vomano
58.500 €
Descrizione
Acquisto Assistito in Asta Giudiziaria
Per maggiori proposte visita il sito dell’agenzia: www.asteagency.com

Verifica fattibilità d’acquisto in PRE-ASTA

DATA ASTA : 28/01/26

UBICAZIONE E DESCRIZIONE:
Indirizzo: Viale Risorgimento, 9, 64046 Montorio Al Vomano TE


Descrizione sintetica:
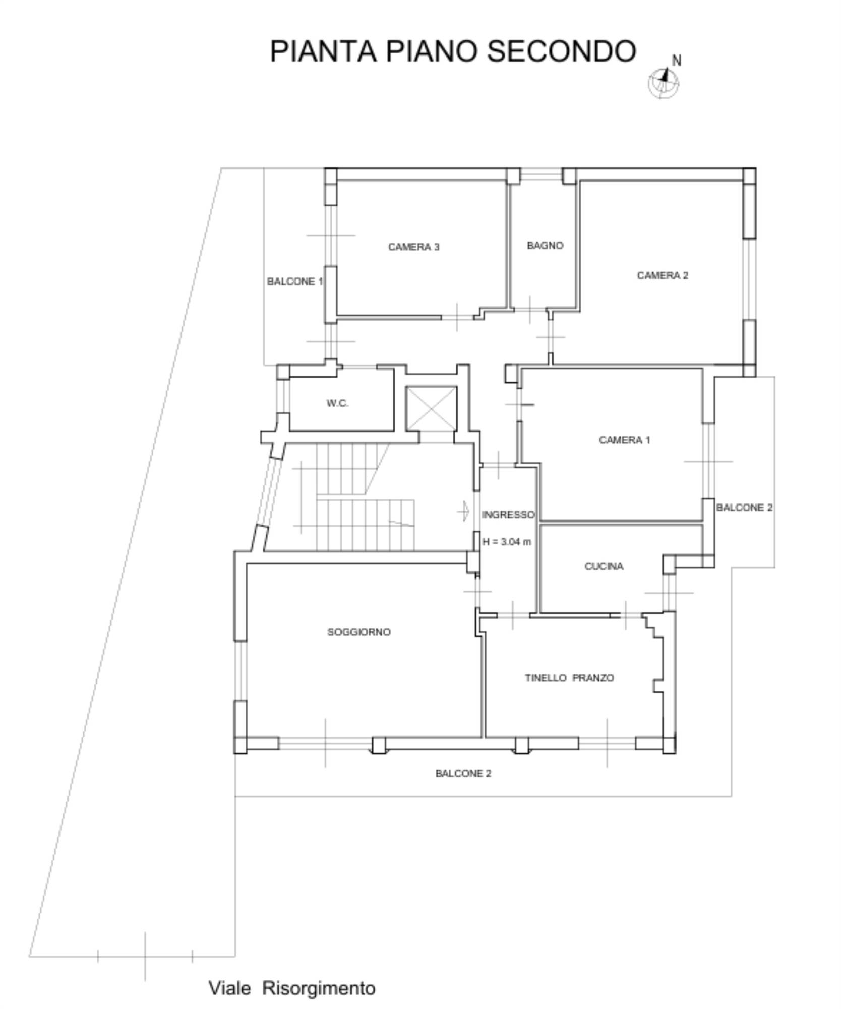
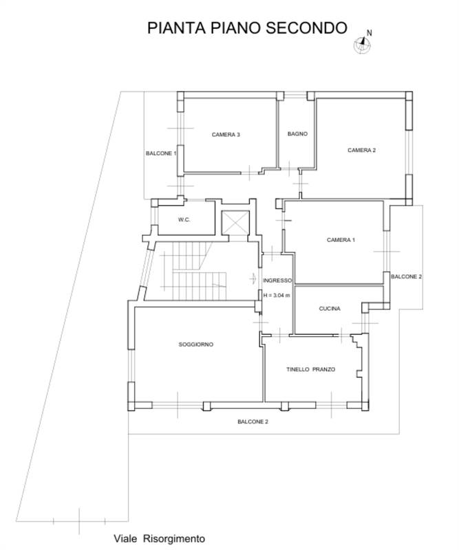
Appartamento posto al piano secondo di un edificio di quattro piani fuori terra e si compone di ingresso soggiorno, cucina, tre camere, due bagni, due balconi, uno esposto ad ovest ed uno a sud-est, e locale fondaco di mq 7,40 al piano terrazzo di copertura.


Aste Agency SRL offre il servizio di assistenza per acquistare tramite un mutuo con banche convenzionate. Assiste ed indirizza, dall’aggiudicazione fino alla consegna delle chiavi.

PERCHE’ COMPRARE ALL’ASTA:
- Acquisto sicuro tramite Tribunale;
- Prezzo inferiore rispetto al mercato libero, quindi rata del mutuo più bassa;
- Banche convenzionate con i Tribunali;
- Nessun vincolo di prezzo nella rivendita e nella locazione.

Le Aste Giudiziarie sono soluzioni abitative a prezzi unici, in quanto si compera ad un prezzo inferiore, paragonato alla realtà proibitiva del mercato libero, e l’investimento immobiliare risulta essere sicuramente conveniente.
Per maggiori delucidazioni vi invitiamo a contattarci. Sarà nostra premura fissare un appuntamento in studio e trasferirvi tutte le informazioni necessarie per un’attenta e serena valutazione.

ASTE AGENCY SRL – Contattateci per un appuntamento presso uno dei nostri uffici o in videochiamata.
Caratteristiche principali
Codice:
52.23.280126.MC
Città:
Montorio al Vomano
Categoria:
Appartamento
Locali:
5
Camere:
3
Bagni:
2
Mq:
146
Balconi:
2
Terrazzi:
1
Piano:
2
Anno:
2013
Classe energetica:
G
Stato Immobile:
Buono
Grado:
Medio
Arredi:
Non Arredato
Tipo Cucina:
Abitabile
Riscaldamento:
Autonomo
Fonte Energetica:
Metano
Accesso Disabili:
No
Mappa
Viale Risorgimento, 9 - Montorio al Vomano (TE)
Richiedi informazioni
Invia
Cookie preference