Acquisto Assistito in Asta e Pre-Asta

In vendita
Appartamento
Abano Terme
57.000 €
Descrizione
Acquisto Assistito in Asta Giudiziaria
Per maggiori proposte visita il sito dell’agenzia: www.asteagency.com

Verifica fattibilità d’acquisto in PRE-ASTA

DATA ASTA : 19/03/26

UBICAZIONE E DESCRIZIONE:
Via Stazione, 27 Albano Terme PD

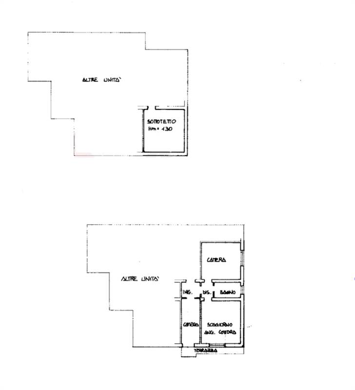
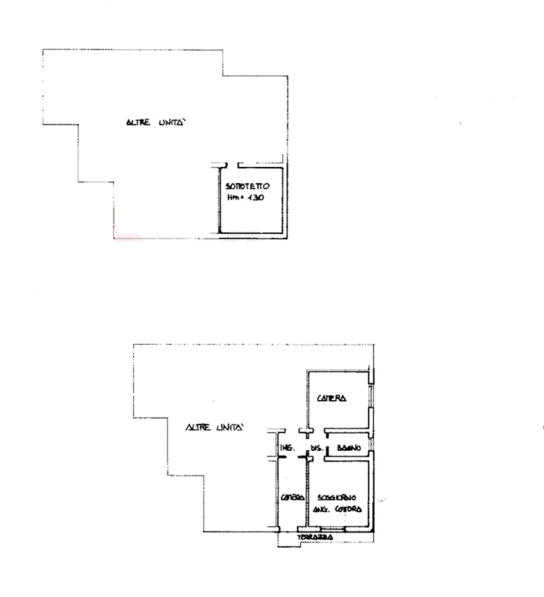
Descrizione sintetica: appartamento facente parte del fabbricato condominiale denominato "Condominio Orione", posto al piano primo con due camere, bagno e poggiolo; al piano terzo locale sottotetto di pertinenza di mq 19,00 e al piano terra locale sgombero con lavanderia e c.t. di mq 8,00.


Aste Agency SRL offre il servizio di assistenza per acquistare tramite un mutuo con banche convenzionate. Assiste ed indirizza, dall’aggiudicazione fino alla consegna delle chiavi.

PERCHE’ COMPRARE ALL’ASTA:
- Acquisto sicuro tramite Tribunale;
- Prezzo inferiore rispetto al mercato libero, quindi rata del mutuo più bassa;
- Banche convenzionate con i Tribunali;
- Nessun vincolo di prezzo nella rivendita e nella locazione.

Le Aste Giudiziarie sono soluzioni abitative a prezzi unici, in quanto si compera ad un prezzo inferiore, paragonato alla realtà proibitiva del mercato libero, e l’investimento immobiliare risulta essere sicuramente conveniente.
Per maggiori delucidazioni vi invitiamo a contattarci. Sarà nostra premura fissare un appuntamento in studio e trasferirvi tutte le informazioni necessarie per un’attenta e serena valutazione.

ASTE AGENCY SRL – Contattateci per un appuntamento presso uno dei nostri uffici o in videochiamata.
Caratteristiche principali
Codice:
49.25.190326.PD
Città:
Abano Terme
Categoria:
Appartamento
Locali:
3
Camere:
2
Bagni:
1
Mq:
71
Balconi:
1
Piano:
1
Anno:
1967
Anno ristrutturazione:
2002
Classe energetica:
G
Stato Immobile:
Abitabile
Grado:
Medio
Tipo Cucina:
Angolo Cottura
Riscaldamento:
Autonomo
Tipo Impianto:
Radiatori
Fonte Energetica:
Metano
Accesso Disabili:
No
Accessori
Lavanderia
Ripostiglio
Mappa
Via Stazione, 27 - Abano Terme (PD)
Planimetrie
Richiedi informazioni
Invia
Cookie preference