Acquisto Assistito - in Asta e Pre-Asta

In vendita
Appartamento
Vicenza
865.125 €
Descrizione
Acquisto Assistito in Asta Giudiziaria
Per maggiori proposte visita il sito dell’agenzia: www.asteagency.com

Verifica fattibilità d’acquisto in PRE-ASTA

DATA ASTA : 22/04/26

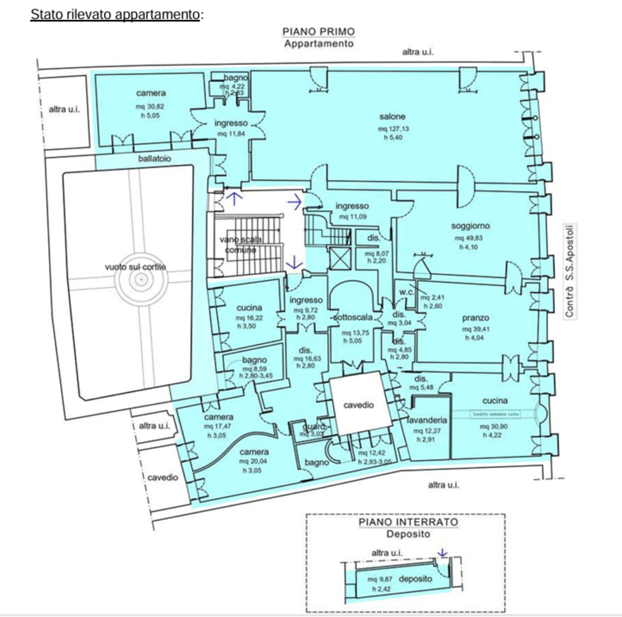
UBICAZIONE E DESCRIZIONE:
Contrà Santi Apostoli, 22 Vicenza VI

Descrizione sintetica: abitazione signorile (di grandi dimensioni) al piano primo con locale di deposito al piano interrato, posto auto scoperto al piano terra e locale accatastato come autorimessa. L’appartamento è dotato di tre ingressi indipendenti; l’ampia scalinata è dotata di ascensore che collega tutti i piani del palazzo. L’abitazione risulta così articolata: ingresso centrale, disimpegno/guardaroba, sala di soggiorno, sala da pranzo, cucina, disimpegno, lavanderia, due disimpegni, wc, sala sottoscala; ingresso lato sud, cucina, disimpegno, guardaroba, prima camera con bagno, seconda camera con bagno; ingresso lato nord, stanza affrescata (camera), bagno, salone, n. 8 poggioli con affaccio sulla strada e n. 1 ballatoio con affaccio sul cortile interno. Il deposito al piano interrato è costituito da un vano aerato con finestra a bocca di lupo. Il posto auto scoperto è ubicato nel cortile comune interno del palazzo.


Aste Agency SRL offre il servizio di assistenza per acquistare tramite un mutuo con banche convenzionate. Assiste ed indirizza, dall’aggiudicazione fino alla consegna delle chiavi.

PERCHE’ COMPRARE ALL’ASTA:
- Acquisto sicuro tramite Tribunale;
- Prezzo inferiore rispetto al mercato libero, quindi rata del mutuo più bassa;
- Banche convenzionate con i Tribunali;
- Nessun vincolo di prezzo nella rivendita e nella locazione.

Le Aste Giudiziarie sono soluzioni abitative a prezzi unici, in quanto si compera ad un prezzo inferiore, paragonato alla realtà proibitiva del mercato libero, e l’investimento immobiliare risulta essere sicuramente conveniente.
Per maggiori delucidazioni vi invitiamo a contattarci. Sarà nostra premura fissare un appuntamento in studio e trasferirvi tutte le informazioni necessarie per un’attenta e serena valutazione.

ASTE AGENCY SRL – Contattateci per un appuntamento presso uno dei nostri uffici o in videochiamata.
Caratteristiche principali
Codice:
482.22.14.220426.VI
Città:
Vicenza
Categoria:
Appartamento
Locali:
9
Camere:
5
Bagni:
4
Mq:
611
Box:
1
Posti auto:
1
Balconi:
8
Piano:
Terra
Anno:
1967
Classe energetica:
G
Stato Immobile:
Buono
Grado:
Medio
Tipo Cucina:
Abitabile
Riscaldamento:
Autonomo
Fonte Energetica:
Metano
Accesso Disabili:
No
Accessori
Ascensore
Lavanderia
Porta Blindata
Ripostiglio
Mappa
Contrà Santi Apostoli , 22 - Vicenza (VI)
Planimetrie
Richiedi informazioni
Invia
Cookie preference