Acquisto Assistito in Asta Giudiziaria

In vendita
Appartamento
Vicenza
42.000 €
Descrizione
Acquisto Assistito in Asta Giudiziaria
Per maggiori proposte visita il sito dell’agenzia: www.asteagency.com

Verifica fattibilità d’acquisto in pre-asta
DATA ASTA : 16/12/2025

Disponibilità: Libero al Decreto di Trasferimento

UBICAZIONE E DESCRIZIONE:
Indirizzo: Via G. Marzari 2, 36100 Vicenza VI

Descrizione sintetica:
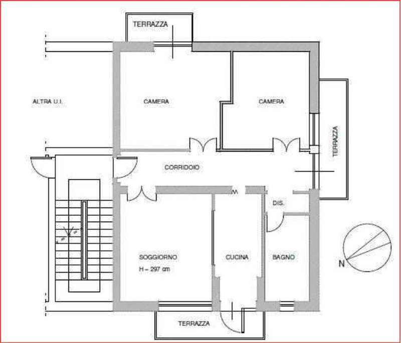
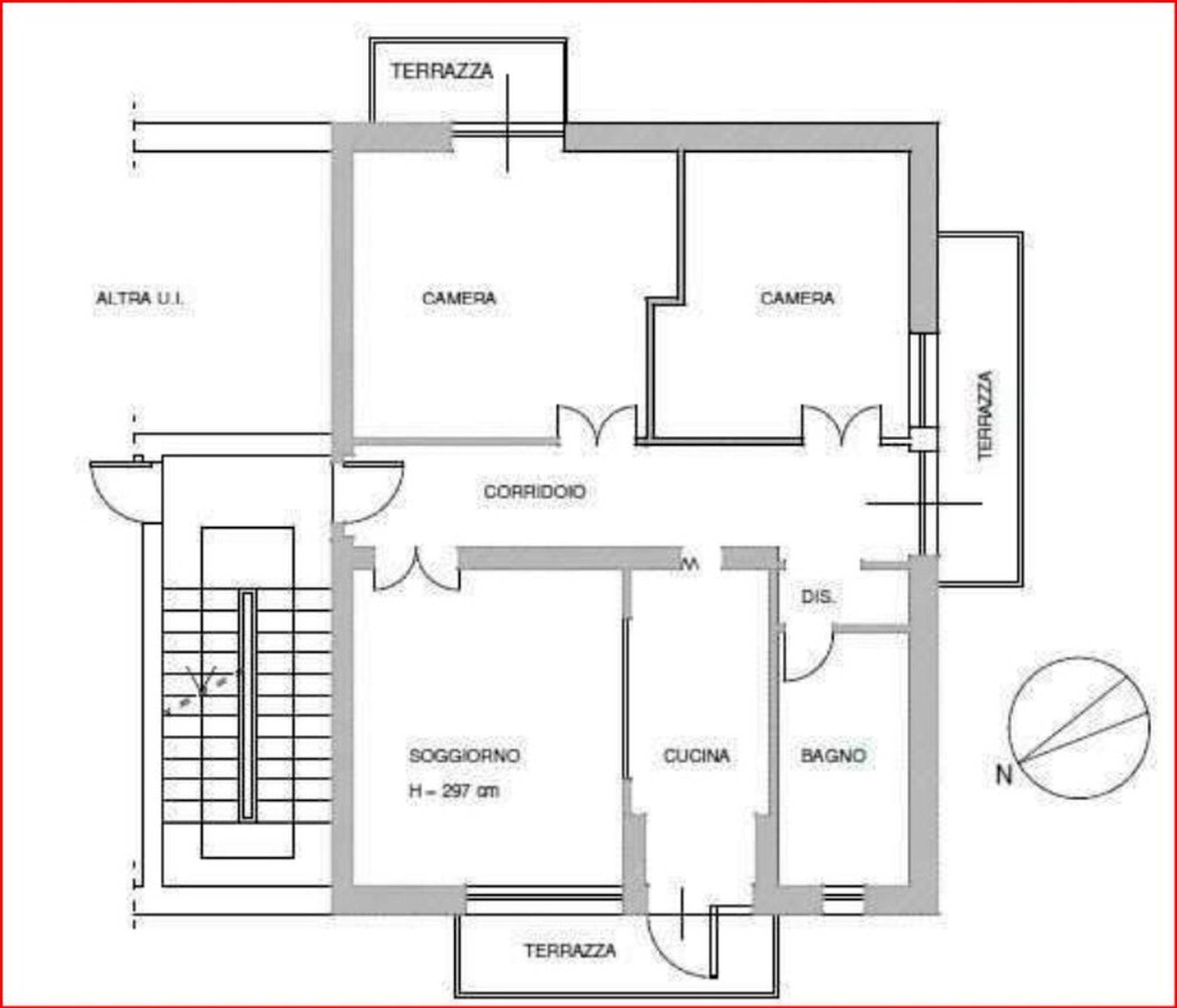
Trattasi di appartamento posto al piano secondo, raggiungibile da vano scala condominiale, privo di ascensore, costituito da soggiorno, cucina separata di modesta larghezza, bagno con antibagno, due ampie camere, corridoio di ingresso-distribuzione e tre terrazze, raggiungibili rispettivamente dal soggiorno, dal corridoio e da una delle due camere. Al piano seminterrato si trova una cantina di circa mq. 14,00.

Superficie commerciale mq: 95,37

Home Agency offre il servizio di assistenza per acquistare tramite un mutuo con banche convenzionate. Assiste ed indirizza, dall’aggiudicazione fino alla consegna delle chiavi.

PERCHE’ COMPRARE ALL’ASTA:
- Acquisto sicuro tramite Tribunale;
- Prezzo inferiore rispetto al mercato libero, quindi rata del mutuo più bassa;
- Banche convenzionate con i Tribunali;
- Nessun vincolo di prezzo nella rivendita e nella locazione.

Le Aste Giudiziarie sono soluzioni abitative a prezzi unici, in quanto si compera ad un prezzo inferiore, paragonato alla realtà proibitiva del mercato libero, e l’investimento immobiliare risulta essere sicuramente conveniente.
Per maggiori delucidazioni vi invitiamo a contattarci. Sarà nostra premura fissare un appuntamento in studio e trasferirvi tutte le informazioni necessarie per un’attenta e serena valutazione.

VICENZA (VI) Viale Milano 17 - previo appuntamento
Bologna - Padova - Rovigo - Treviso - Venezia - Vicenza
Caratteristiche principali
Codice:
47.24.161225.VI
Città:
Vicenza
Categoria:
Appartamento
Locali:
4
Camere:
2
Bagni:
1
Mq:
95,37
Balconi:
3
Piano:
2
Anno:
1953
Anno ristrutturazione:
2000
Classe energetica:
G
Stato Immobile:
Buono
Grado:
Signorile
Lati Liberi:
3
Giardino:
Comune
Arredi:
Non Arredato
Tipo Soggiorno:
Soggiorno
Tipo Cucina:
Abitabile
Riscaldamento:
Autonomo
Tipo Riscaldam.:
Caldaia
Tipo Impianto:
Radiatori
Fonte Energetica:
Metano
Acqua Calda:
Autonoma
Infissi:
Legno
Pavim. Giorno:
Ceramica
Pavim. Notte:
Ceramica
Accesso Disabili:
No
Mappa
Via G. Marzari , 2 - Vicenza (VI)
Richiedi informazioni
Invia
Cookie preference