Acquisto Assistito - in Asta e Pre-Asta

In vendita
Villa
Campobasso
72.956 €
Descrizione
Acquisto Assistito in Asta Giudiziaria
Per maggiori proposte visita il sito dell’agenzia: www.asteagency.com

Verifica fattibilità d’acquisto in PRE-ASTA

DATA ASTA : 11/02/26

UBICAZIONE E DESCRIZIONE:
Indirizzo: Contrada Tappino, 35/A Campobasso CB
Descrizione sintetica:
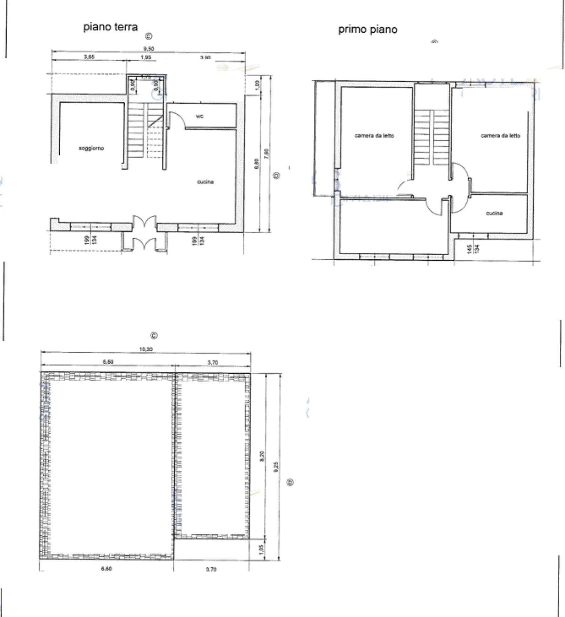
Abitazione in fabbricato elevato su due livelli, piano terra e piano primo, con corte esterna ad uso esclusivo. Composto da cinque vani abitabili e due bagni.


Aste Agency SRL offre il servizio di assistenza per acquistare tramite un mutuo con banche convenzionate. Assiste ed indirizza, dall’aggiudicazione fino alla consegna delle chiavi.

PERCHE’ COMPRARE ALL’ASTA:
- Acquisto sicuro tramite Tribunale;
- Prezzo inferiore rispetto al mercato libero, quindi rata del mutuo più bassa;
- Banche convenzionate con i Tribunali;
- Nessun vincolo di prezzo nella rivendita e nella locazione.

Le Aste Giudiziarie sono soluzioni abitative a prezzi unici, in quanto si compera ad un prezzo inferiore, paragonato alla realtà proibitiva del mercato libero, e l’investimento immobiliare risulta essere sicuramente conveniente.
Per maggiori delucidazioni vi invitiamo a contattarci. Sarà nostra premura fissare un appuntamento in studio e trasferirvi tutte le informazioni necessarie per un’attenta e serena valutazione.

ASTE AGENCY SRL – Contattateci per un appuntamento presso uno dei nostri uffici o in videochiamata.

Caratteristiche principali
Codice:
45.24.110226.CB
Città:
Campobasso
Categoria:
Villa
Locali:
5
Camere:
3
Bagni:
2
Mq:
133
Piano:
Terra
Anno:
1980
Classe energetica:
G
Stato Immobile:
Buono
Grado:
Medio
Lati Liberi:
3
Giardino:
Privato
Arredi:
Non Arredato
Tipo Cucina:
Abitabile
Riscaldamento:
Autonomo
Fonte Energetica:
Metano
Accesso Disabili:
No
Mappa
Contrada Tappino, 35 - Campobasso (CB)
Planimetrie
Richiedi informazioni
Invia
Cookie preference