Acquisto Assistito - in Asta e Pre-Asta

In vendita
Appartamento
Valdagno
81.750 €
Descrizione
Acquisto Assistito in Asta Giudiziaria
Per maggiori proposte visita il sito dell’agenzia: www.asteagency.com

Verifica fattibilità d’acquisto in PRE-ASTA

DATA ASTA : 26/02/26

UBICAZIONE E DESCRIZIONE:
Via A. Gramsci, 18 Valdagno VI

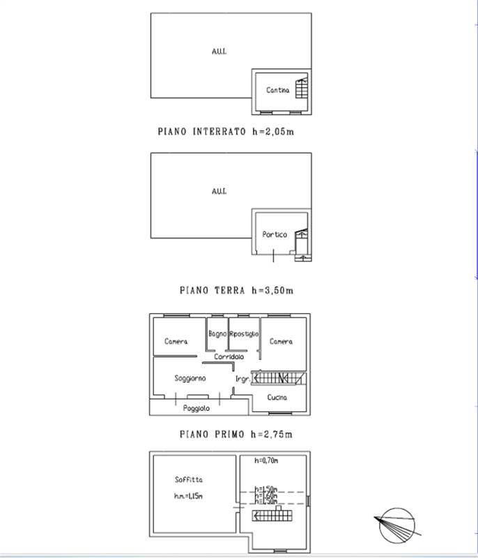
Descrizione sintetica: Appartamento situato al piano primo e secondo con accesso dalla scala privata, non c’è l’ascensore, è dotato di ingresso, cucina, soggiorno, disimpegno, un bagno, due camere, un ripostiglio, 2 balconi per totale mq 9,50 e porticato di mq 11,50 soffitte al piano secondo di mq 41,00. Locale cantina di mq 11,00 al piano interrato.


Aste Agency SRL offre il servizio di assistenza per acquistare tramite un mutuo con banche convenzionate. Assiste ed indirizza, dall’aggiudicazione fino alla consegna delle chiavi.

PERCHE’ COMPRARE ALL’ASTA:
- Acquisto sicuro tramite Tribunale;
- Prezzo inferiore rispetto al mercato libero, quindi rata del mutuo più bassa;
- Banche convenzionate con i Tribunali;
- Nessun vincolo di prezzo nella rivendita e nella locazione.

Le Aste Giudiziarie sono soluzioni abitative a prezzi unici, in quanto si compera ad un prezzo inferiore, paragonato alla realtà proibitiva del mercato libero, e l’investimento immobiliare risulta essere sicuramente conveniente.
Per maggiori delucidazioni vi invitiamo a contattarci. Sarà nostra premura fissare un appuntamento in studio e trasferirvi tutte le informazioni necessarie per un’attenta e serena valutazione.

ASTE AGENCY SRL – Contattateci per un appuntamento presso uno dei nostri uffici o in videochiamata.
Caratteristiche principali
Codice:
44.25.260226.VI
Città:
Valdagno
Categoria:
Appartamento
Locali:
4
Camere:
2
Bagni:
1
Mq:
90
Balconi:
2
Piano:
1
Anno:
1967
Classe energetica:
G
Stato Immobile:
Buono
Grado:
Medio
Tipo Cucina:
Abitabile
Riscaldamento:
Autonomo
Fonte Energetica:
Metano
Raffrescamento:
Predisposizione
Accesso Disabili:
No
Accessori
Porta Blindata
Ripostiglio
Mappa
Via A. Gramsci , 18 - Valdagno (VI)
Planimetrie
Richiedi informazioni
Invia
Cookie preference