Acquisto Assistito in Asta e Pre-Asta

In vendita
Appartamento
Ugento
137.873 €
Descrizione
Acquisto Assistito in Asta Giudiziaria
Per maggiori proposte visita il sito dell’agenzia: www.asteagency.com

Verifica fattibilità d’acquisto in PRE-ASTA

DATA ASTA : 16/03/26

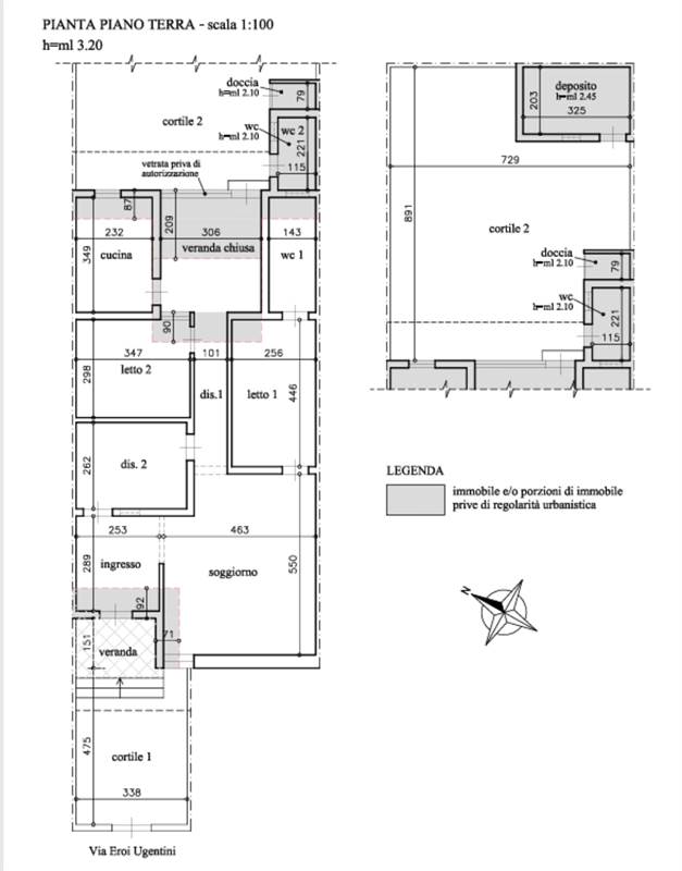
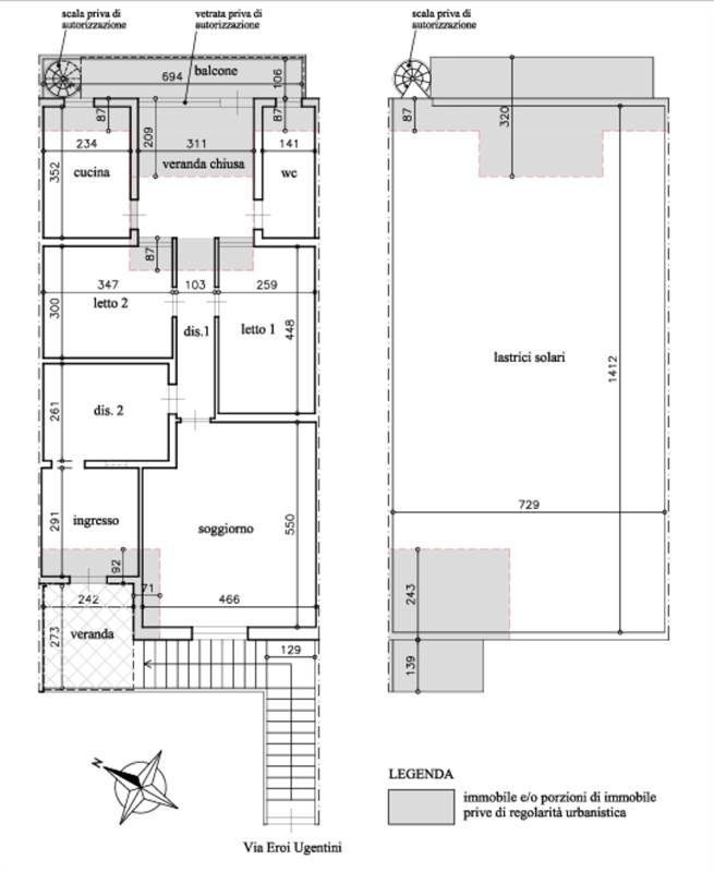
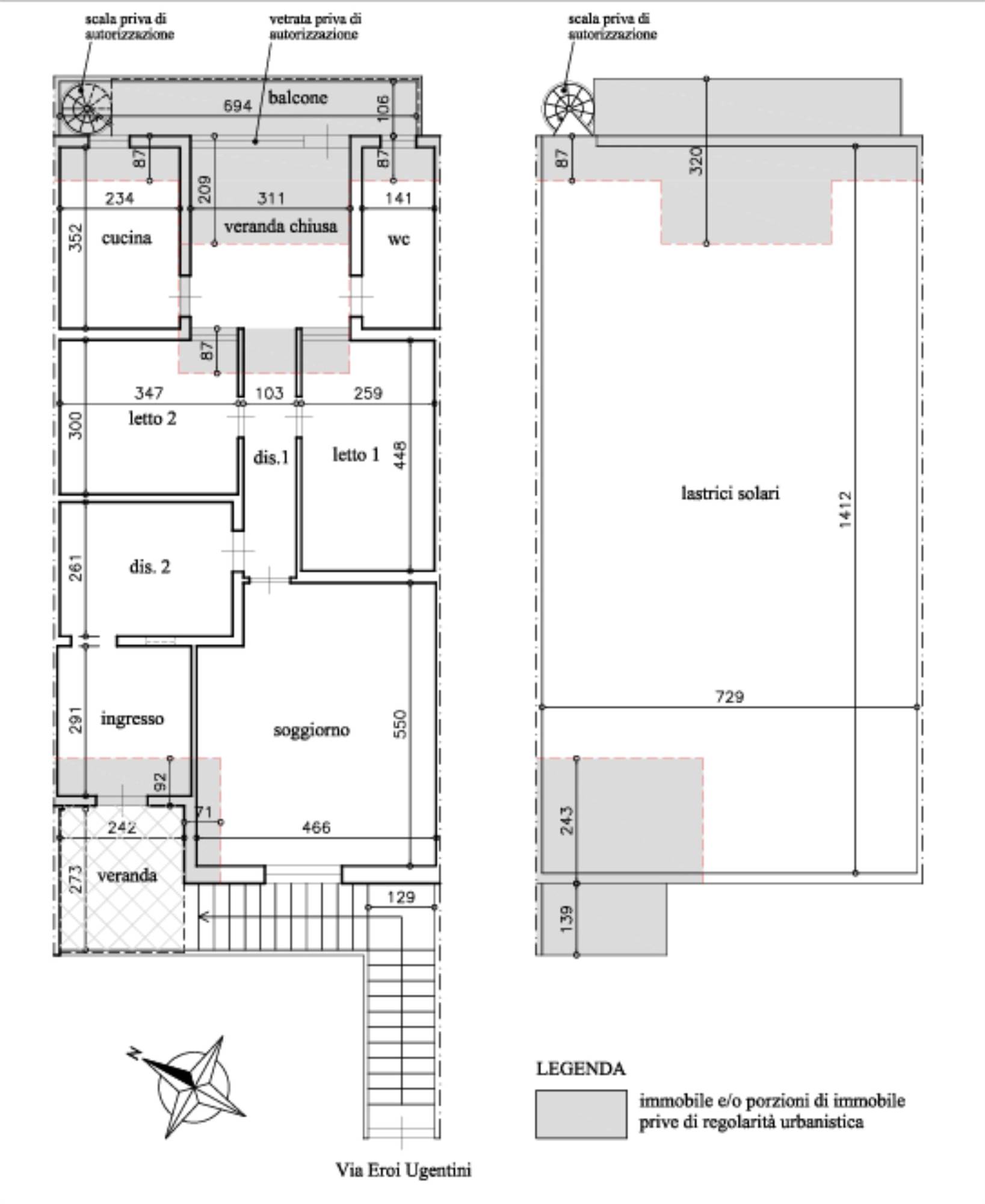
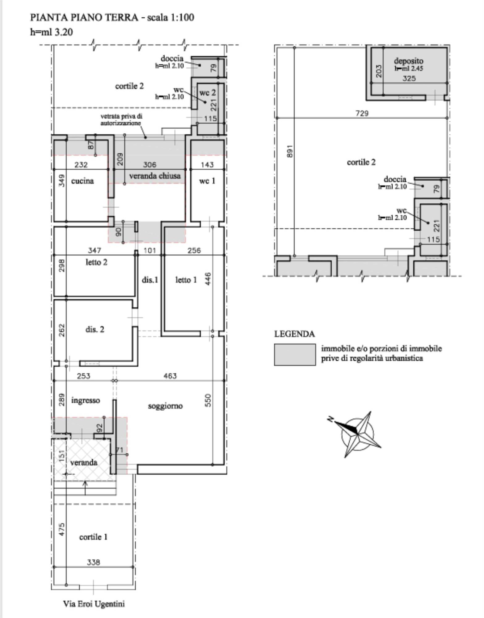
UBICAZIONE E DESCRIZIONE:
Via Eroi Ugentini, 44 Ugento LE

Descrizione sintetica: Compendio formato da:
- ’abitazione posta al piano primo, facente parte di un edificio a due piani fuori terra ed uno interrato. L’unità è accessibile a mezzo di scala esterna, posta a ridosso della sede stradale, collegata ad una veranda, e si compone di un ingresso, un soggiorno, due vani letto, due disimpegni, una cucina, un vano wc, ed una veranda chiusa, oltre ad un balcone posto sul fronte posteriore, privo di autorizzazione urbanistica, sul quale è ubicata scala a chiocciola, anch’essa abusiva, a servizio del lastrici solari di pertinenza esclusiva.
- abitazione posta al piano terra, facente parte di un edificio a due piani fuori terra ed uno interrato. L’unità si compone di un ingresso, un soggiorno, due vani letto, due disimpegni, una cucina, un vano wc, ed una veranda chiusa, oltre ad uno scoperto ed una veranda posti sul fronte stradale, ed un cortile posteriore all’interno del quale sono ubicati dei vani accessori consistenti in un wc, una doccia ed un deposito.
- Garage di mq 22,00.

Aste Agency SRL offre il servizio di assistenza per acquistare tramite un mutuo con banche convenzionate. Assiste ed indirizza, dall’aggiudicazione fino alla consegna delle chiavi.

PERCHE’ COMPRARE ALL’ASTA:
- Acquisto sicuro tramite Tribunale;
- Prezzo inferiore rispetto al mercato libero, quindi rata del mutuo più bassa;
- Banche convenzionate con i Tribunali;
- Nessun vincolo di prezzo nella rivendita e nella locazione.

Le Aste Giudiziarie sono soluzioni abitative a prezzi unici, in quanto si compera ad un prezzo inferiore, paragonato alla realtà proibitiva del mercato libero, e l’investimento immobiliare risulta essere sicuramente conveniente.
Per maggiori delucidazioni vi invitiamo a contattarci. Sarà nostra premura fissare un appuntamento in studio e trasferirvi tutte le informazioni necessarie per un’attenta e serena valutazione.

ASTE AGENCY SRL – Contattateci per un appuntamento presso uno dei nostri uffici o in videochiamata.
Caratteristiche principali
Codice:
44.21.1.160326.LE
Città:
Ugento
Categoria:
Appartamento
Locali:
8
Camere:
4
Bagni:
2
Mq:
216
Balconi:
2
Piano:
Terra
Anno:
1977
Classe energetica:
G
Stato Immobile:
Buono
Grado:
Medio
Tipo Cucina:
Abitabile
Riscaldamento:
Autonomo
Tipo Impianto:
Radiatori
Fonte Energetica:
Metano
Accesso Disabili:
No
Accessori
Impianto Fotovoltaico
Ripostiglio
Mappa
Via Eroi Ugentini, 44 - Ugento (LE)
Richiedi informazioni
Invia
Cookie preference