Acquisto Assistito in Asta Giudiziaria

In vendita
Appartamento
Codognè
120.750 €
Descrizione
Acquisto Assistito in Asta Giudiziaria
Per maggiori proposte visita il sito dell’agenzia: www.asteagency.com

Verifica fattibilità d’acquisto in pre-asta
DATA ASTA : 28/01/26

Disponibilità: Libero al Decreto di Trasferimento

UBICAZIONE E DESCRIZIONE:
Indirizzo: Località Cimetta - Via XIX Luglio, n.1 – 31013 Codognè (TV)

Descrizione sintetica:
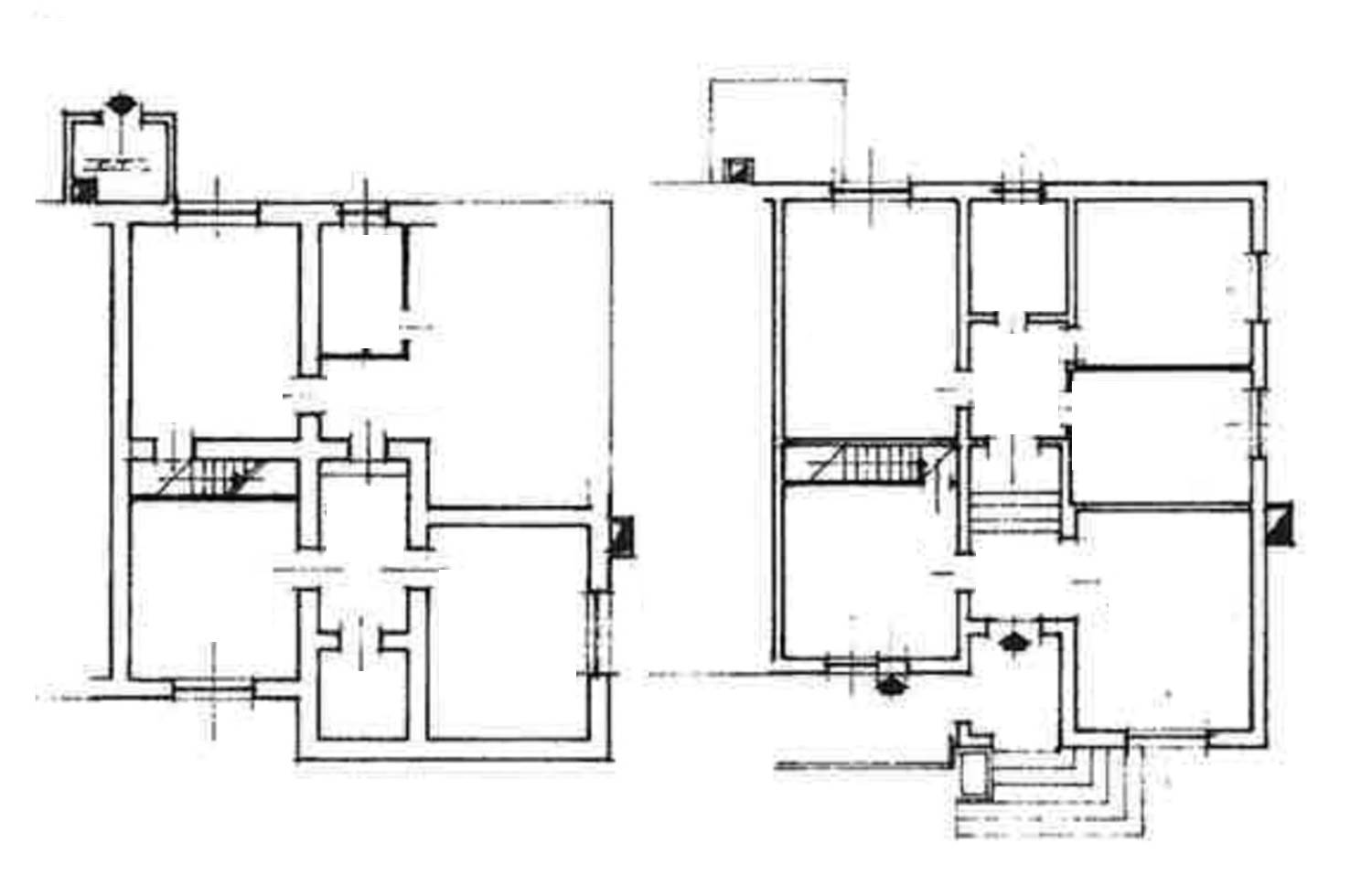
Il lotto è costituito da una porzione di bifamiliare, casa a due livelli, piano terra e piano primo, con laboratorio in corpo staccato, area scoperta e alcuni manufatti (es.: tettoia, gazebo, vano tecnico, magazzino, altri).
L’unità rsidenziale è composta al piano terra da garage, angolo cottura, due bagn, magazzino/lavanderia, vano scala che conduce al piano primo dove troviamo una cucina, soggiorno, bagno, tre camere da letto ed un patio/terrazza.

Superficie lorda commerciale mq: 233,99

Home Agency offre il servizio di assistenza per acquistare tramite un mutuo con banche convenzionate. Assiste ed indirizza, dall’aggiudicazione fino alla consegna delle chiavi.

PERCHE’ COMPRARE ALL’ASTA:
- Acquisto sicuro tramite Tribunale;
- Prezzo inferiore rispetto al mercato libero, quindi rata del mutuo più bassa;
- Banche convenzionate con i Tribunali;
- Nessun vincolo di prezzo nella rivendita e nella locazione.

Le Aste Giudiziarie sono soluzioni abitative a prezzi unici, in quanto si compera ad un prezzo inferiore, paragonato alla realtà proibitiva del mercato libero, e l’investimento immobiliare risulta essere sicuramente conveniente.
Per maggiori delucidazioni vi invitiamo a contattarci. Sarà nostra premura fissare un appuntamento in studio e trasferirvi tutte le informazioni necessarie per un’attenta e serena valutazione.

PADOVA (PD) Via Giovanni Berchet n. 10 - previo appuntamento
Bologna - Padova - Rovigo - Treviso - Venezia - Vicenza

Caratteristiche principali
Codice:
435.22.280126.TV
Città:
Codognè
Categoria:
Appartamento
Locali:
7
Camere:
3
Bagni:
3
Mq:
129,6
Mq Box:
47,11
Mq Giardino:
26,47
Terrazzi:
1
mq Terrazzo:
7,35
Piano:
Terra
Anno:
1976
Classe energetica:
A
Stato Immobile:
Buono
Grado:
Signorile
Lati Liberi:
3
Giardino:
Privato
Arredi:
Non Arredato
Tipo Soggiorno:
Soggiorno
Tipo Cucina:
Abitabile
Riscaldamento:
Autonomo
Tipo Riscaldam.:
Caldaia
Tipo Impianto:
Radiatori
Fonte Energetica:
Gas
Raffrescamento:
Split
Infissi:
Legno Doppio Vetro
Serramenti:
Buono
Persiana:
Tapparella PVC
Accessori
Aria Condizionata
Impianto Fotovoltaico
Mappa
VIA XIX LUGLIO, 1 - Codognè (TV)
Planimetrie
Richiedi informazioni
Invia
Cookie preference