Acquisto Assistito - in Asta e Pre-Asta

In vendita
Appartamento
Volpago del Montello
79.800 €
Descrizione
Acquisto Assistito in Asta Giudiziaria
Per maggiori proposte visita il sito dell’agenzia: www.asteagency.com

Verifica fattibilità d’acquisto in PRE-ASTA

DATA ASTA : 24/02/26

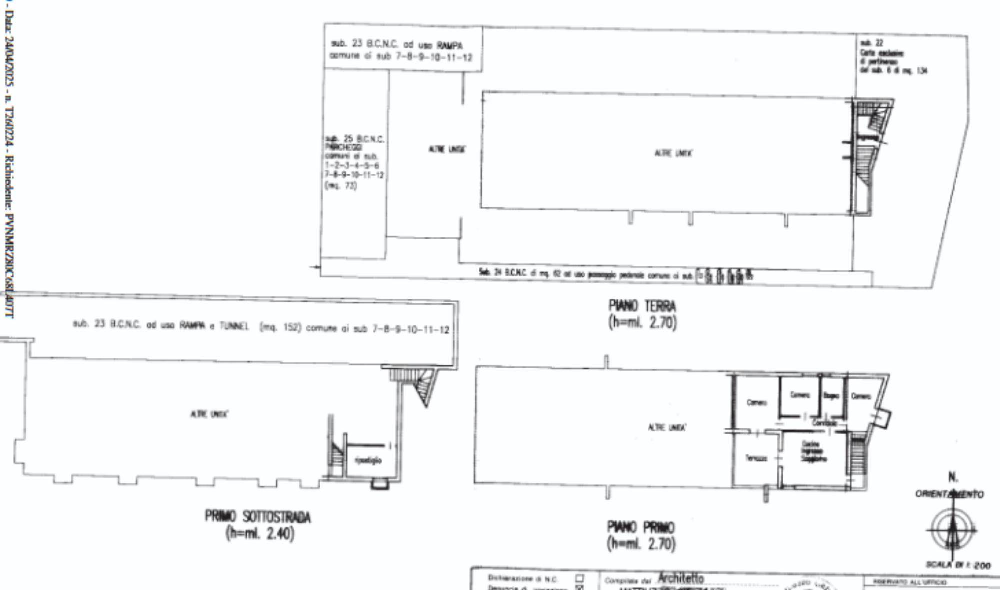
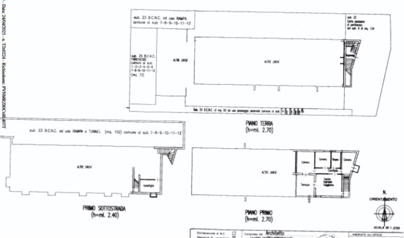
UBICAZIONE E DESCRIZIONE:
Indirizzo: Vicolo Schiavonesca, 45 Volpago del Montello (TV)
Descrizione sintetica:
Abitazione con ingresso al piano terra e composta al primo piano da soggiorno con angolo cottura, tre camere, bagno, terrazza e balconcino; corte esclusiva di mq. 134 catastali; garage al seminterrato di 25,00 mq.
 

Aste Agency SRL offre il servizio di assistenza per acquistare tramite un mutuo con banche convenzionate. Assiste ed indirizza, dall’aggiudicazione fino alla consegna delle chiavi.

PERCHE’ COMPRARE ALL’ASTA:
- Acquisto sicuro tramite Tribunale;
- Prezzo inferiore rispetto al mercato libero, quindi rata del mutuo più bassa;
- Banche convenzionate con i Tribunali;
- Nessun vincolo di prezzo nella rivendita e nella locazione.

Le Aste Giudiziarie sono soluzioni abitative a prezzi unici, in quanto si compera ad un prezzo inferiore, paragonato alla realtà proibitiva del mercato libero, e l’investimento immobiliare risulta essere sicuramente conveniente.
Per maggiori delucidazioni vi invitiamo a contattarci. Sarà nostra premura fissare un appuntamento in studio e trasferirvi tutte le informazioni necessarie per un’attenta e serena valutazione.

ASTE AGENCY SRL – Contattateci per un appuntamento presso uno dei nostri uffici o in videochiamata.



Caratteristiche principali
Codice:
413.23.240226.TV
Città:
Volpago del Montello
Categoria:
Appartamento
Locali:
4
Camere:
3
Bagni:
1
Mq:
92
Piano:
Terra
Anno:
1998
Classe energetica:
G
Stato Immobile:
Buono
Grado:
Medio
Arredi:
Non Arredato
Tipo Cucina:
Angolo Cottura
Riscaldamento:
Autonomo
Fonte Energetica:
Metano
Accesso Disabili:
No
Mappa
Vicolo Schiavonesca, 45 - Volpago del Montello (TV)
Planimetrie
Richiedi informazioni
Invia
Cookie preference