Acquisto Assistito in Asta Giudiziaria

In vendita
Appartamento
Grottammare
110.208 €
Descrizione
Acquisto Assistito in Asta Giudiziaria
Per maggiori proposte visita il sito dell’agenzia: www.asteagency.com

Verifica fattibilità d’acquisto in PRE-ASTA
DATA ASTA : 27/01/26

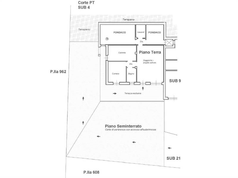
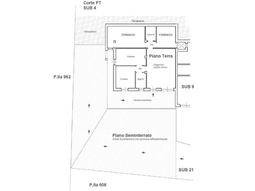
UBICAZIONE E DESCRIZIONE:
Indirizzo: Via dei Ligustri, Grottammare, Montesecco AP

Descrizione sintetica: Appartamento che si sviluppa su due piani tra loro comunicanti mediante corte di pertinenza; al Piano Terra è presente l’abitazione mente al Piano Seminterrato è situata l'ampia autorimessa .
L’appartamento al suo interno appare suddiviso da tramezzature che ne articolano lo spazio composto da: ingresso, soggiorno con angolo cottura, disimpegno, bagno e due camere da letto, disimpegno, due fondaci ed una lavanderia.

Superficie lorda commerciale mq: 107,00
Superficie garage mq: 51,00


Aste Agency SRL offre il servizio di assistenza per acquistare tramite un mutuo con banche convenzionate. Assiste ed indirizza, dall’aggiudicazione fino alla consegna delle chiavi.

PERCHE’ COMPRARE ALL’ASTA:
- Acquisto sicuro tramite Tribunale;
- Prezzo inferiore rispetto al mercato libero, quindi rata del mutuo più bassa;
- Banche convenzionate con i Tribunali;
- Nessun vincolo di prezzo nella rivendita e nella locazione.

Le Aste Giudiziarie sono soluzioni abitative a prezzi unici, in quanto si compera ad un prezzo inferiore, paragonato alla realtà proibitiva del mercato libero, e l’investimento immobiliare risulta essere sicuramente conveniente.
Per maggiori delucidazioni vi invitiamo a contattarci. Sarà nostra premura fissare un appuntamento in studio e trasferirvi tutte le informazioni necessarie per un’attenta e serena valutazione.

ASTE AGENCY SRL – Contattateci per un appuntamento presso uno dei nostri uffici o in videochiamata.
Caratteristiche principali
Codice:
41.18.10.270126.AP
Città:
Grottammare
Categoria:
Appartamento
Locali:
3
Camere:
2
Bagni:
1
Mq:
107
Box:
1
Mq Box:
51
Mq Giardino:
28,25
Terrazzi:
1
mq Terrazzo:
9,8
Piano:
Terra
Anno:
2010
Classe energetica:
G
Stato Immobile:
Buono
Grado:
Medio
Lati Liberi:
3
Arredi:
Non Arredato
Tipo Cucina:
Angolo Cottura
Riscaldamento:
Autonomo
Tipo Riscaldam.:
Caldaia
Tipo Impianto:
Radiatori
Fonte Energetica:
Metano
Acqua Calda:
Autonoma
Infissi:
Alluminio
Serramenti:
Buono
Persiana:
Tapparella PVC
Accesso Disabili:
No
Accessori
Lavanderia
Pannelli Solari
Porta Blindata
Mappa
Via dei Ligustri - Grottammare (AP)
Planimetrie
Richiedi informazioni
Invia
Cookie preference