Acquisto Assistito in Asta Giudiziaria

In vendita
Appartamento
Gambara
25.313 €
Descrizione
Acquisto Assistito in Asta Giudiziaria
Per maggiori proposte visita il sito dell’agenzia:
www.asteagency.com

Verifica fattibilità d’acquisto in PRE-ASTA
DATA ASTA : 19/02/2026

Disponibilità: Libero al Decreto di Trasferimento

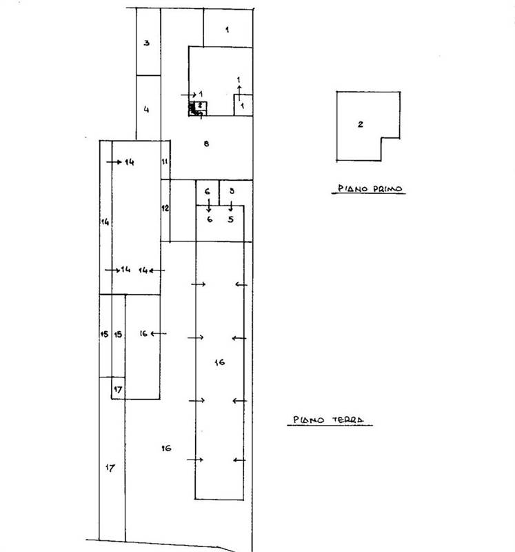
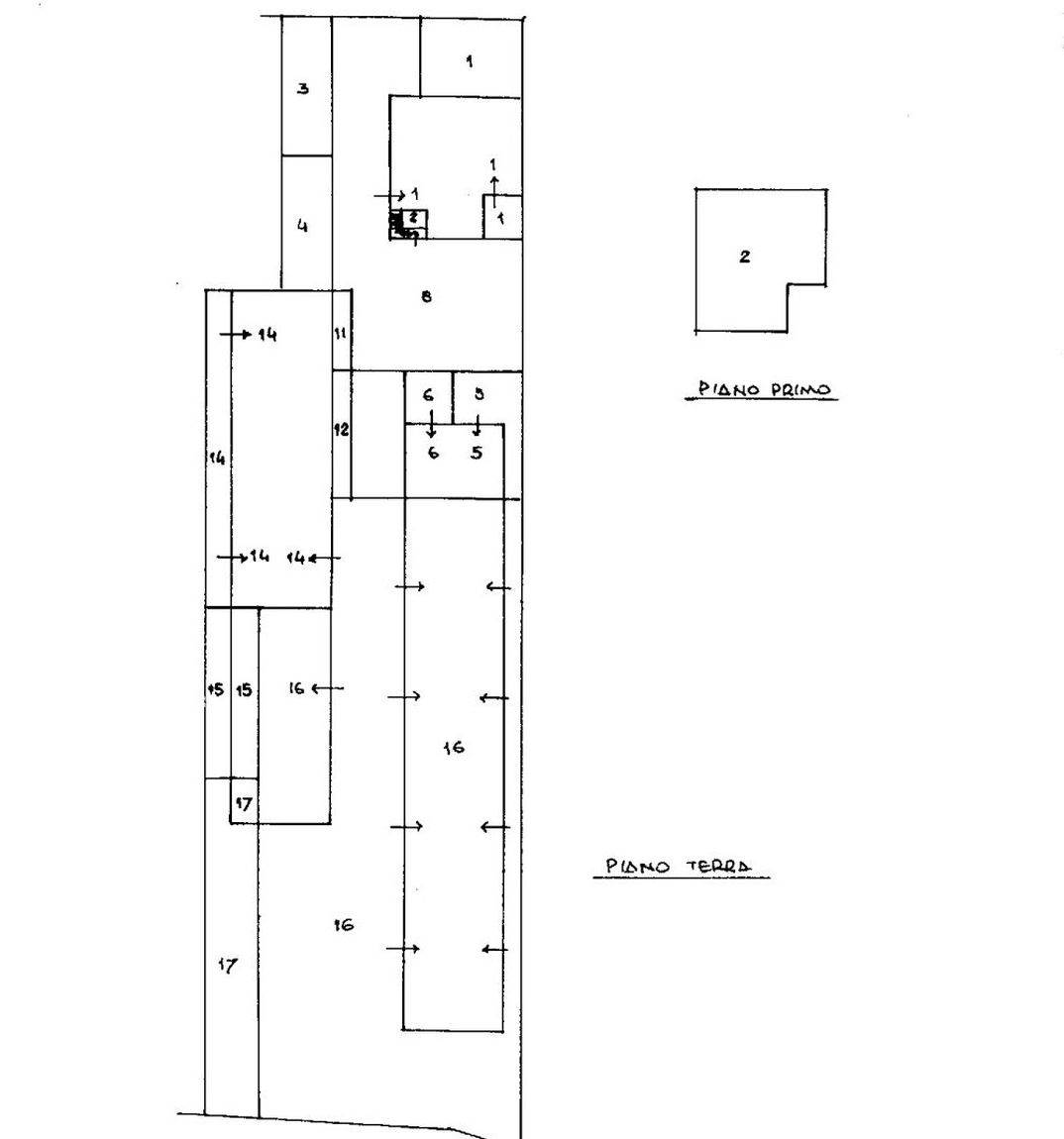
UBICAZIONE E DESCRIZIONE:
Indirizzo: Via per Volongo, 21/23 - Gambara (BS)
Descrizione sintetica: Appartamento di 129 mq al primo piano sito in Gambara Cascina (BD) comprensivo di autorimessa di 36 mq e corte privata. Composto da n. 3 stanze, una cucina, un bagno e un soggiorno.

Aste Agency SRL offre il servizio di assistenza per acquistare tramite un mutuo con banche convenzionate. Assiste ed indirizza, dall’aggiudicazione fino alla consegna delle chiavi.

PERCHE’ COMPRARE ALL’ASTA:
- Acquisto sicuro tramite Tribunale;
- Prezzo inferiore rispetto al mercato libero, quindi rata del mutuo più bassa;
- Banche convenzionate con i Tribunali;
- Nessun vincolo di prezzo nella rivendita e nella locazione.

Le Aste Giudiziarie sono soluzioni abitative a prezzi unici, in quanto si compera ad un prezzo inferiore, paragonato alla realtà proibitiva del mercato libero, e l’investimento immobiliare risulta essere sicuramente conveniente.
Per maggiori delucidazioni vi invitiamo a contattarci. Sarà nostra premura fissare un appuntamento in studio e trasferirvi tutte le informazioni necessarie per un’attenta e serena valutazione.

ASTE AGENCY SRL – Contattateci per un appuntamento presso uno dei nostri uffici o in videochiamata.
Caratteristiche principali
Codice:
396.24.190226.BS
Città:
Gambara
Categoria:
Appartamento
Locali:
5
Camere:
2
Bagni:
1
Mq:
157
Box:
1
Mq Box:
25
Posti auto:
1
Piano:
1
Anno:
1967
Classe energetica:
G
Stato Immobile:
Buono
Grado:
Medio
Arredi:
Non Arredato
Tipo Soggiorno:
Soggiorno
Tipo Cucina:
Abitabile
Riscaldamento:
Autonomo
Tipo Riscaldam.:
Caldaia
Tipo Impianto:
No
Fonte Energetica:
Gas
Acqua Calda:
Autonoma
Raffrescamento:
No
Infissi:
Legno
Accesso Disabili:
No
Mappa
Via per volongo , 21/23 - Gambara (BS)
Richiedi informazioni
Invia
Cookie preference