Acquisto Assistito - in Asta e Pre-Asta

In vendita
Capannone
Villorba
68.250 €
Descrizione
Acquisto Assistito in Asta Giudiziaria
Per maggiori proposte visita il sito dell’agenzia: www.asteagency.com

Verifica fattibilità d’acquisto in PRE-ASTA

DATA ASTA : 18/03/26

UBICAZIONE E DESCRIZIONE:
Indirizzo: Via Isacco Newton, 38 – 31020 Villorba (TV)
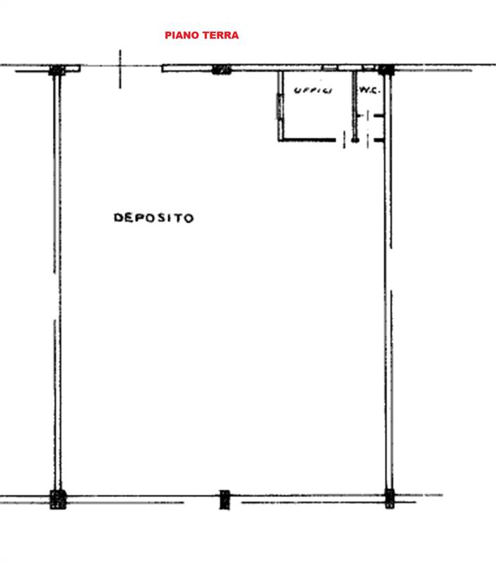
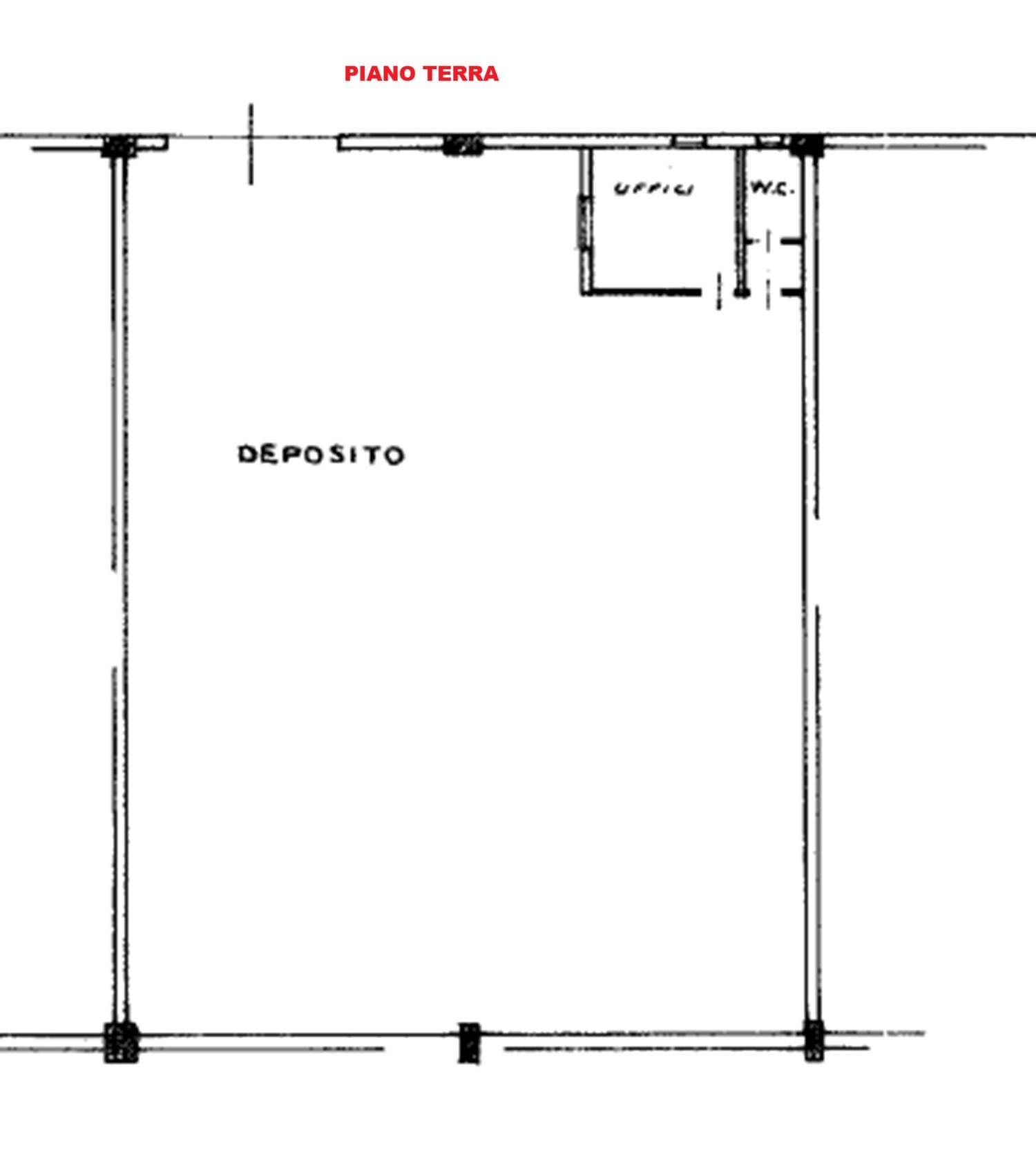
Descrizione sintetica: Capannone con relativa area urbana, entrando dal portone principale troviamo un ampio locale adibito a deposito, sulla sinistra poi troviamo un locale adibito a ufficio dal quale si accede ad un servizio igienico. Dall’ampio deposito si accede inoltre a un locale attualmente adibito a cucina dove troviamo una scala a chiocciola tramite la quale si accede al piano superiore dove riscontriamo un corridoio che funge da disimpegno dal quale si accede al wc, ad una camera ed infine ad un’altra camera. A ridosso del locale cucina sul lato est esiste una struttura intelaiata in ferro dalla quale tramite una scaletta si accede ad un soppalco utilizzato come deposito e accatastamento di materiale vario.

Superficie lorda commerciale mq: 281,58
Superficie giardino mq. 19,04

Aste Agency SRL offre il servizio di assistenza per acquistare tramite un mutuo con banche convenzionate. Assiste ed indirizza, dall’aggiudicazione fino alla consegna delle chiavi.

PERCHE’ COMPRARE ALL’ASTA:
- Acquisto sicuro tramite Tribunale;
- Prezzo inferiore rispetto al mercato libero, quindi rata del mutuo più bassa;
- Banche convenzionate con i Tribunali;
- Nessun vincolo di prezzo nella rivendita e nella locazione.

Le Aste Giudiziarie sono soluzioni abitative a prezzi unici, in quanto si compera ad un prezzo inferiore, paragonato alla realtà proibitiva del mercato libero, e l’investimento immobiliare risulta essere sicuramente conveniente.
Per maggiori delucidazioni vi invitiamo a contattarci. Sarà nostra premura fissare un appuntamento in studio e trasferirvi tutte le informazioni necessarie per un’attenta e serena valutazione.

ASTE AGENCY SRL – Contattateci per un appuntamento presso uno dei nostri uffici o in videochiamata.
Caratteristiche principali
Codice:
365.23.180326.TV
Città:
Villorba
Categoria:
Capannone
Locali:
3
Bagni:
1
Mq:
281,58
Mq Giardino:
19,04
Piano:
Terra
Anno:
1981
Classe energetica:
G
Stato Immobile:
Buono
Grado:
Signorile
Lati Liberi:
2
Arredi:
Non Arredato
Riscaldamento:
No
Infissi:
Alluminio
Serramenti:
Buono
Persiana:
Tapparella Metallo
Pavim. Cucina:
Ceramica
Pavim. Bagno:
Ceramica
Pavimento:
Ceramica
Accesso Disabili:
Nessuna Barriera
Accesso interno disabili:
Pieno accesso
Mappa
via Isacco Newton, 38 - Villorba (TV)
Planimetrie
Richiedi informazioni
Invia
Cookie preference