Acquisto Assistito in Asta Giudiziaria

In vendita
Capannone
Monselice
1.915.000 €
Descrizione
Acquisto Assistito in Asta Giudiziaria
Per maggiori proposte visita il sito dell’agenzia: www.asteagency.com

Verifica fattibilità d’acquisto in PRE-ASTA

DATA ASTA : 30/01/26

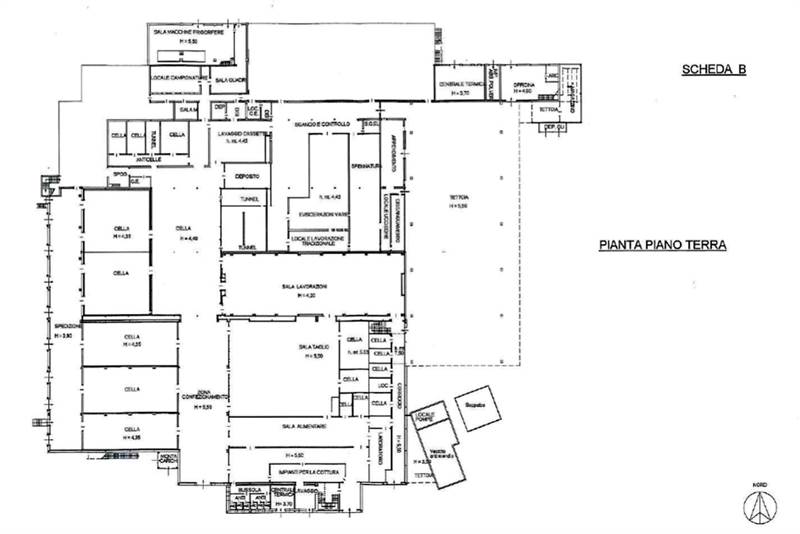
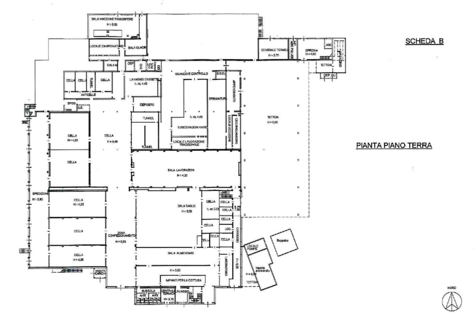
UBICAZIONE E DESCRIZIONE:
Indirizzo: Via Rovignana 47, Monselice (PD)

Descrizione sintetica: Compendio produttivo adibito alla macellazione, trasformazione e commercializzazione di carni avicole. Il complesso produttivo è costituito da un fabbricato a due livelli fuori terra dotato di zona produttiva, zona uffici, zona spedizione, cabina elettrica e depuratore. Completa la proprietà l’area pertinenziale che risulta in parte adibita a verde, in parte a parcheggio ed in parte a viabilità interna.Gli immobili occupano un’area parzialmente edificata di complessivi 32.354 mq catastali.
Il corpo fabbrica principale comprende le seguenti aree al piano terreno:
• Stabilimento di macellazione e lavorazione costituto da tettoia di ricevimento e sosta animali vivi, Macello,
sale di lavorazione, celle frigorifere, area spedizione caratterizzata dalla presenza di n° 8 bocche di carico;
• Centrali tecnologiche, quali centrale frigorifera, centrale termica, Locali quadri elettrici;
• Uffici tecnici e commerciali;
• Spogliatoi e servizi igienici per il personale.
Al piano primo:
• magazzino imballaggi;
• Uffici amministrativi e direzionali.
• Mensa aziendale;
• Area attualmente al grezzo per futuro alloggio del custode.
In corpo fabbrica separato:
• Centrale idrica
• Cabina Enel
• Impianto trattamento reflui

Superfici lorda commerciale mq: 32.354
• Sala di lavorazione e macellazione, mq 3.670
• Celle frigorifere per, mq 1.800
• Locali ad uso produttivo, mq 2.850
• Capannone sosta animali vivi, mq 1.360
• Magazzini per imballaggio, mq 5.380
• Uffici, mq 800
• Spogliatoi, sala mensa e servizi igienici, mq 1.110
• Vani allo stato grezzo, mq 200.

Home Agency offre il servizio di assistenza per acquistare tramite un mutuo con banche convenzionate. Assiste ed indirizza, dall’aggiudicazione fino alla consegna delle chiavi.

PERCHE’ COMPRARE ALL’ASTA:
- Acquisto sicuro tramite Tribunale;
- Prezzo inferiore rispetto al mercato libero, quindi rata del mutuo più bassa;
- Banche convenzionate con i Tribunali;
- Nessun vincolo di prezzo nella rivendita e nella locazione.

Le Aste Giudiziarie sono soluzioni abitative a prezzi unici, in quanto si compera ad un prezzo inferiore, paragonato alla realtà proibitiva del mercato libero, e l’investimento immobiliare risulta essere sicuramente conveniente.
Per maggiori delucidazioni vi invitiamo a contattarci. Sarà nostra premura fissare un appuntamento in studio e trasferirvi tutte le informazioni necessarie per un’attenta e serena valutazione.

PADOVA (PD) Via Giovanni Berchet, 10 - previo appuntamento
Bologna - Padova - Rovigo - Treviso - Venezia - Vicenza
Caratteristiche principali
Codice:
31.19.1.300126.PD
Città:
Monselice
Categoria:
Capannone
Locali:
20
Bagni:
5
Mq:
32354
Box:
1
Mq Box:
170
Piano:
Terra
Anno:
1969
Anno ristrutturazione:
2001
Classe energetica:
G
Stato Immobile:
Buono
Grado:
Medio
Posizione:
Periferia
Panorama:
Vista Aperta
Orientamento:
Nord Ovest Sud Est
Lati Liberi:
4
Riscaldamento:
Autonomo
Acqua Calda:
Autonoma
Infissi:
Alluminio Doppio Vetro
Serramenti:
Buono
Persiana:
Personalizzato
Pavim. Bagno:
Ceramica
Pavimento:
Ceramica
Destinazione:
Industriale
Accesso Disabili:
Nessuna Barriera
Accessori
Cancello Elettrico
Doppi Vetri
Doppio Ingresso
Ingresso Indipendente
Lavanderia
Passaggio Automobilistico
Passaggio Pedonale
Portineria/Custode
Ripostiglio
Mappa
Via Rovignana, 47 - Monselice (PD)
Richiedi informazioni
Invia
Cookie preference