Acquisto Assistito - in Asta e Pre-Asta

In vendita
Ufficio
Montebelluna
65.100 €
Descrizione
Per maggiori proposte visita il sito dell’agenzia: www.asteagency.com

Verifica fattibilità d’acquisto in PRE-ASTA

DATA ASTA: 27/01/26

UBICAZIONE E DESCRIZIONE:
Corso Giuseppe Mazzini, 13 – 31044 Montebelluna (TV)
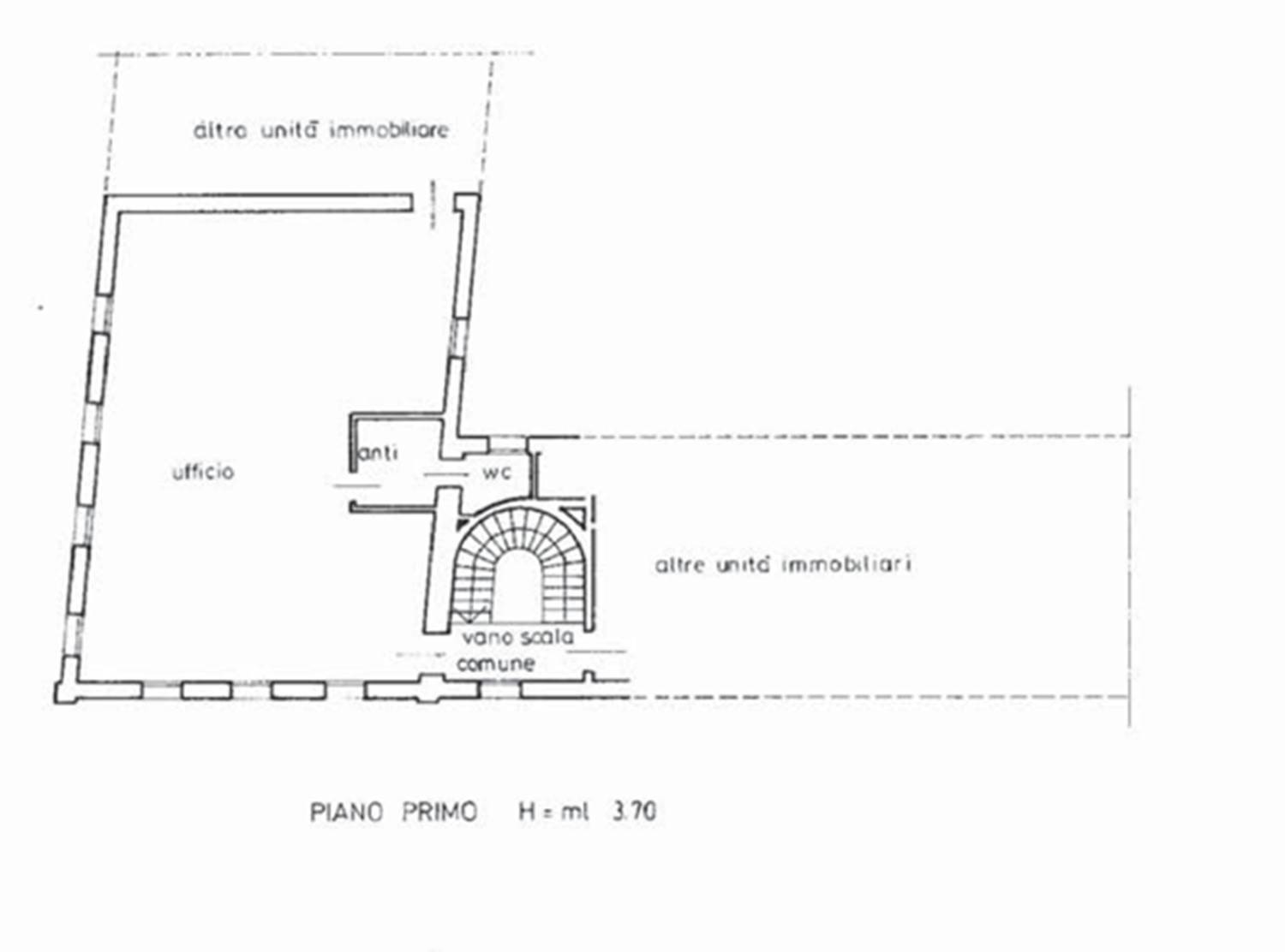
Descrizione sintetica: Trattasi di un ufficio di mq 129,30 con antibagno e bagno al piano primo facente parte di un fabbricato sito nel Comune di Montebelluna (TV), in Corso Giuseppe Mazzini n. 13.

Aste Agency SRL offre il servizio di assistenza per acquistare tramite un mutuo con banche convenzionate. Assiste ed indirizza, dall’aggiudicazione fino alla consegna delle chiavi.

PERCHE’ COMPRARE ALL’ASTA:
- Acquisto sicuro tramite Tribunale;
- Prezzo inferiore rispetto al mercato libero, quindi rata del mutuo più bassa;
- Banche convenzionate con i Tribunali;
- Nessun vincolo di prezzo nella rivendita e nella locazione.

Le Aste Giudiziarie sono soluzioni abitative a prezzi unici, in quanto si compera ad un prezzo inferiore, paragonato alla realtà proibitiva del mercato libero, e l’investimento immobiliare risulta essere sicuramente conveniente.
Per maggiori delucidazioni vi invitiamo a contattarci. Sarà nostra premura fissare un appuntamento in studio e trasferirvi tutte le informazioni necessarie per un’attenta e serena valutazione.

ASTE AGENCY SRL – Contattateci per un appuntamento presso uno dei nostri uffici o in videochiamata.
Caratteristiche principali
Codice:
303.22.6.270126.TV
Città:
Montebelluna
Categoria:
Ufficio
Locali:
1
Bagni:
1
Mq:
129,3
Piano:
1
Anno:
1967
Classe energetica:
G
Stato Immobile:
Buono
Grado:
Signorile
Arredi:
Non Arredato
Riscaldamento:
Autonomo
Fonte Energetica:
Gas
Accesso Disabili:
No
Mappa
Corso giuseppe mazzini, 13 - Montebelluna (TV)
Richiedi informazioni
Invia
Cookie preference