Acquisto Assistito in Asta Giudiziaria

In vendita
Appartamento
Fabriano
29.079 €
Descrizione
Acquisto Assistito in Asta Giudiziaria
Per maggiori proposte visita il sito dell’agenzia: www.asteagency.com

Verifica fattibilità d’acquisto in PRE-ASTA
DATA ASTA: 04/12/2025

Disponibilità: Occupato con regolare contratto di locazione
UBICAZIONE E DESCRIZIONE:
Via Carlo Urbani, 15, 60044, Fabriano Ancona
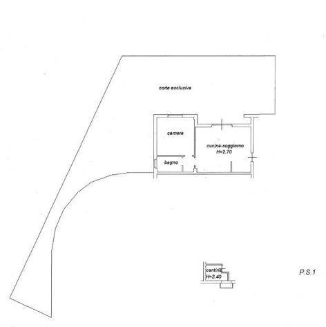
Descrizione sintetica: appartamento al piano terra costituito da cucina/soggiorno, dal quale si accede al giardino di mq 184,48, camera matrimoniale, disimpegno, loggia di mq 5,28 e bagno, oltre a cantina di mq 3,18 e posto auto coperto di mq 18,02.

Superficie lorda commerciale mq: 100,25

Aste Agency SRL offre il servizio di assistenza per acquistare tramite un mutuo con banche convenzionate. Assiste ed indirizza, dall’aggiudicazione fino alla consegna delle chiavi.

PERCHE’ COMPRARE ALL’ASTA:
- Acquisto sicuro tramite Tribunale;
- Prezzo inferiore rispetto al mercato libero, quindi rata del mutuo più bassa;
- Banche convenzionate con i Tribunali;
- Nessun vincolo di prezzo nella rivendita e nella locazione.

Le Aste Giudiziarie sono soluzioni abitative a prezzi unici, in quanto si compera ad un prezzo inferiore, paragonato alla realtà proibitiva del mercato libero, e l’investimento immobiliare risulta essere sicuramente conveniente.
Per maggiori delucidazioni vi invitiamo a contattarci. Sarà nostra premura fissare un appuntamento in studio e trasferirvi tutte le informazioni necessarie per un’attenta e serena valutazione.

ASTE AGENCY SRL – Contattateci per un appuntamento presso uno dei nostri uffici o in videochiamata
Caratteristiche principali
Codice:
299.21.1.041225.AN
Città:
Fabriano
Categoria:
Appartamento
Locali:
2
Camere:
1
Bagni:
1
Mq:
100,25
Posti auto:
1
Mq Giardino:
184,48
Piano:
Terra
Anno:
2008
Classe energetica:
G
Stato Immobile:
Buono
Grado:
Medio
Lati Liberi:
2
Arredi:
Non Arredato
Tipo Cucina:
Angolo Cottura
Riscaldamento:
Autonomo
Tipo Riscaldam.:
Caldaia
Tipo Impianto:
Radiatori
Fonte Energetica:
Metano
Infissi:
Legno
Accesso Disabili:
No
Accessori
Ascensore
Mappa
Via Carlo Urbani - Fabriano (AN)
Planimetrie
Richiedi informazioni
Invia
Cookie preference