Acquisto Assistito in Asta Giudiziaria

In vendita
Appartamento
San Martino Siccomario
69.750 €
Descrizione
Acquisto Assistito in Asta Giudiziaria
Per maggiori proposte visita il sito dell’agenzia:
www.asteagency.com

Verifica fattibilità d’acquisto in PRE-ASTA
DATA ASTA : 26/03/2026

UBICAZIONE E DESCRIZIONE:
Indirizzo: Via della stazione n. 11 - San Martino Siccomario (PV)
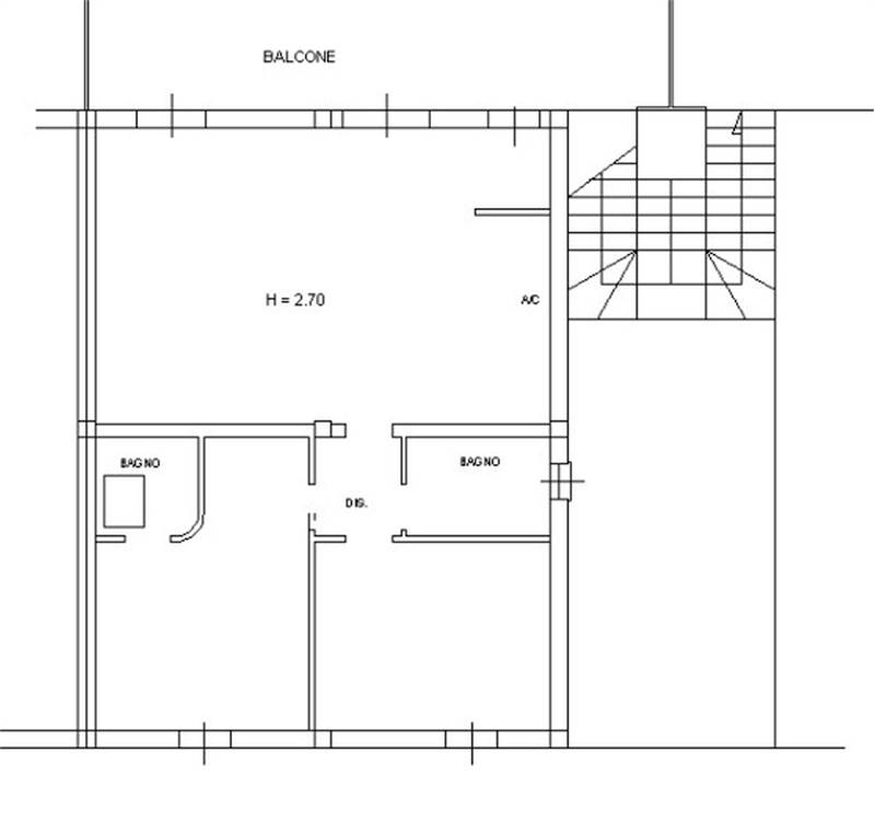
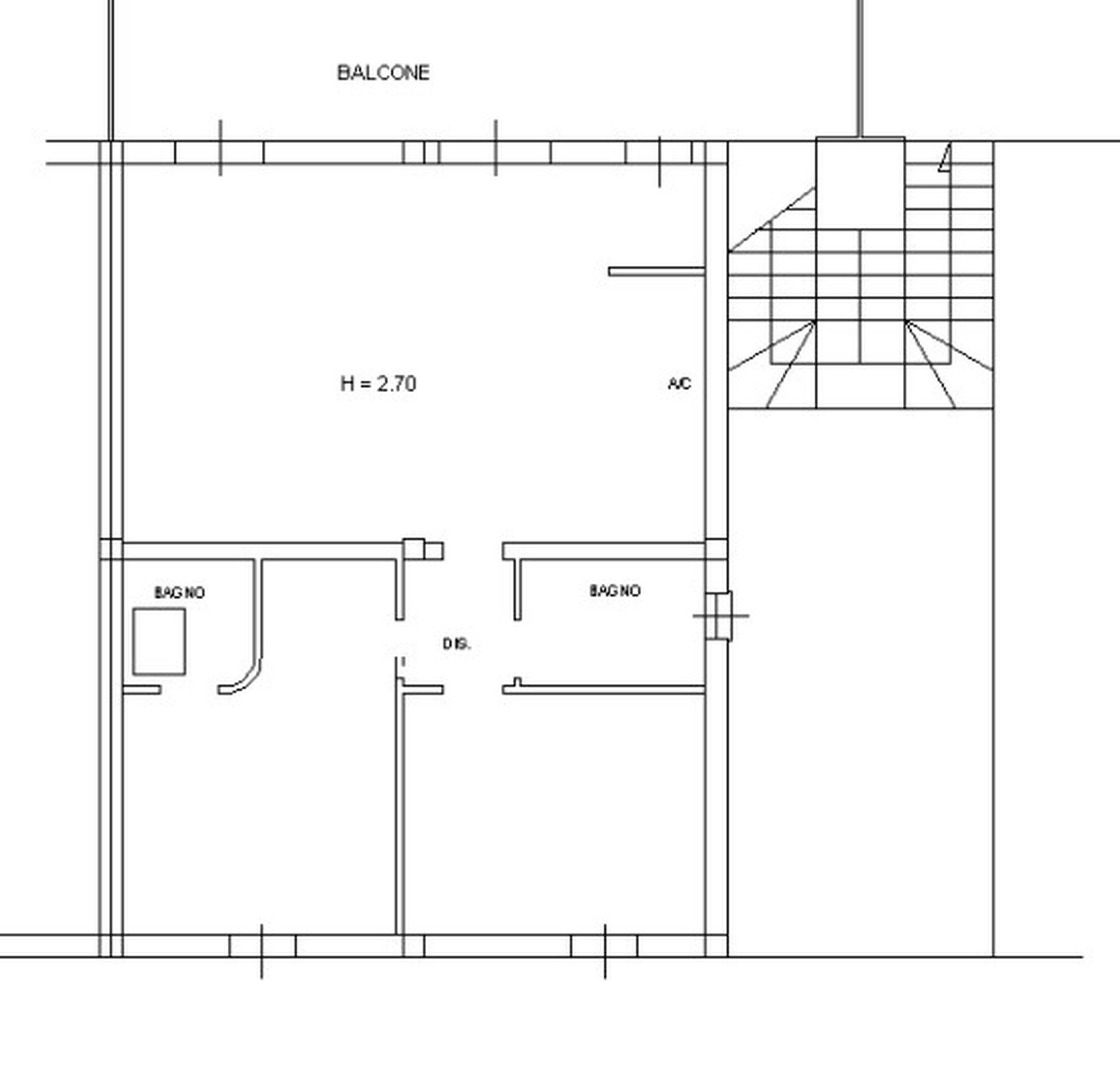
Descrizione sintetica: Appartamento di 99 mq posto al piano primo e composto da soggiorno di 40 mq con angolo cottura, due camere di 13 e 15 mq, due bagni di 4 e 3 mq, disimpegno e balcone dal quale si accede. Risultano mancanti le finiture per completare l'impianto elettrico

Aste Agency SRL offre il servizio di assistenza per acquistare tramite un mutuo con banche convenzionate. Assiste ed indirizza, dall’aggiudicazione fino alla consegna delle chiavi.

PERCHE’ COMPRARE ALL’ASTA:
- Acquisto sicuro tramite Tribunale;
- Prezzo inferiore rispetto al mercato libero, quindi rata del mutuo più bassa;
- Banche convenzionate con i Tribunali;
- Nessun vincolo di prezzo nella rivendita e nella locazione.

Le Aste Giudiziarie sono soluzioni abitative a prezzi unici, in quanto si compera ad un prezzo inferiore, paragonato alla realtà proibitiva del mercato libero, e l’investimento immobiliare risulta essere sicuramente conveniente.
Per maggiori delucidazioni vi invitiamo a contattarci. Sarà nostra premura fissare un appuntamento in studio e trasferirvi tutte le informazioni necessarie per un’attenta e serena valutazione.

ASTE AGENCY SRL – Contattateci per un appuntamento presso uno dei nostri uffici o in videochiamata.
Caratteristiche principali
Codice:
288.23.7.260326.PV
Città:
San Martino Siccomario
Categoria:
Appartamento
Locali:
4
Camere:
2
Bagni:
1
Mq:
91
Balconi:
1
Piano:
1
Anno:
2006
Classe energetica:
G
Stato Immobile:
Buono
Grado:
Medio
Arredi:
Non Arredato
Tipo Cucina:
Angolo Cottura
Riscaldamento:
Da Creare
Fonte Energetica:
Metano
Acqua Calda:
Assente
Accesso Disabili:
No
Mappa
Via della stazione , 11 - San Martino Siccomario (PV)
Planimetrie
Richiedi informazioni
Invia
Cookie preference