Acquisto Assistito in Asta Giudiziaria

In vendita
Appartamento
Calvenzano
29.814 €
Descrizione
Acquisto Assistito in Asta Giudiziaria
Per maggiori proposte visita il sito dell’agenzia:
www.asteagency.com

Verifica fattibilità d’acquisto in PRE-ASTA
DATA ASTA : 11/02/2026

Disponibilità: Libero al Decreto di Trasferimento

UBICAZIONE E DESCRIZIONE:
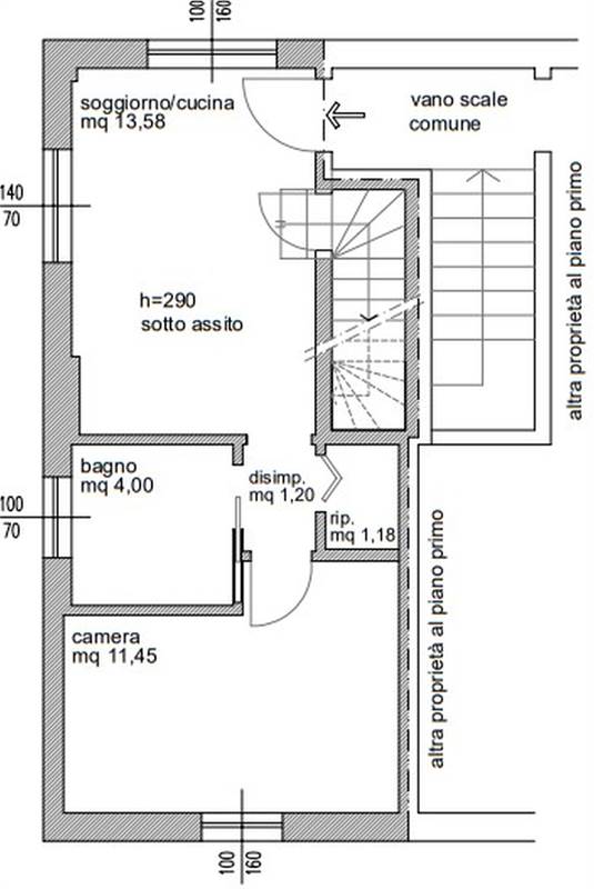
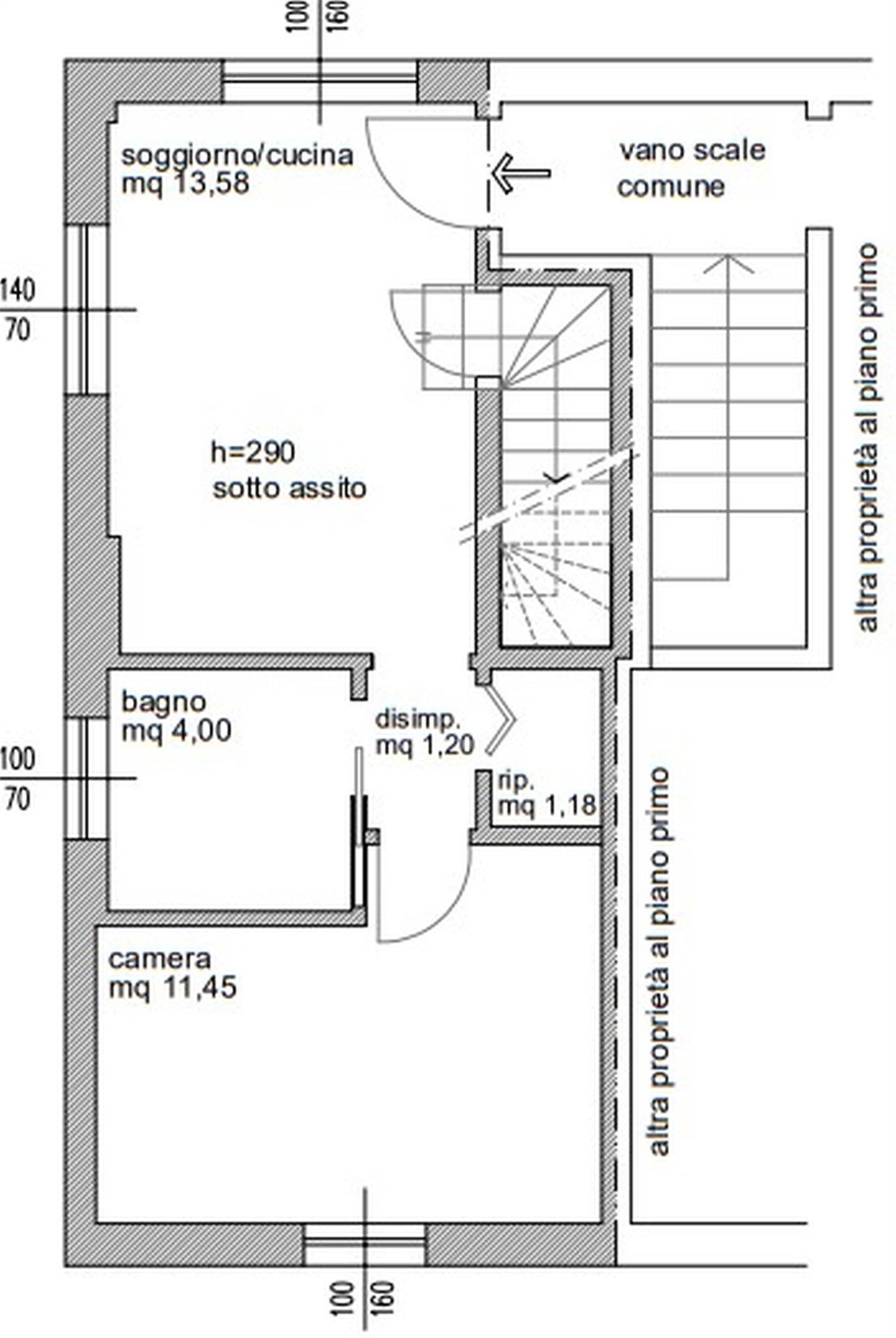
Indirizzo: Via Aldo Lusardi n. 9 – Calvenzano (BG)
Descrizione sintetica: Trattasi di un appartamento di 55 mq sito al piano primo di edificio ristrutturato nel 2005 con un sottotetto non abitabile. E' composto da soggiorno-cucina di 13,58 mq, disimpegno, bagno di 4 mq e camera di 11,5 mq.

Aste Agency SRL offre il servizio di assistenza per acquistare tramite un mutuo con banche convenzionate. Assiste ed indirizza, dall’aggiudicazione fino alla consegna delle chiavi.

PERCHE’ COMPRARE ALL’ASTA:
- Acquisto sicuro tramite Tribunale;
- Prezzo inferiore rispetto al mercato libero, quindi rata del mutuo più bassa;
- Banche convenzionate con i Tribunali;
- Nessun vincolo di prezzo nella rivendita e nella locazione.

Le Aste Giudiziarie sono soluzioni abitative a prezzi unici, in quanto si compera ad un prezzo inferiore, paragonato alla realtà proibitiva del mercato libero, e l’investimento immobiliare risulta essere sicuramente conveniente.
Per maggiori delucidazioni vi invitiamo a contattarci. Sarà nostra premura fissare un appuntamento in studio e trasferirvi tutte le informazioni necessarie per un’attenta e serena valutazione.

ASTE AGENCY SRL – Contattateci per un appuntamento presso uno dei nostri uffici o in videochiamata.
Caratteristiche principali
Codice:
28.25.110226.BG
Città:
Calvenzano
Categoria:
Appartamento
Locali:
4
Camere:
1
Bagni:
1
Mq:
55
Piano:
1
Anno:
1967
Classe energetica:
G
Stato Immobile:
Buono
Grado:
Medio
Arredi:
Non Arredato
Tipo Cucina:
A Vista
Riscaldamento:
Autonomo
Tipo Impianto:
Radiatori
Fonte Energetica:
Metano
Acqua Calda:
Autonoma
Accesso Disabili:
No
Mappa
Via Aldo Lusardi, 9 - Calvenzano (BG)
Richiedi informazioni
Invia
Cookie preference