Acquisto Assistito in Asta Giudiziaria

In vendita
Appartamento
Pavia
158.250 €
Descrizione
Acquisto Assistito in Asta Giudiziaria
Per maggiori proposte visita il sito dell’agenzia:
www.asteagency.com

Verifica fattibilità d’acquisto in PRE-ASTA
DATA ASTA : 26/03/2026

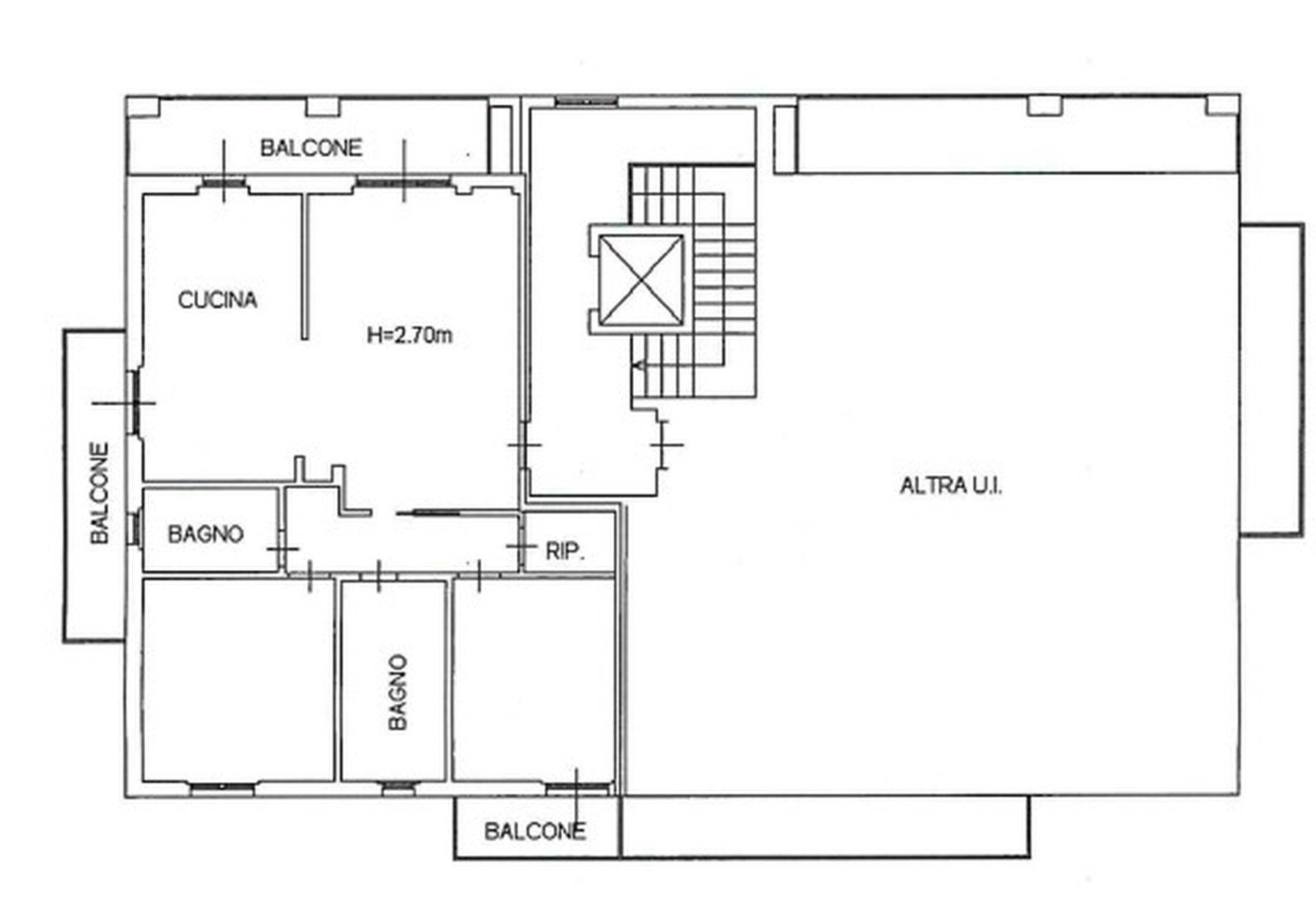
UBICAZIONE E DESCRIZIONE:
Indirizzo: Via Ciapessoni n. 11 – Pavia (PV)
Descrizione sintetica: Appartamento di 127 mq con annessa cantina e autorimessa situato in un edificio condominiale al secondo piano. Risulta composto da tre locali, cucina, due bagni, oltre a ripostiglio e balconi con annesso locale sottotetto.

Aste Agency SRL offre il servizio di assistenza per acquistare tramite un mutuo con banche convenzionate. Assiste ed indirizza, dall’aggiudicazione fino alla consegna delle chiavi.

PERCHE’ COMPRARE ALL’ASTA:
- Acquisto sicuro tramite Tribunale;
- Prezzo inferiore rispetto al mercato libero, quindi rata del mutuo più bassa;
- Banche convenzionate con i Tribunali;
- Nessun vincolo di prezzo nella rivendita e nella locazione.

Le Aste Giudiziarie sono soluzioni abitative a prezzi unici, in quanto si compera ad un prezzo inferiore, paragonato alla realtà proibitiva del mercato libero, e l’investimento immobiliare risulta essere sicuramente conveniente.
Per maggiori delucidazioni vi invitiamo a contattarci. Sarà nostra premura fissare un appuntamento in studio e trasferirvi tutte le informazioni necessarie per un’attenta e serena valutazione.

ASTE AGENCY SRL – Contattateci per un appuntamento presso uno dei nostri uffici o in videochiamata.
Caratteristiche principali
Codice:
279.22.260326.PV
Città:
Pavia
Categoria:
Appartamento
Locali:
6
Camere:
2
Bagni:
2
Mq:
127
Box:
1
Balconi:
1
Piano:
3
Anno:
1973
Classe energetica:
G
Stato Immobile:
Buono
Grado:
Medio
Arredi:
Non Arredato
Tipo Cucina:
Abitabile
Riscaldamento:
Autonomo
Fonte Energetica:
Metano
Acqua Calda:
Autonoma
Accesso Disabili:
No
Accessori
Ascensore
Mappa
Via Ciapessoni, 11 - Pavia (PV)
Richiedi informazioni
Invia
Cookie preference