Acquisto Assistito in Asta Giudiziaria

In vendita
Ufficio
Rovigo (Centro)
223.500 €
Descrizione
Acquisto Assistito in Asta Giudiziaria
Per maggiori proposte visita il sito dell’agenzia: www.asteagency.com

Verifica fattibilità d’acquisto in PRE-ASTA

DATA ASTA : 05/02/26

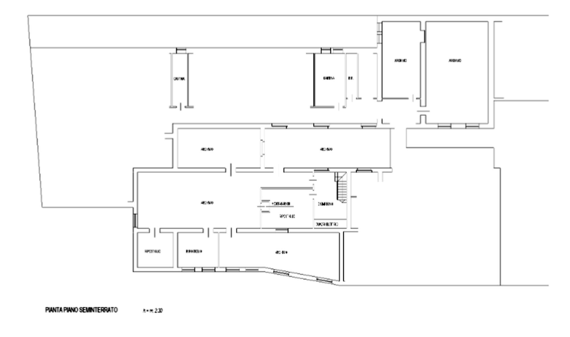
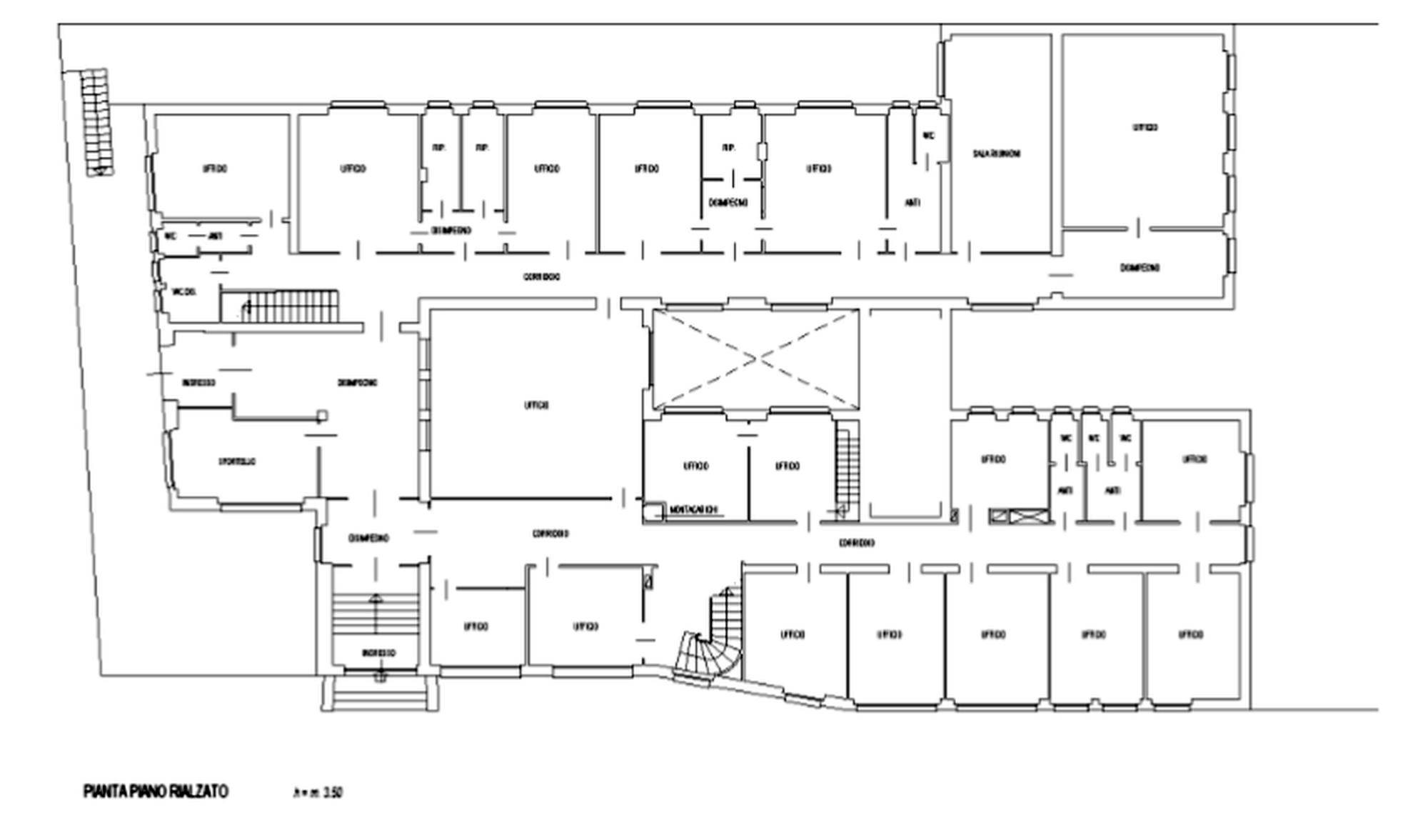
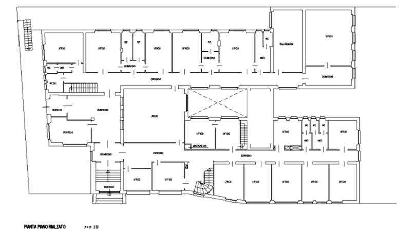
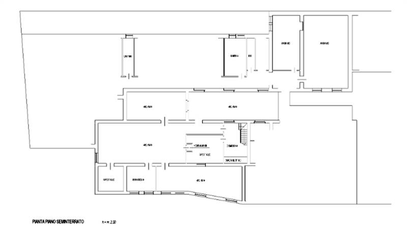
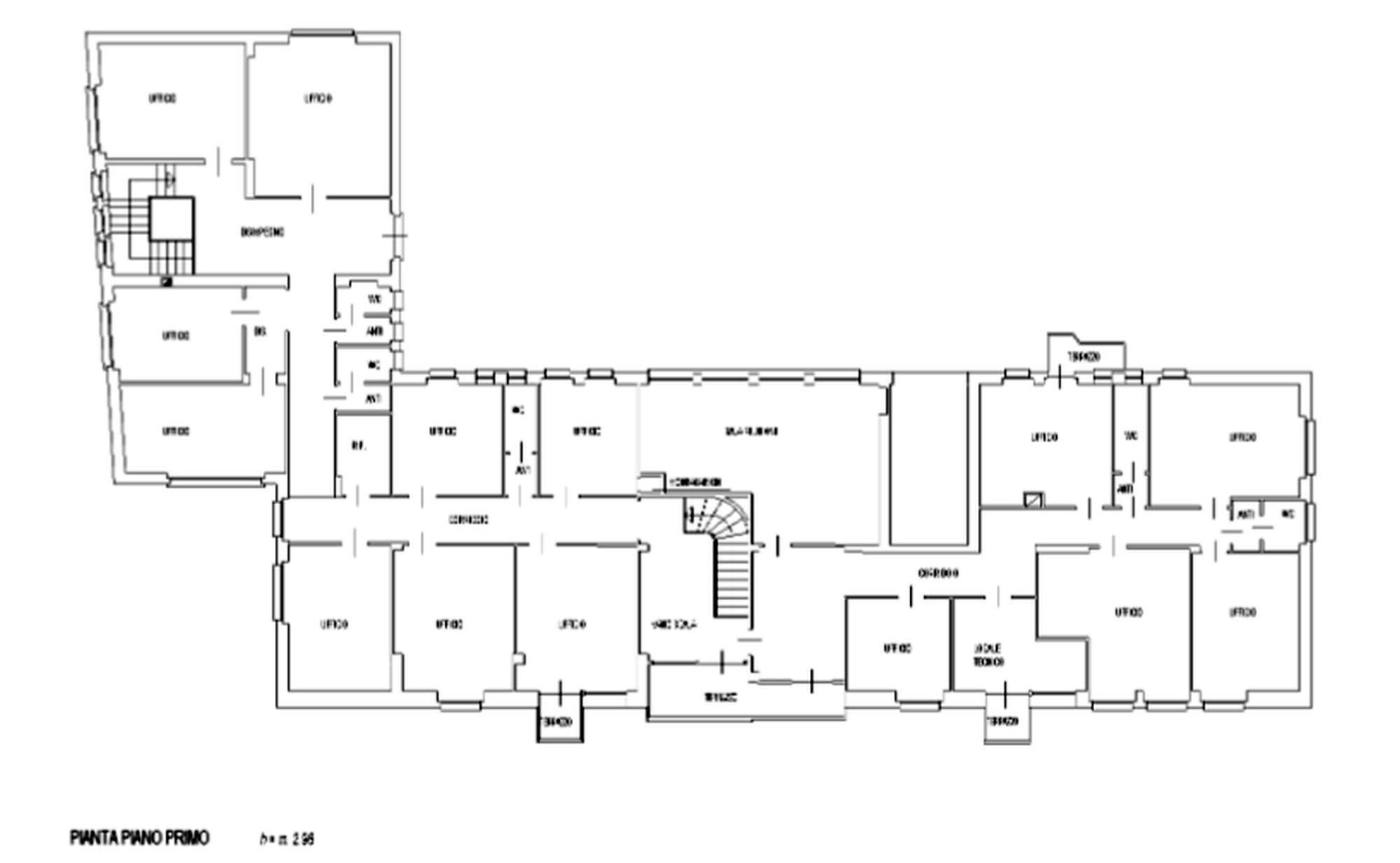
UBICAZIONE E DESCRIZIONE:
Indirizzo: viale Trieste 18, Rovigo

Descrizione sintetica: Blocco uffici pubblici a Rovigo (RO). Superficie commerciale di 1552,40 mq. Ex INAIL dislocato su tre livelli. Piano rialzato e primo con uffici e wc. Seminterrato con archivi e cantina. Scale interne. Accesso fronte strada e da corte comune. Finiture standard. Impianti autonomi.

Superficie lorda commerciale mq: 1552,40

Home Agency offre il servizio di assistenza per acquistare tramite un mutuo con banche convenzionate. Assiste ed indirizza, dall’aggiudicazione fino alla consegna delle chiavi.

PERCHE’ COMPRARE ALL’ASTA:
- Acquisto sicuro tramite Tribunale;
- Prezzo inferiore rispetto al mercato libero, quindi rata del mutuo più bassa;
- Banche convenzionate con i Tribunali;
- Nessun vincolo di prezzo nella rivendita e nella locazione.

Le Aste Giudiziarie sono soluzioni abitative a prezzi unici, in quanto si compera ad un prezzo inferiore, paragonato alla realtà proibitiva del mercato libero, e l’investimento immobiliare risulta essere sicuramente conveniente.
Per maggiori delucidazioni vi invitiamo a contattarci. Sarà nostra premura fissare un appuntamento in studio e trasferirvi tutte le informazioni necessarie per un’attenta e serena valutazione.

PADOVA (PD) Via Giovanni Berchet, 10 - previo appuntamento
Bologna - Padova - Rovigo - Treviso - Venezia - Vicenza
Caratteristiche principali
Codice:
27.23.23660.050226.RO
Città:
Rovigo (Centro)
Categoria:
Ufficio
Locali:
35
Bagni:
8
Mq:
1552,4
Mq Balcone:
17,5
Piano:
Rialzato
Anno:
1955
Anno ristrutturazione:
1999
Classe energetica:
F
Stato Immobile:
Buono
Grado:
Medio
Posizione:
Centro
Panorama:
Vista Aperta
Orientamento:
Nord Ovest Sud Est
Lati Liberi:
4
Arredi:
Non Arredato
Riscaldamento:
Autonomo
Tipo Impianto:
Radiatori
Acqua Calda:
Autonoma
Raffrescamento:
Centralizzato
Infissi:
Legno Doppio Vetro
Serramenti:
Buono
Persiana:
Tapparella Legno
Pavim. Bagno:
Ceramica
Pavimento:
Graniglia
Accesso Disabili:
Nessuna Barriera
Accessori
Aria Condizionata
Doppi Vetri
Ingresso Indipendente
Passaggio Automobilistico
Passaggio Pedonale
Portineria/Custode
Ripostiglio
Mappa
viale Trieste, 18 - Rovigo (RO)
Richiedi informazioni
Invia
Cookie preference