Acquisto Assistito - in Asta e Pre-Asta

In vendita
Ufficio
Silea
138.150 €
Descrizione
Acquisto Assistito in Asta Giudiziaria
Per maggiori proposte visita il sito dell’agenzia: www.asteagency.com

Verifica fattibilità d’acquisto in PRE-ASTA

DATA ASTA : 24/02/26

UBICAZIONE E DESCRIZIONE:
Via Treviso, 63 Silea TV

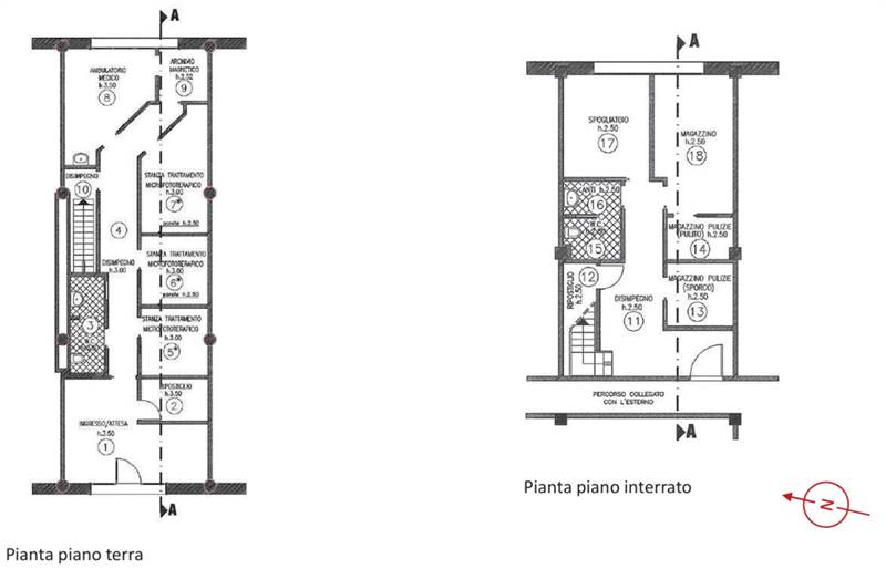
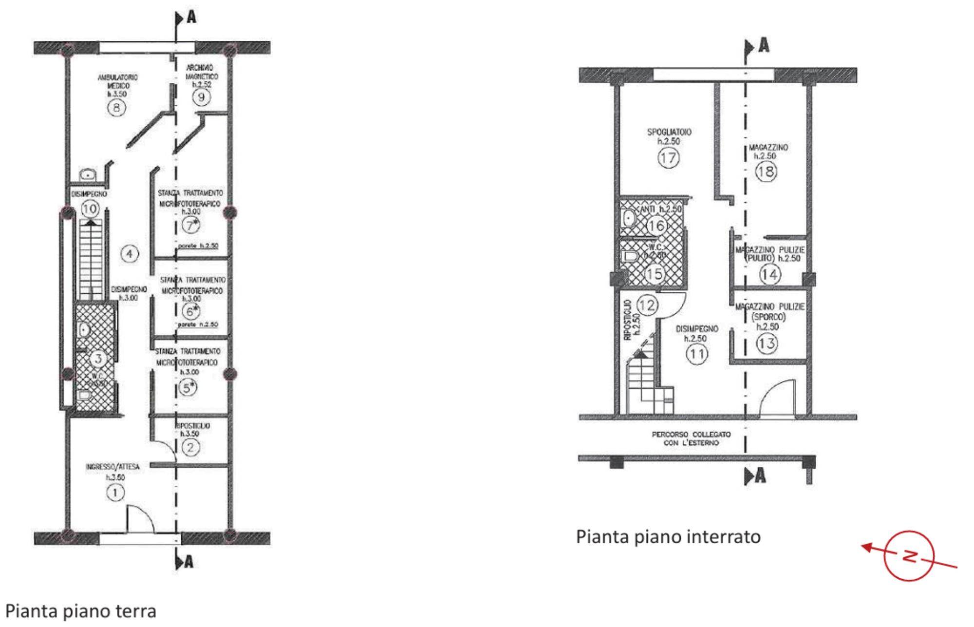
Descrizione sintetica: locali in fabbricato, condominio denominato "Centro direzionale e commerciale Rondò" e precisamente nel corpo "A". Ambulatorio così catastalmente composto: ingresso - attesa, tre stanze, ambulatorio medico, bagno, due disimpegni, ripostiglio e archivio al piano terra; disimpegno, ripostiglio, tre magazzini, spogliatoio, antibagno e bagno al piano interrato.


Aste Agency SRL offre il servizio di assistenza per acquistare tramite un mutuo con banche convenzionate. Assiste ed indirizza, dall’aggiudicazione fino alla consegna delle chiavi.

PERCHE’ COMPRARE ALL’ASTA:
- Acquisto sicuro tramite Tribunale;
- Prezzo inferiore rispetto al mercato libero, quindi rata del mutuo più bassa;
- Banche convenzionate con i Tribunali;
- Nessun vincolo di prezzo nella rivendita e nella locazione.

Le Aste Giudiziarie sono soluzioni abitative a prezzi unici, in quanto si compera ad un prezzo inferiore, paragonato alla realtà proibitiva del mercato libero, e l’investimento immobiliare risulta essere sicuramente conveniente.
Per maggiori delucidazioni vi invitiamo a contattarci. Sarà nostra premura fissare un appuntamento in studio e trasferirvi tutte le informazioni necessarie per un’attenta e serena valutazione.

ASTE AGENCY SRL – Contattateci per un appuntamento presso uno dei nostri uffici o in videochiamata.
Caratteristiche principali
Codice:
261.24.240226.TV
Città:
Silea
Categoria:
Ufficio
Locali:
5
Bagni:
2
Mq:
142
Piano:
Terra
Anno:
1996
Classe energetica:
G
Stato Immobile:
Buono
Grado:
Medio
Riscaldamento:
Autonomo
Fonte Energetica:
Gas
Raffrescamento:
Split
Accesso Disabili:
No
Accessori
Aria Condizionata
Ripostiglio
Mappa
Via Treviso , 63 - Silea (TV)
Planimetrie
Richiedi informazioni
Invia
Cookie preference