Acquisto Assistito - in Asta e Pre-Asta

In vendita
Villetta schiera
Suzzara
133.875 €
Descrizione
Per maggiori proposte visita il sito dell’agenzia: www.asteagency.com

Verifica fattibilità d’acquisto in PRE-ASTA

DATA ASTA: 17/12/2025

Disponibilità: Libero al decreto di trasferimento
UBICAZIONE E DESCRIZIONE:
Str. Carobio, 8/1 - 46029 Tabellano, Suzzara (MN)
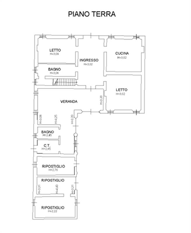
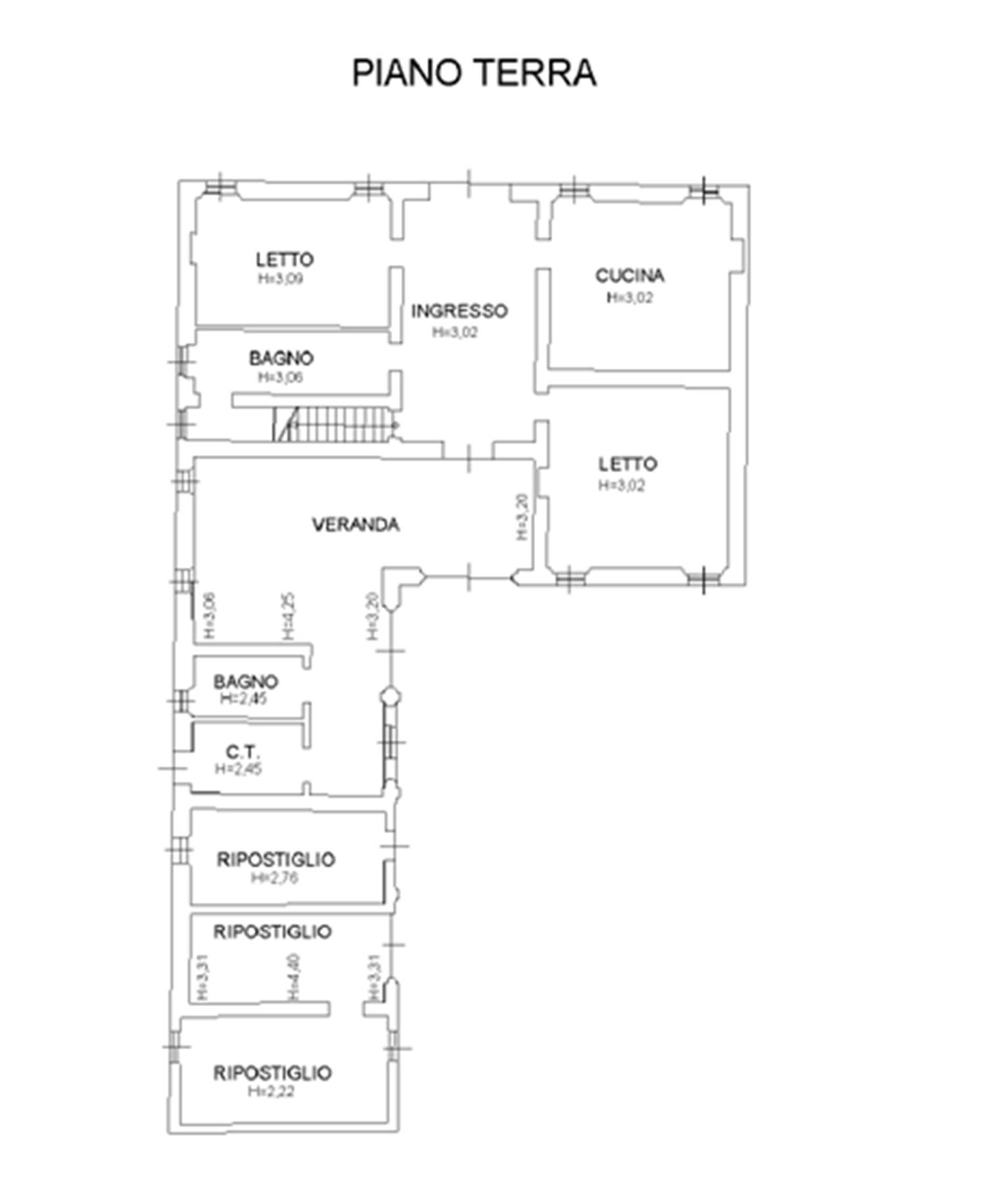
Descrizione sintetica: Trattasi di corte colonica del XVIII secolo denominata "Corte Barini Bassana" sita nel Comune di Suzzara (MN) - fraz. di Tabellano, strada Carobio n. 8/1, costituita da fabbricati rurali, uno dei quali a destinazione abitazione in villini per la porzione al piano terra, mentre la porzione al piano primo e quella annessa, costituita da tre piani fuori terra e l'adiacente stalla con fienile, sono identificati come "unità collabenti"con una superficie di circa mq 1.528,00
La porzione di immobile residenziale è un’abitazione che si sviluppa interamente al piano terra ed è composto da ingresso, cucina, due camere da letto, un bagno (con una superficie lorda commerciale di 144,00 mq. circa), una veranda che funge da collegamento con una porzione in cui si trovano bagno, centrale termica di 80,00 mq. circa e tre locali ripostiglio commerciale di 60,00 mq. circa.

Aste Agency SRL offre il servizio di assistenza per acquistare tramite un mutuo con banche convenzionate. Assiste ed indirizza, dall’aggiudicazione fino alla consegna delle chiavi.

PERCHE’ COMPRARE ALL’ASTA:
- Acquisto sicuro tramite Tribunale;
- Prezzo inferiore rispetto al mercato libero, quindi rata del mutuo più bassa;
- Banche convenzionate con i Tribunali;
- Nessun vincolo di prezzo nella rivendita e nella locazione.

Le Aste Giudiziarie sono soluzioni abitative a prezzi unici, in quanto si compera ad un prezzo inferiore, paragonato alla realtà proibitiva del mercato libero, e l’investimento immobiliare risulta essere sicuramente conveniente.
Per maggiori delucidazioni vi invitiamo a contattarci. Sarà nostra premura fissare un appuntamento in studio e trasferirvi tutte le informazioni necessarie per un’attenta e serena valutazione.

ASTE AGENCY SRL – Contattateci per un appuntamento presso uno dei nostri uffici o in videochiamata.
Caratteristiche principali
Codice:
25.24.1.171225.MN
Città:
Suzzara
Categoria:
Villetta schiera
Locali:
3
Camere:
2
Bagni:
1
Mq:
704,25
Piano:
1
Anno:
1967
Classe energetica:
G
Stato Immobile:
Abitabile
Grado:
Signorile
Arredi:
Non Arredato
Tipo Cucina:
Abitabile
Riscaldamento:
Autonomo
Fonte Energetica:
Gas
Accesso Disabili:
No
Mappa
Str. Carobi , 8 - Suzzara (MN)
Richiedi informazioni
Invia
Cookie preference