Acquisto Assistito in Asta Giudiziaria

In vendita
Appartamento
Ancona
198.720 €
Descrizione
Acquisto Assistito in Asta Giudiziaria
Per maggiori proposte visita il sito dell’agenzia: www.asteagency.com

Verifica fattibilità d’acquisto in PRE-ASTA

DATA ASTA: 05/03/2026

UBICAZIONE E DESCRIZIONE:
Via Della Loggia 5, 60121 Ancona
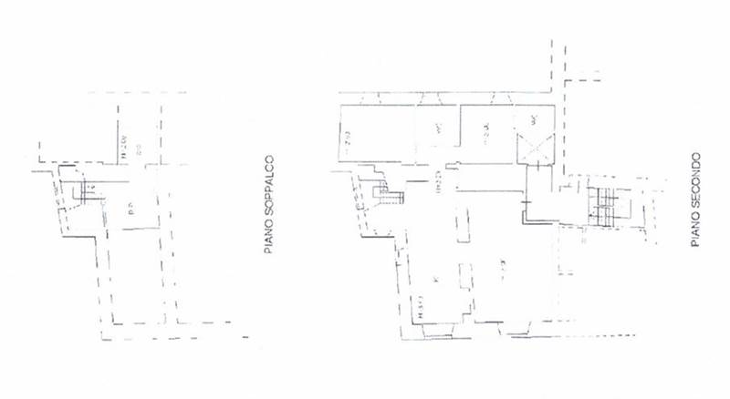
Descrizione sintetica: Appartamento al piano secondo composto da ingresso-soggiorno, tre stanze, angolo cottura, doppi servizi igienici e ripostigli su soppalco. Oltre a cantina di mq 3,00.

Superficie lorda commerciale mq: 163,00

Aste Agency SRL offre il servizio di assistenza per acquistare tramite un mutuo con banche convenzionate. Assiste ed indirizza, dall’aggiudicazione fino alla consegna delle chiavi.

PERCHE’ COMPRARE ALL’ASTA:
- Acquisto sicuro tramite Tribunale;
- Prezzo inferiore rispetto al mercato libero, quindi rata del mutuo più bassa;
- Banche convenzionate con i Tribunali;
- Nessun vincolo di prezzo nella rivendita e nella locazione.

Le Aste Giudiziarie sono soluzioni abitative a prezzi unici, in quanto si compera ad un prezzo inferiore, paragonato alla realtà proibitiva del mercato libero, e l’investimento immobiliare risulta essere sicuramente conveniente.
Per maggiori delucidazioni vi invitiamo a contattarci. Sarà nostra premura fissare un appuntamento in studio e trasferirvi tutte le informazioni necessarie per un’attenta e serena valutazione.

ASTE AGENCY SRL – Contattateci per un appuntamento presso uno dei nostri uffici o in videochiamata.
Caratteristiche principali
Codice:
241.96.1.050326.AN
Città:
Ancona
Categoria:
Appartamento
Locali:
4
Camere:
3
Bagni:
1
Mq:
163
Piano:
2
Anno:
1967
Classe energetica:
G
Stato Immobile:
Buono
Grado:
Medio
Lati Liberi:
2
Arredi:
Non Arredato
Tipo Cucina:
Angolo Cottura
Riscaldamento:
Autonomo
Tipo Riscaldam.:
Caldaia
Tipo Impianto:
Radiatori
Fonte Energetica:
Metano
Infissi:
Legno
Accesso Disabili:
No
Accessori
Ascensore
Mappa
Via Della Loggia , 5 - Ancona (AN)
Planimetrie
Richiedi informazioni
Invia
Cookie preference