Acquisto Assistito - in Asta e Pre-Asta

In vendita
Appartamento
Colli al Metauro
78.638 €
Descrizione
Acquisto Assistito in Asta Giudiziaria
Per maggiori proposte visita il sito dell’agenzia: www.asteagency.com

Verifica fattibilità d’acquisto in PRE-ASTA

DATA ASTA : 25/03/26

UBICAZIONE E DESCRIZIONE: Indirizzo: Frazione Saltara, Via Roma, 21 Colli al Metauro PU

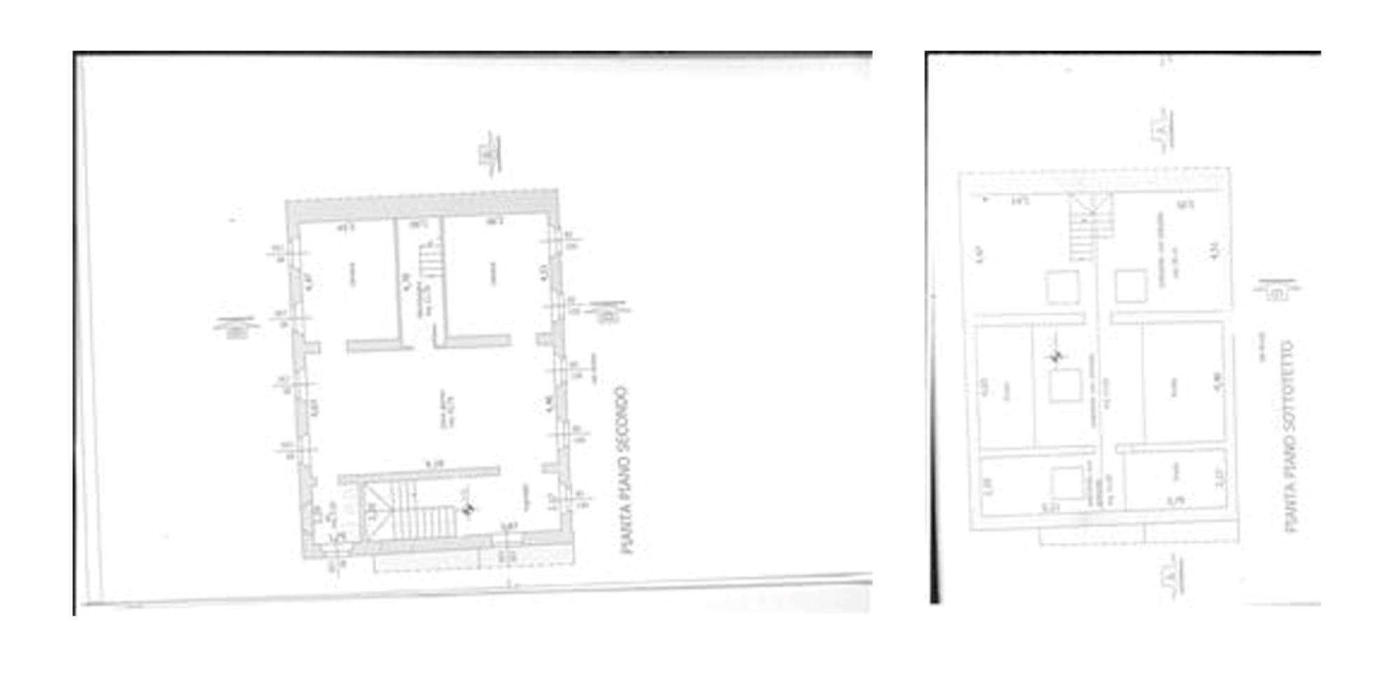
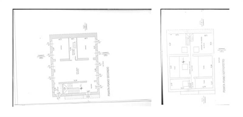
Descrizione sintetica: Appartamento posto al piano secondo e sottotetto di una palazzina bifamiliare oggetto di LAVORI DI COMPLETAMENTO SU FABBRICATO DI CIVILE

ABITAZIONE PER MANUTENZIONE STRAORDINARIA N. 26/2022, presentata il 11/02/2022 con il n. PROT. 3835 di protocollo. PRECEDENTI PRATICHE EDILIZIE: SCIA N. 24/2013 PROT. 10256 E SCIA N. 21/2016 PROT.9177. Si accede al bene da ingresso comune fino al piano primo, dal quale poi mediante scala interna, si raggiunge il piano secondo collegato a sua volta da un'ulteriore scala al piano sottotetto. L'immobile oggetto di stima alla data del sopralluogo risulta essere allo stato grezzo, privo cioè di tutte le finiture e con impianti parzialmente realizzati, ma dotato di nuovi infissi. Il piano secondo, al quale si accede da scala interna esclusiva è costituito da ingresso, tre ambienti destinati in base al progetto a zona giorno e due camere, un bagno ed un disimpegno dal quale mediante ulteriore scala si accede al piano sottotetto, non abitabile, che in parte si affaccia sul piano sottostante. Al piano sottotetto è stata
rilevata la predisposizione per ricavare un ulteriore bagno.


Aste Agency SRL offre il servizio di assistenza per acquistare tramite un mutuo con banche convenzionate. Assiste ed indirizza, dall’aggiudicazione fino alla consegna delle chiavi.

PERCHE’ COMPRARE ALL’ASTA:
- Acquisto sicuro tramite Tribunale;
- Prezzo inferiore rispetto al mercato libero, quindi rata del mutuo più bassa;
- Banche convenzionate con i Tribunali;
- Nessun vincolo di prezzo nella rivendita e nella locazione.

Le Aste Giudiziarie sono soluzioni abitative a prezzi unici, in quanto si compera ad un prezzo inferiore, paragonato alla realtà proibitiva del mercato libero, e l’investimento immobiliare risulta essere sicuramente conveniente.
Per maggiori delucidazioni vi invitiamo a contattarci. Sarà nostra premura fissare un appuntamento in studio e trasferirvi tutte le informazioni necessarie per un’attenta e serena valutazione.

ASTE AGENCY SRL – Contattateci per un appuntamento presso uno dei nostri uffici o in videochiamata.
Caratteristiche principali
Codice:
24.25.2.250326.PU
Città:
Colli al Metauro
Categoria:
Appartamento
Locali:
5
Camere:
3
Bagni:
2
Mq:
175
Piano:
2
Anno:
1970
Anno ristrutturazione:
2022
Classe energetica:
G
Stato Immobile:
Buono
Grado:
Medio
Lati Liberi:
3
Arredi:
Non Arredato
Tipo Cucina:
Abitabile
Riscaldamento:
Autonomo
Fonte Energetica:
Metano
Accesso Disabili:
No
Accessori
Ripostiglio
Mappa
Frazione Saltara Via Roma, 21 - Colli al Metauro (PU)
Planimetrie
Richiedi informazioni
Invia
Cookie preference