Acquisto Assistito in Asta e Pre-Asta

In vendita
Capannone
Valbrenta
150.000 €
Descrizione
Acquisto Assistito in Asta e Pre-Asta
Per maggiori proposte visita il sito dell’agenzia: www.asteagency.com

Verifica fattibilità d’acquisto in PRE-ASTA

DATA ASTA : 23/03/26

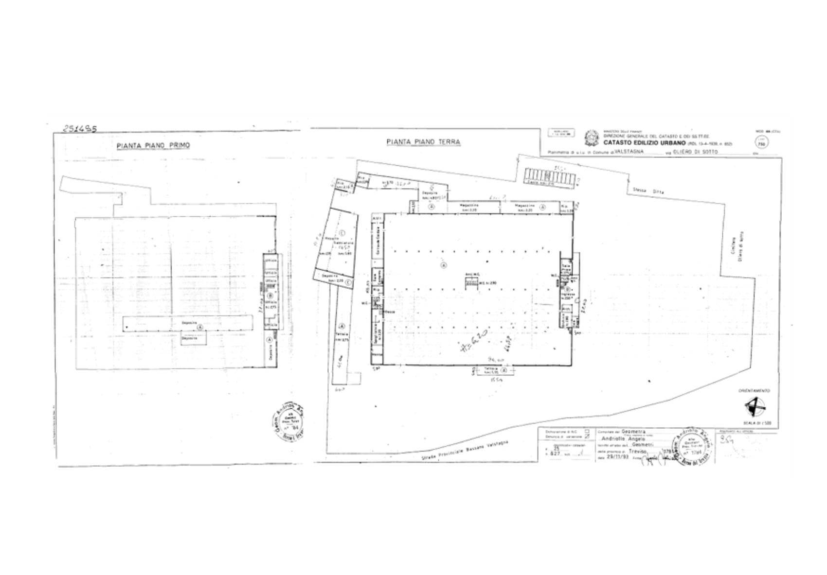
UBICAZIONE E DESCRIZIONE:
Via Oliero di Sotto, 42 Valbrenta VI

Descrizione sintetica: edifici ad uso industriale, capannone con area esterna di pertinenza.
Locali di servizio: mensa, bagni, spogliatoi operai. Trattasi di porzione di immobile, avente una superficie esterna lorda di circa mq. 332, costruito in adiacenza al capannone principale lungo il lato nord. Risulta costituito da vari locali, tutti a servizio del capannone principale, quali locale mensa per gli operai, spogliatoi, bagno ed alcuni locali tecnici. Sul lato est era stata realizzata anche una cabina elettrica a servizio dell’intero complesso produttivo. Porzione di immobile che era destinata ad uffici, costruita in adiacenza al capannone principale lungo il lato sud. Sviluppata su due piani fuori terra, al piano terra lato est è situata la stanza adibita a centrale termica, con impianti e caldaia ormai dismessa e non funzionante. La porzione in questione è costituita da vari locali, tutti adibiti ad uffici a servizio dell’attività principale.


Aste Agency SRL offre il servizio di assistenza per acquistare tramite un mutuo con banche convenzionate. Assiste ed indirizza, dall’aggiudicazione fino alla consegna delle chiavi.

PERCHE’ COMPRARE ALL’ASTA:
- Acquisto sicuro tramite Tribunale;
- Prezzo inferiore rispetto al mercato libero, quindi rata del mutuo più bassa;
- Banche convenzionate con i Tribunali;
- Nessun vincolo di prezzo nella rivendita e nella locazione.

Le Aste Giudiziarie sono soluzioni abitative a prezzi unici, in quanto si compera ad un prezzo inferiore, paragonato alla realtà proibitiva del mercato libero, e l’investimento immobiliare risulta essere sicuramente conveniente.
Per maggiori delucidazioni vi invitiamo a contattarci. Sarà nostra premura fissare un appuntamento in studio e trasferirvi tutte le informazioni necessarie per un’attenta e serena valutazione.

ASTE AGENCY SRL – Contattateci per un appuntamento presso uno dei nostri uffici o in videochiamata.
Caratteristiche principali
Codice:
237.22.230326.VI
Città:
Valbrenta
Categoria:
Capannone
Locali:
9
Bagni:
4
Mq:
4890
Mq Giardino:
332
Piano:
Terra
Anno:
1976
Classe energetica:
G
Stato Immobile:
Buono
Grado:
Medio
Riscaldamento:
No
Accesso Disabili:
No
Mappa
Via Oliero di Sotto, 42 - Valbrenta (VI)
Richiedi informazioni
Invia
Cookie preference