Acquisto Assistito in Asta Giudiziaria

In vendita
Appartamento
Fiorano al Serio
74.775 €
Descrizione
Acquisto Assistito in Asta Giudiziaria
Per maggiori proposte visita il sito dell’agenzia:
www.asteagency.com

Verifica fattibilità d’acquisto in PRE-ASTA
DATA ASTA : 26/03/2026

UBICAZIONE E DESCRIZIONE:
Indirizzo: Largo G. Garibaldi, 2 - Fiorano al Serio (BG)
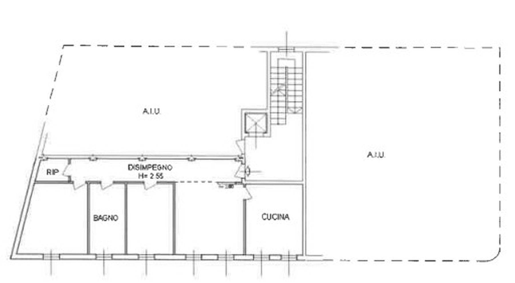
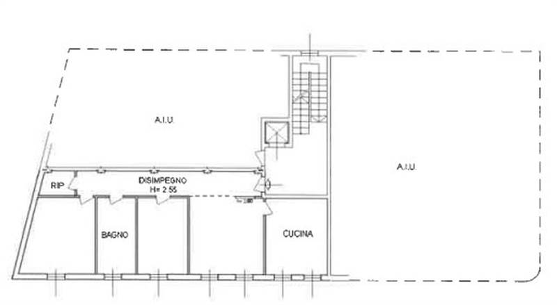
Descrizione sintetica: Appartamento di 106 mq con cantina posto al primo piano risulta composto da tre ampi locali, cucina abitabile, bagno e ripostiglio.

Aste Agency SRL offre il servizio di assistenza per acquistare tramite un mutuo con banche convenzionate. Assiste ed indirizza, dall’aggiudicazione fino alla consegna delle chiavi.

PERCHE’ COMPRARE ALL’ASTA:
- Acquisto sicuro tramite Tribunale;
- Prezzo inferiore rispetto al mercato libero, quindi rata del mutuo più bassa;
- Banche convenzionate con i Tribunali;
- Nessun vincolo di prezzo nella rivendita e nella locazione.

Le Aste Giudiziarie sono soluzioni abitative a prezzi unici, in quanto si compera ad un prezzo inferiore, paragonato alla realtà proibitiva del mercato libero, e l’investimento immobiliare risulta essere sicuramente conveniente.
Per maggiori delucidazioni vi invitiamo a contattarci. Sarà nostra premura fissare un appuntamento in studio e trasferirvi tutte le informazioni necessarie per un’attenta e serena valutazione.

ASTE AGENCY SRL – Contattateci per un appuntamento presso uno dei nostri uffici o in videochiamata.
Caratteristiche principali
Codice:
236.25.260326.BG
Città:
Fiorano al Serio
Categoria:
Appartamento
Locali:
5
Camere:
3
Bagni:
1
Mq:
106
Piano:
1
Anno:
1962
Classe energetica:
G
Stato Immobile:
Buono
Grado:
Medio
Arredi:
Non Arredato
Tipo Cucina:
Abitabile
Riscaldamento:
Autonomo
Tipo Impianto:
Radiatori
Fonte Energetica:
Metano
Acqua Calda:
Autonoma
Accesso Disabili:
No
Accessori
Ascensore
Mappa
Largo G. Garibaldi, 2 - Fiorano al Serio (BG)
Planimetrie
Richiedi informazioni
Invia
Cookie preference