Acquisto Assistito - in Asta e Pre-Asta

In vendita
Appartamento
Thiene
54.060 €
Descrizione
Acquisto Assistito in Asta Giudiziaria
Per maggiori proposte visita il sito dell’agenzia: www.asteagency.com

Verifica fattibilità d’acquisto in PRE-ASTA

DATA ASTA : 13/04/26

UBICAZIONE E DESCRIZIONE:
Via Monte Cengio 96, 36016 Thiene VI

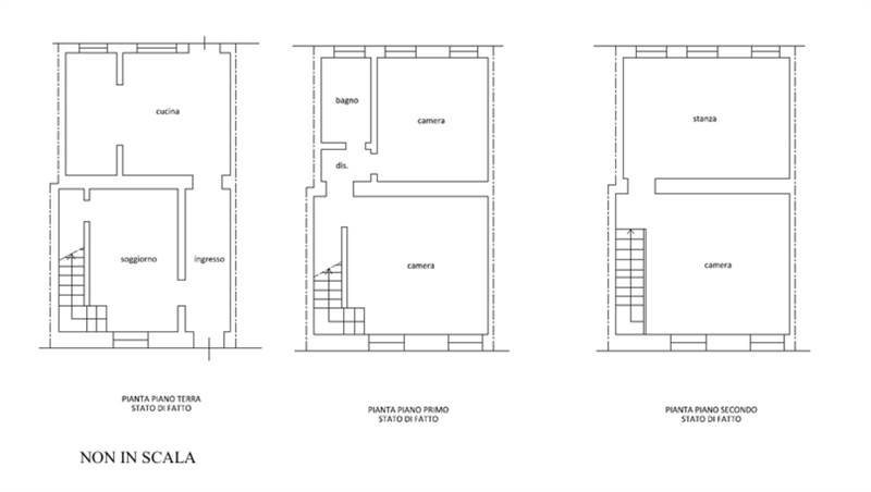
Descrizione sintetica: abitazione, di tre piani fuori terra è così sviluppata: piano terra: corridoio d’ingresso, cucina abitabile con cucinino, soggiorno; piano primo: due camere e bagno finestrato; piano secondo: due stanze di cui una mansardata. Al piano terra, accessibile da porta posta in cucina, si trova ampio scoperto di mq 185,00.


Aste Agency SRL offre il servizio di assistenza per acquistare tramite un mutuo con banche convenzionate. Assiste ed indirizza, dall’aggiudicazione fino alla consegna delle chiavi.

PERCHE’ COMPRARE ALL’ASTA:
- Acquisto sicuro tramite Tribunale;
- Prezzo inferiore rispetto al mercato libero, quindi rata del mutuo più bassa;
- Banche convenzionate con i Tribunali;
- Nessun vincolo di prezzo nella rivendita e nella locazione.

Le Aste Giudiziarie sono soluzioni abitative a prezzi unici, in quanto si compera ad un prezzo inferiore, paragonato alla realtà proibitiva del mercato libero, e l’investimento immobiliare risulta essere sicuramente conveniente.
Per maggiori delucidazioni vi invitiamo a contattarci. Sarà nostra premura fissare un appuntamento in studio e trasferirvi tutte le informazioni necessarie per un’attenta e serena valutazione.

ASTE AGENCY SRL – Contattateci per un appuntamento presso uno dei nostri uffici o in videochiamata.
Caratteristiche principali
Codice:
224.20.130426.VI
Città:
Thiene
Categoria:
Appartamento
Locali:
6
Camere:
3
Bagni:
1
Mq:
213
Mq Giardino:
185
Piano:
Terra
Anno:
1970
Classe energetica:
G
Stato Immobile:
Buono
Grado:
Medio
Tipo Cucina:
Abitabile
Riscaldamento:
Autonomo
Fonte Energetica:
Metano
Accesso Disabili:
No
Accessori
Aria Condizionata
Mappa
Via Monte Cengio , 96 - Thiene (VI)
Planimetrie
Richiedi informazioni
Invia
Cookie preference