Acquisto Assistito - in Asta e Pre-Asta

In vendita
Appartamento
Recoaro Terme
21.750 €
Descrizione
Per maggiori proposte visita il sito dell’agenzia: www.asteagency.com
Verifica fattibilità d’acquisto in PRE-ASTA

DATA ASTA: 10/02/26

UBICAZIONE E DESCRIZIONE:
Indirizzo: Via Vittorio Emanuele 15, 36076 Recoaro Terme Vicenza

Descrizione sintetica:
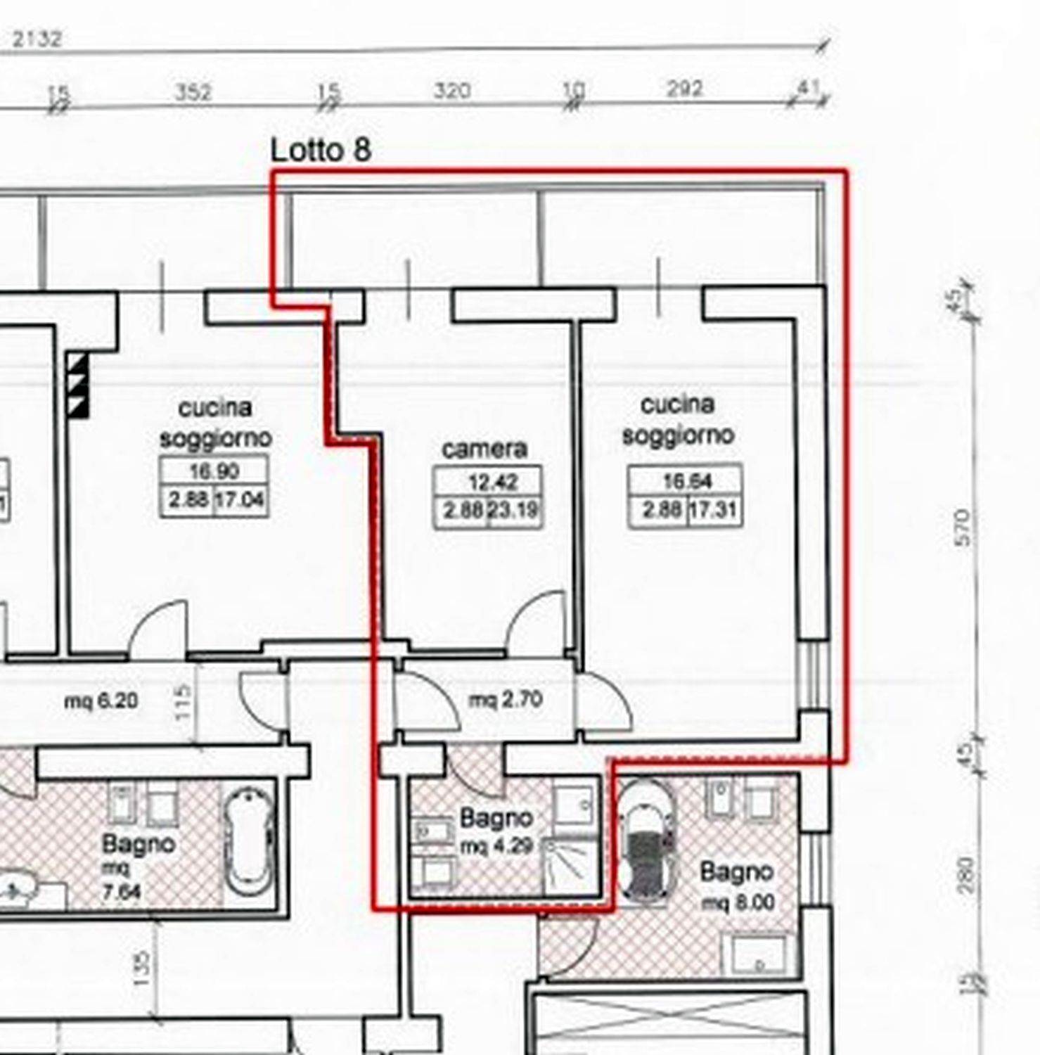
Trattasi di appartamento al grezzo avanzato al piano terzo (superficie commerciale complessiva di mq. 48,46) . Appartamento è composta da ingresso centrale, zona giorno verso Nord-Est, camera da letto verso Ovest e servizio igienico verso Sud; inoltre, vi sono due terrazze, a servizio della zona giorno e della camera da letto.

Aste Agency SRL offre il servizio di assistenza per acquistare tramite un mutuo con banche convenzionate. Assiste ed indirizza, dall’aggiudicazione fino alla consegna delle chiavi.

PERCHE’ COMPRARE ALL’ASTA:
- Acquisto sicuro tramite Tribunale;
- Prezzo inferiore rispetto al mercato libero, quindi rata del mutuo più bassa;
- Banche convenzionate con i Tribunali;
- Nessun vincolo di prezzo nella rivendita e nella locazione.

Le Aste Giudiziarie sono soluzioni abitative a prezzi unici, in quanto si compera ad un prezzo inferiore, paragonato alla realtà proibitiva del mercato libero, e l’investimento immobiliare risulta essere sicuramente conveniente.
Per maggiori delucidazioni vi invitiamo a contattarci. Sarà nostra premura fissare un appuntamento in studio e trasferirvi tutte le informazioni necessarie per un’attenta e serena valutazione.

ASTE AGENCY SRL – Contattateci per un appuntamento presso uno dei nostri uffici o in videochiamata.
Caratteristiche principali
Codice:
216.24.8.100226.VI
Città:
Recoaro Terme
Categoria:
Appartamento
Locali:
2
Bagni:
1
Mq:
48
Piano:
3
Anno:
1965
Anno ristrutturazione:
2010
Classe energetica:
G
Stato Immobile:
In Costruzione
Grado:
Signorile
Arredi:
Non Arredato
Tipo Soggiorno:
Soggiorno
Tipo Cucina:
Angolo Cottura
Riscaldamento:
Autonomo
Fonte Energetica:
Metano
Accesso Disabili:
No
Mappa
Via Vittorio Emanuele , 15 - Recoaro Terme (VI)
Planimetrie
Richiedi informazioni
Invia
Cookie preference