Acquisto Assistito in Asta e Pre-Asta

In vendita
Appartamento
Molfetta
47.038 €
Descrizione
Acquisto Assistito in Asta e Pre-Asta
Per maggiori proposte visita il sito dell’agenzia: www.asteagency.com

Verifica fattibilità d’acquisto in PRE-ASTA

DATA ASTA: 24/03/2026

UBICAZIONE E DESCRIZIONE:
Via Paradiso n.58, Molfetta BA

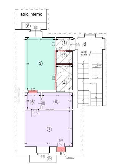
Descrizione sintetica: Appartamento al piano primo composto da ingresso, tinello, cucinino, disimpegno, vano utilizzato come camera da letto singolo, camera da letto matrimoniale e servizio igienico oltre a due balconi di mq 4,16. Costituisce pertinenza dell’appartamento cantina di mq 9,19.

Aste Agency SRL offre il servizio di assistenza per acquistare tramite un mutuo con banche convenzionate. Assiste ed indirizza, dall’aggiudicazione fino alla consegna delle chiavi.

PERCHE’ COMPRARE ALL’ASTA:
- Acquisto sicuro tramite Tribunale;
- Prezzo inferiore rispetto al mercato libero, quindi rata del mutuo più bassa;
- Banche convenzionate con i Tribunali;
- Nessun vincolo di prezzo nella rivendita e nella locazione.

Le Aste Giudiziarie sono soluzioni abitative a prezzi unici, in quanto si compera ad un prezzo inferiore, paragonato alla realtà proibitiva del mercato libero, e l’investimento immobiliare risulta essere sicuramente conveniente.
Per maggiori delucidazioni vi invitiamo a contattarci. Sarà nostra premura fissare un appuntamento in studio e trasferirvi tutte le informazioni necessarie per un’attenta e serena valutazione.

ASTE AGENCY SRL – Contattateci per un appuntamento presso uno dei nostri uffici o in videochiamata.
Caratteristiche principali
Codice:
211.24.240326.BA
Città:
Molfetta
Categoria:
Appartamento
Locali:
3
Camere:
2
Bagni:
1
Mq:
68
Balconi:
2
Piano:
1
Anno:
1967
Classe energetica:
G
Stato Immobile:
Buono
Grado:
Medio
Tipo Cucina:
Cucinotto
Riscaldamento:
Autonomo
Tipo Impianto:
Radiatori
Fonte Energetica:
Metano
Accesso Disabili:
No
Mappa
Via Paradiso, 58 - Molfetta (BA)
Planimetrie
Richiedi informazioni
Invia
Cookie preference