Acquisto Assistito in Asta Giudiziaria

In vendita
Appartamento
Cerea
150.000 €
Descrizione
Acquisto Assistito in Asta Giudiziaria
Per maggiori proposte visita il sito dell’agenzia: www.astegency.com

Verifica fattibilità d’acquisto in Pre-Asta
DATA ASTA : 17/12/25

Disponibilità: Libero al decreto di trasferimento

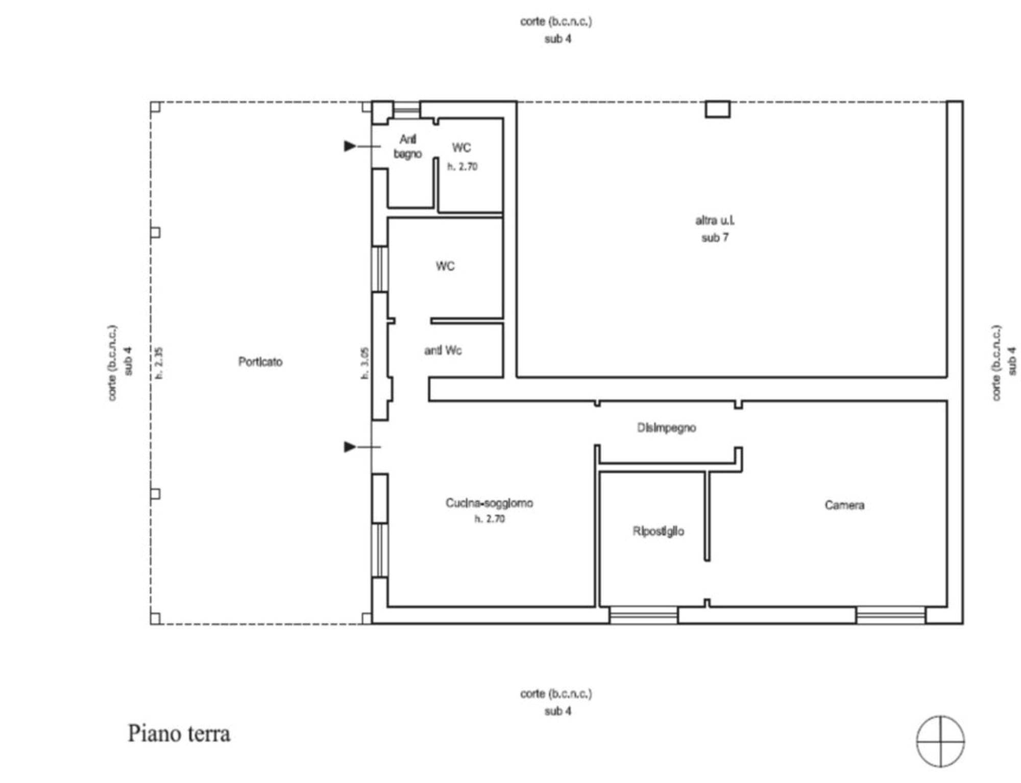
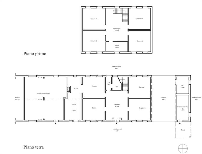
UBICAZIONE E DESCRIZIONE:
Indirizzo: Via Ca' Rotte n. 11, comune di Cerea (VR)

Descrizione sintetica:
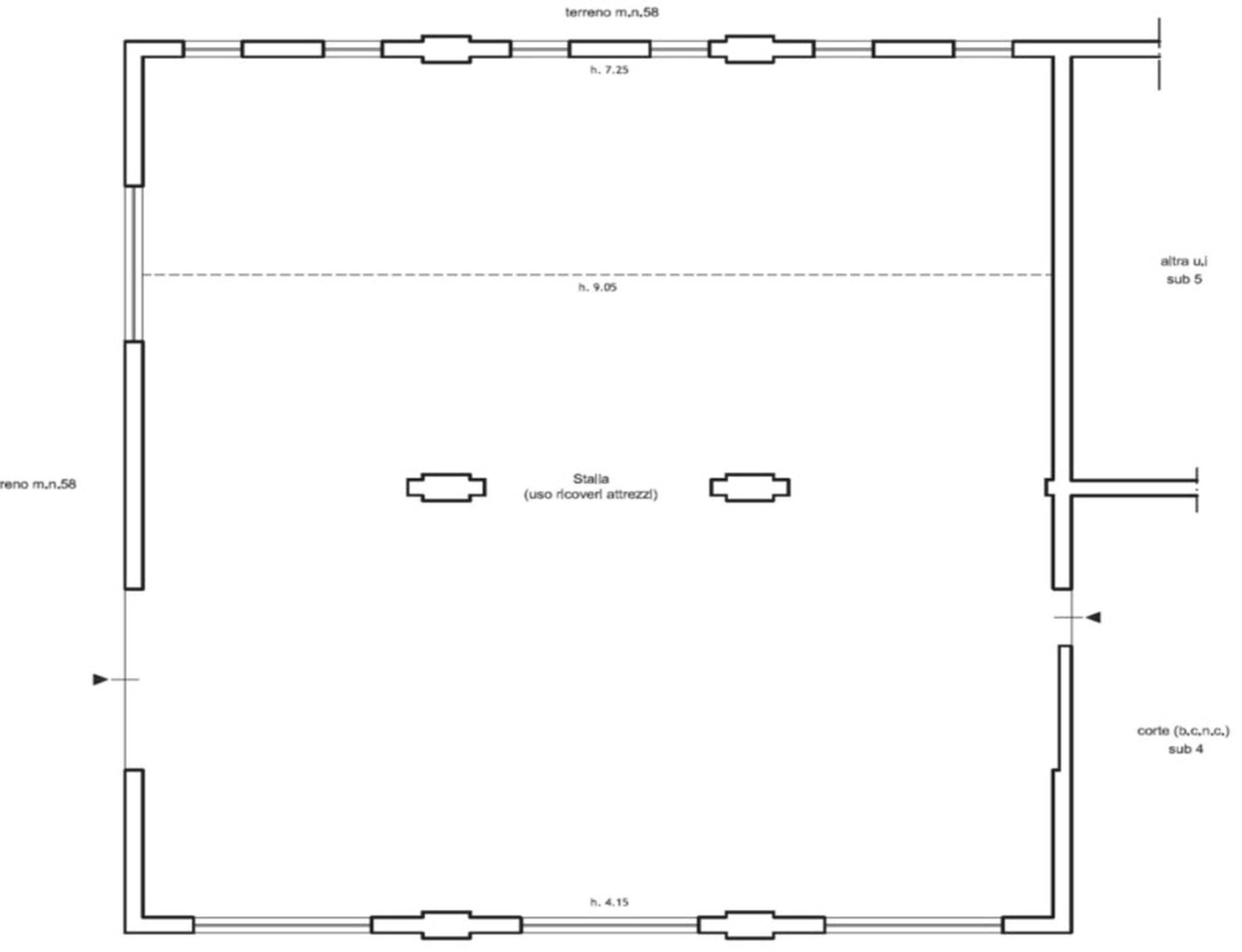
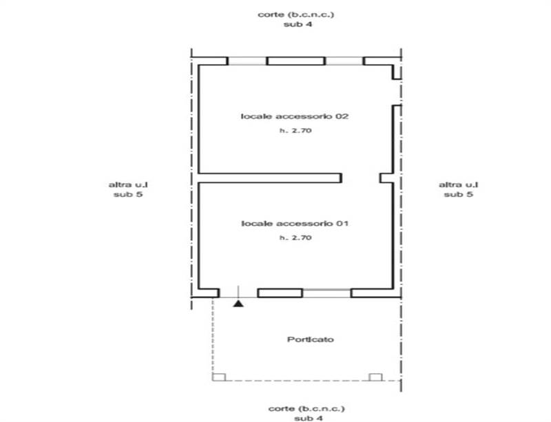
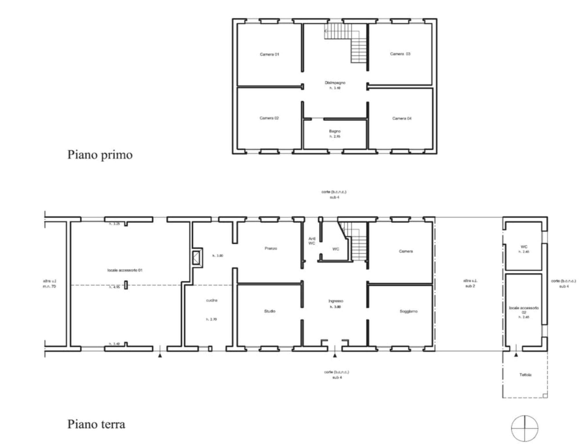
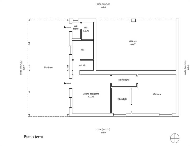
Piena proprietà di intero compendio immobiliare costituito da: un appartamento sui piani terra e primo con locali accessori ricavati nei corpi di fabbrica, un secondo appartamento al piano terra di un fabbricato indipendente, un unità immobiliare sita al piano terra e costituita da due vani accessori e un porticato
antistante l'entrata, un annesso rustico ad un piano fuori terra, un autorimessa porticata sita al piano terra e un terreno di 5.502,00 mq
Superficie lorda commerciale mq: 6.161,67

Home Agency offre il servizio di assistenza per acquistare tramite un mutuo con banche convenzionate. Assiste ed indirizza, dall’aggiudicazione fino alla consegna delle chiavi.

PERCHE’ COMPRARE ALL’ASTA:
- Acquisto sicuro tramite Tribunale;
- Prezzo inferiore rispetto al mercato libero, quindi rata del mutuo più bassa;
- Banche convenzionate con i Tribunali;
- Nessun vincolo di prezzo nella rivendita e nella locazione.

Le Aste Giudiziarie sono soluzioni abitative a prezzi unici, in quanto si compera ad un prezzo inferiore, paragonato alla realtà proibitiva del mercato libero, e l’investimento immobiliare risulta essere sicuramente conveniente.
Per maggiori delucidazioni vi invitiamo a contattarci. Sarà nostra premura fissare un appuntamento in studio e trasferirvi tutte le informazioni necessarie per un’attenta e serena valutazione.

VICENZA (VI) Viale Milano 17 - previo appuntamento
Bologna - Padova - Rovigo - Treviso - Venezia - Vicenza

Caratteristiche principali
Codice:
206.20.171225.VR
Città:
Cerea
Categoria:
Appartamento
Spese condominiali:
1 € / anno
Locali:
13
Camere:
6
Bagni:
5
Mq:
6161,67
Box:
2
Mq Box:
36,92
Piano:
Terra
Anno:
2007
Classe energetica:
G
Stato Immobile:
Buono
Grado:
Signorile
Lati Liberi:
4
Giardino:
Privato
Tipo Soggiorno:
Doppio
Tipo Cucina:
Abitabile
Riscaldamento:
Autonomo
Tipo Riscaldam.:
Caldaia
Tipo Impianto:
Radiatori
Fonte Energetica:
Metano
Acqua Calda:
Autonoma
Raffrescamento:
Split
Infissi:
Legno
Serramenti:
Buono
Pavim. Giorno:
Gres Porcellanato
Pavim. Notte:
Gres Porcellanato
Pavim. Cucina:
Gres Porcellanato
Pavim. Bagno:
Ceramica
Pavimento:
Gres Porcellanato
Accesso Disabili:
Nessuna Barriera
Accessori
Doppio Ingresso
Mappa
Via Ca' Rotte, 11 - Cerea (VR)
Richiedi informazioni
Invia
Cookie preference