Acquisto Assistito in Asta Giudiziaria

In vendita
Appartamento
Urbana
125.400 €
Descrizione
Acquisto Assistito in Asta Giudiziaria
Per maggiori proposte visita il sito dell’agenzia: www.asteagency.com

Verifica fattibilità d’acquisto in PRE-ASTA
DATA ASTA : 27/11/2025

Disponibilità: Libero al Decreto di Trasferimento

UBICAZIONE E DESCRIZIONE:
Indirizzo: Via Adige n. 471-473-475 - Urbana (PD)

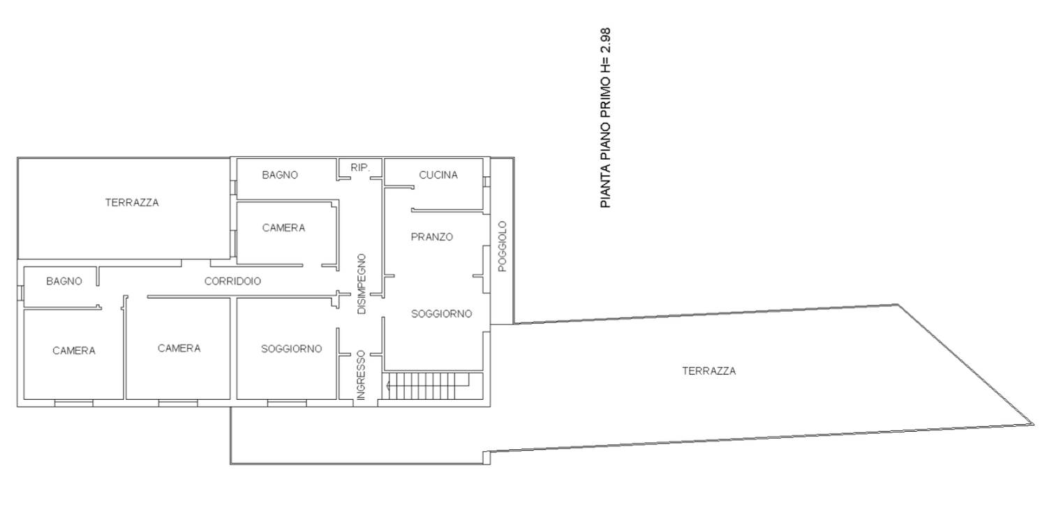
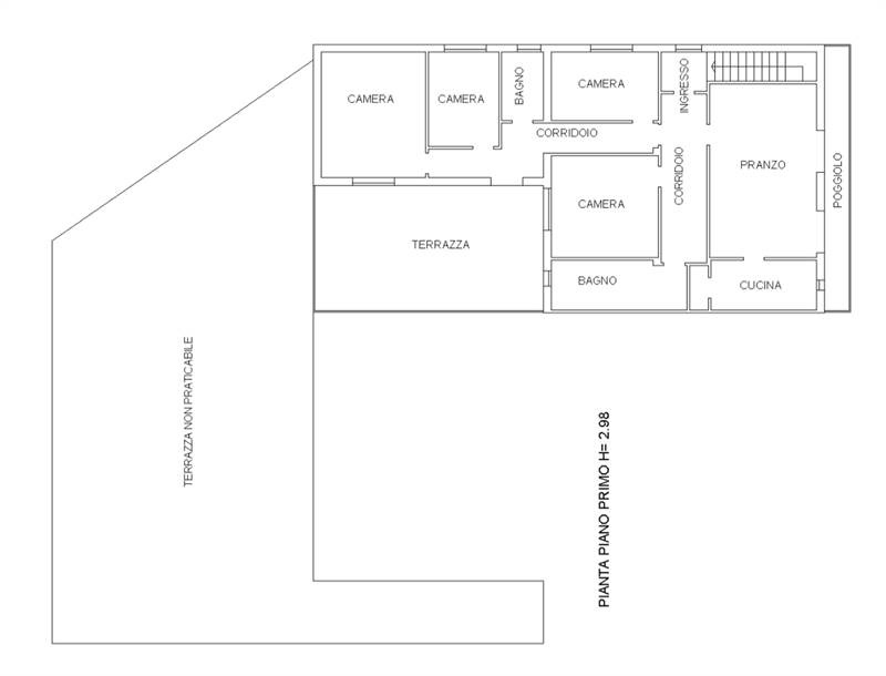
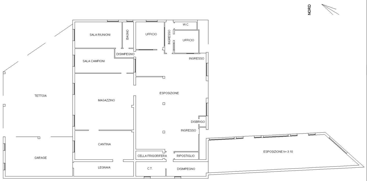
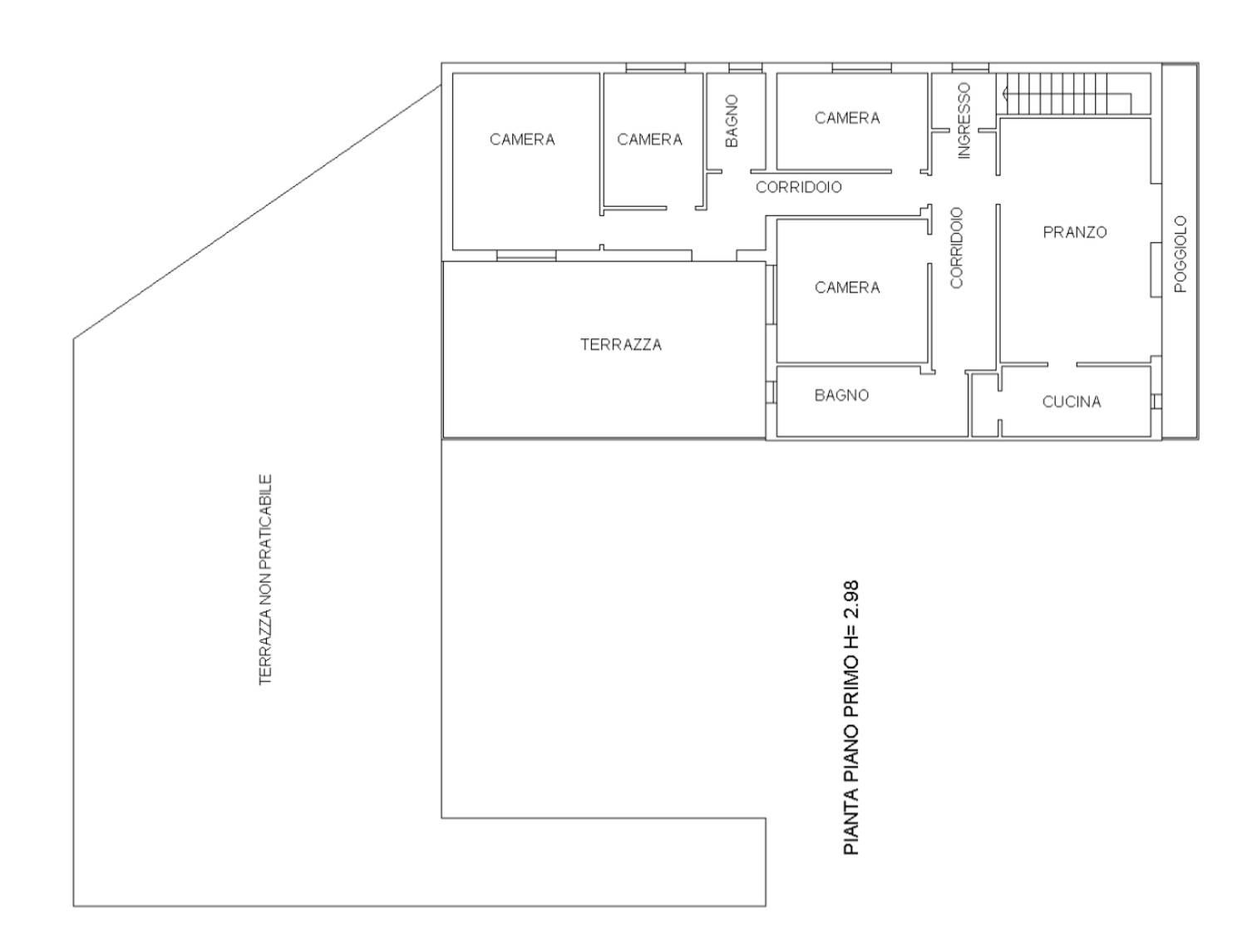
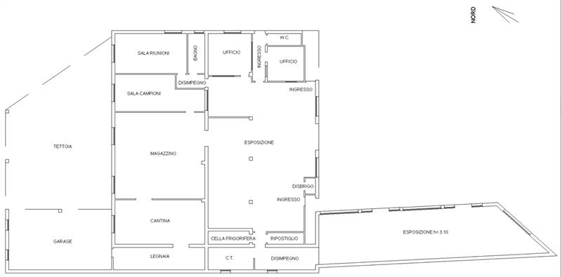
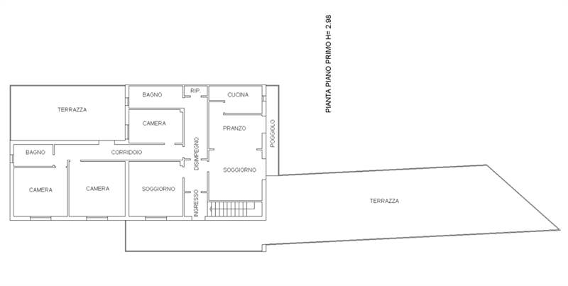
Descrizione sintetica: Piena proprietà di complesso immobiliare composto da due capannoni, uffici, sale mostre, magazzini, laboratorio, locali accessori e due unità abitative. L’unità è completamente distribuita al piano terra e risulta composta da ingresso, esposizione, due locali ad uso ufficio, una sala per riunioni, due bagni, un magazzino, una “sala campioni” ed ulteriori vani accessori ad uso cantina, legnaia, centrale termica, rispostiglio e disimpegno. A sud si trova un’ulteriore “appendice” un tempo impiegata come sala mostra, di forma trapezia e direttamente collegata al corpo di fabbrica principale. In adiacenza sul lato nord trovano posto un garage ed una tettoia. Le due unità abitative poste al primo piano si presentano con una distribuzione in pianta pressochè speculare e ciascuna risulta composta da ingresso, disimpegno, pranzo/soggiorno con annessa cucina, due bagni, quattro vani letto, due poggioli ed altrettante terrazze.

Superficie lorda commerciale mq: 600,00
Superficie lorda abitazioni mq: 386,00

Aste Agency SRL offre il servizio di assistenza per acquistare tramite un mutuo con banche convenzionate. Assiste ed indirizza, dall’aggiudicazione fino alla consegna delle chiavi.

PERCHE’ COMPRARE ALL’ASTA:
- Acquisto sicuro tramite Tribunale;
- Prezzo inferiore rispetto al mercato libero, quindi rata del mutuo più bassa;
- Banche convenzionate con i Tribunali;
- Nessun vincolo di prezzo nella rivendita e nella locazione.

Le Aste Giudiziarie sono soluzioni abitative a prezzi unici, in quanto si compera ad un prezzo inferiore, paragonato alla realtà proibitiva del mercato libero, e l’investimento immobiliare risulta essere sicuramente conveniente.
Per maggiori delucidazioni vi invitiamo a contattarci. Sarà nostra premura fissare un appuntamento in studio e trasferirvi tutte le informazioni necessarie per un’attenta e serena valutazione.

ASTE AGENCY SRL – Contattateci per un appuntamento presso uno dei nostri uffici o in videochiamata.
Caratteristiche principali
Codice:
204.24.271125.PD
Città:
Urbana
Categoria:
Appartamento
Locali:
10
Camere:
8
Bagni:
4
Mq:
386
Balconi:
4
Terrazzi:
4
Piano:
Terra
Anno:
1968
Anno ristrutturazione:
1995
Classe energetica:
G
Stato Immobile:
Buono
Grado:
Medio
Posizione:
Centro
Panorama:
Vista Aperta
Orientamento:
Nord Ovest Sud Est
Lati Liberi:
4
Giardino:
Cortile
Arredi:
Non Arredato
Tipo Soggiorno:
Sala da Pranzo
Tipo Cucina:
Angolo Cottura
Riscaldamento:
Autonomo
Tipo Riscaldam.:
Termocamino
Tipo Impianto:
Aria
Fonte Energetica:
Pellet
Acqua Calda:
Autonoma
Infissi:
Alluminio Doppio Vetro
Serramenti:
Buono
Pavim. Giorno:
Ceramica
Pavim. Notte:
Ceramica
Pavim. Cucina:
Ceramica
Pavim. Bagno:
Ceramica
Pavimento:
Ceramica
Destinazione:
Commerciale
Accesso Disabili:
No
Accesso interno disabili:
Non accessibile
Accessori
Doppi Vetri
Ingresso Indipendente
Stufa a Pellet
Mappa
Via Adige, 471 - Urbana (PD)
Video
Richiedi informazioni
Invia
Cookie preference