Acquisto Assistito - in Asta e Pre-Asta

In vendita
Appartamento
Trevignano
51.896 €
Descrizione
Acquisto Assistito in Asta Giudiziaria
Per maggiori proposte visita il sito dell’agenzia: www.asteagency.com

Verifica fattibilità d’acquisto in PRE-ASTA

DATA ASTA : 26/02/26

UBICAZIONE E DESCRIZIONE:
Via Asiago, 7 Trevignano TV

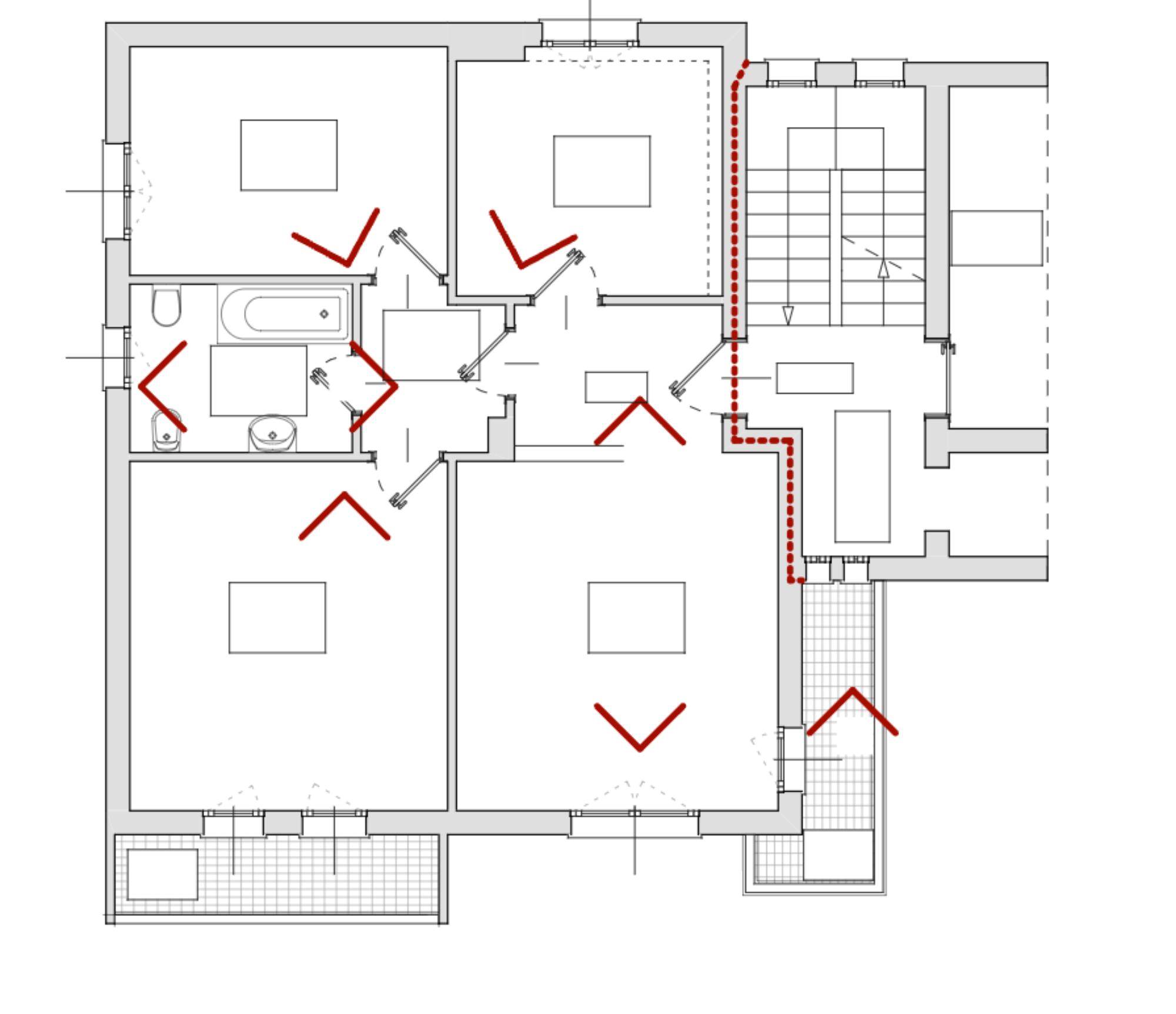
Descrizione sintetica: Appartamento al piano secondo, facente parte di un fabbricato denominato “Condominio Zeta”, dotato di ascensore, con garage al piano seminterrato di mq 18,00. L'appartamento all'interno si compone di soggiorno, dal quale si accede ad una prima terrazza di mq 3,85, cucina, disimpegno, una camera matrimoniale, dalla quale si accede ad una seconda terrazza di mq 4,15, camera singola e bagno.


Aste Agency SRL offre il servizio di assistenza per acquistare tramite un mutuo con banche convenzionate. Assiste ed indirizza, dall’aggiudicazione fino alla consegna delle chiavi.

PERCHE’ COMPRARE ALL’ASTA:
- Acquisto sicuro tramite Tribunale;
- Prezzo inferiore rispetto al mercato libero, quindi rata del mutuo più bassa;
- Banche convenzionate con i Tribunali;
- Nessun vincolo di prezzo nella rivendita e nella locazione.

Le Aste Giudiziarie sono soluzioni abitative a prezzi unici, in quanto si compera ad un prezzo inferiore, paragonato alla realtà proibitiva del mercato libero, e l’investimento immobiliare risulta essere sicuramente conveniente.
Per maggiori delucidazioni vi invitiamo a contattarci. Sarà nostra premura fissare un appuntamento in studio e trasferirvi tutte le informazioni necessarie per un’attenta e serena valutazione.

ASTE AGENCY SRL – Contattateci per un appuntamento presso uno dei nostri uffici o in videochiamata.
Caratteristiche principali
Codice:
203.24.260226.TV
Città:
Trevignano
Categoria:
Appartamento
Locali:
4
Camere:
2
Bagni:
1
Mq:
96
Box:
1
Terrazzi:
2
Piano:
2
Anno:
1997
Classe energetica:
G
Stato Immobile:
Buono
Grado:
Medio
Tipo Cucina:
Abitabile
Riscaldamento:
Autonomo
Fonte Energetica:
Metano
Accesso Disabili:
No
Accessori
Ascensore
Mappa
Via asiago, 7 - Trevignano (TV)
Planimetrie
Richiedi informazioni
Invia
Cookie preference