Acquisto Assistito - in Asta e Pre-Asta

In vendita
Appartamento
Pincara (Gambaro)
26.880 €
Descrizione
Per maggiori proposte visita il sito dell’agenzia: www.asteagency.com

Verifica fattibilità d’acquisto in PRE-ASTA

DATA ASTA : 05/02/26

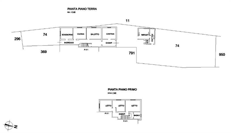
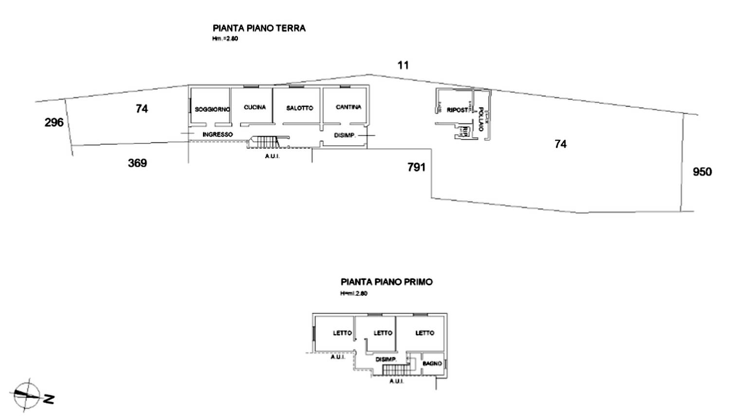
UBICAZIONE E DESCRIZIONE:
Indirizzo: Via Guglielmo Marconi n. 1472/1 - loc. Gambaro; Pincara (RO)

Descrizione sintetica: Piena proprietà di abitazione accostata con area esclusiva di pertinenza e sedime. L'abitazione comprende, al piano terra ingresso, tre stanze, una cantina-wc-lavanderia ed un disimpegno. Al primo piano si trovano tre stanze da letto, un corridoio e un vano bagno. La stanza da letto a sud è dotata di terrazzino.

Superficie lorda commerciale mq: 171,47

Home Agency offre il servizio di assistenza per acquistare tramite un mutuo con banche convenzionate. Assiste ed indirizza, dall’aggiudicazione fino alla consegna delle chiavi.

PERCHE’ COMPRARE ALL’ASTA:
- Acquisto sicuro tramite Tribunale;
- Prezzo inferiore rispetto al mercato libero, quindi rata del mutuo più bassa;
- Banche convenzionate con i Tribunali;
- Nessun vincolo di prezzo nella rivendita e nella locazione.

Le Aste Giudiziarie sono soluzioni abitative a prezzi unici, in quanto si compera ad un prezzo inferiore, paragonato alla realtà proibitiva del mercato libero, e l’investimento immobiliare risulta essere sicuramente conveniente.
Per maggiori delucidazioni vi invitiamo a contattarci. Sarà nostra premura fissare un appuntamento in studio e trasferirvi tutte le informazioni necessarie per un’attenta e serena valutazione.

PADOVA (PD) Via Giovanni Berchet, 10 - previo appuntamento
Bologna - Padova - Rovigo - Treviso - Venezia - Vicenza
Caratteristiche principali
Codice:
201.25.050226.RO
Città:
Pincara (Gambaro)
Categoria:
Appartamento
Locali:
6
Camere:
3
Bagni:
2
Mq:
171,47
Terrazzi:
1
mq Terrazzo:
3,28
Piano:
Terra
Anno:
1950
Anno ristrutturazione:
1973
Classe energetica:
G
Stato Immobile:
Mediocre
Grado:
Economico
Posizione:
Periferia
Panorama:
Vista Giardino
Orientamento:
Nord Ovest Sud
Lati Liberi:
3
Giardino:
Privato
Arredi:
Non Arredato
Tipo Soggiorno:
Soggiorno
Tipo Cucina:
Abitabile
Riscaldamento:
Autonomo
Tipo Riscaldam.:
Caldaia
Tipo Impianto:
Radiatori
Fonte Energetica:
Metano
Acqua Calda:
Autonoma
Raffrescamento:
No
Infissi:
Legno
Serramenti:
Buono
Persiana:
Oscurante Metallo
Pavim. Giorno:
Gres Porcellanato
Pavim. Notte:
Ceramica
Pavim. Cucina:
Graniglia
Pavim. Bagno:
Ceramica
Accesso Disabili:
No
Accesso interno disabili:
Non accessibile
Accessori
Canna Fumaria
Doppi Vetri
Ingresso Indipendente
Zanzariere
Mappa
Via Guglielmo Marconi, 1472 - Pincara (RO)
Planimetrie
Richiedi informazioni
Invia
Cookie preference