Acquisto Assistito in Asta Giudiziaria

In vendita
Appartamento
Silandro
192.000 €
Descrizione
Acquisto Assistito in Asta Giudiziaria
Per maggiori proposte visita il sito dell’agenzia: www.asteagency.com

Verifica fattibilità d’acquisto in PRE-ASTA
DATA ASTA : 28/11/2025

Disponibilità: Libero al decreto di trasferimento

UBICAZIONE E DESCRIZIONE:
Indirizzo: Via Luis Zuegg 68/D, Merano (BZ)

Descrizione sintetica:
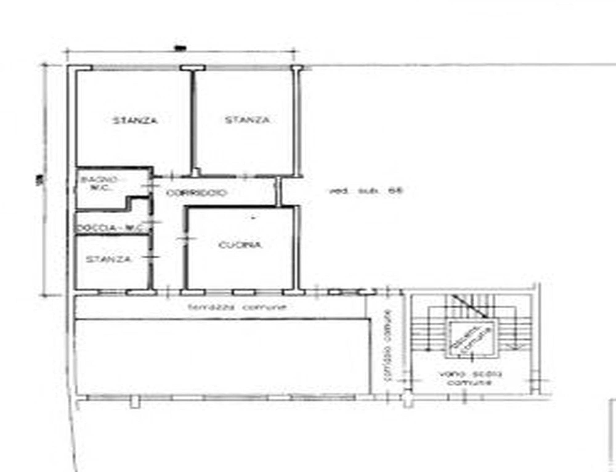
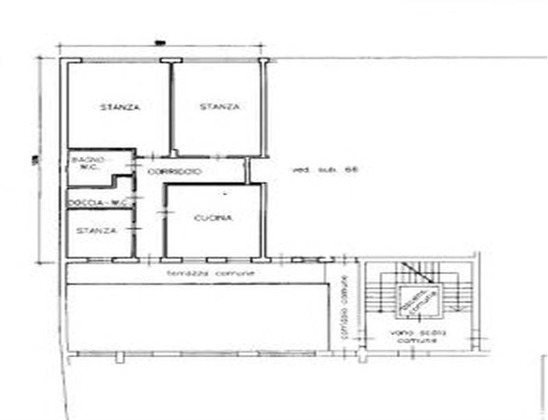
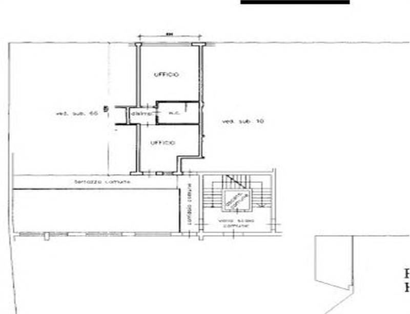
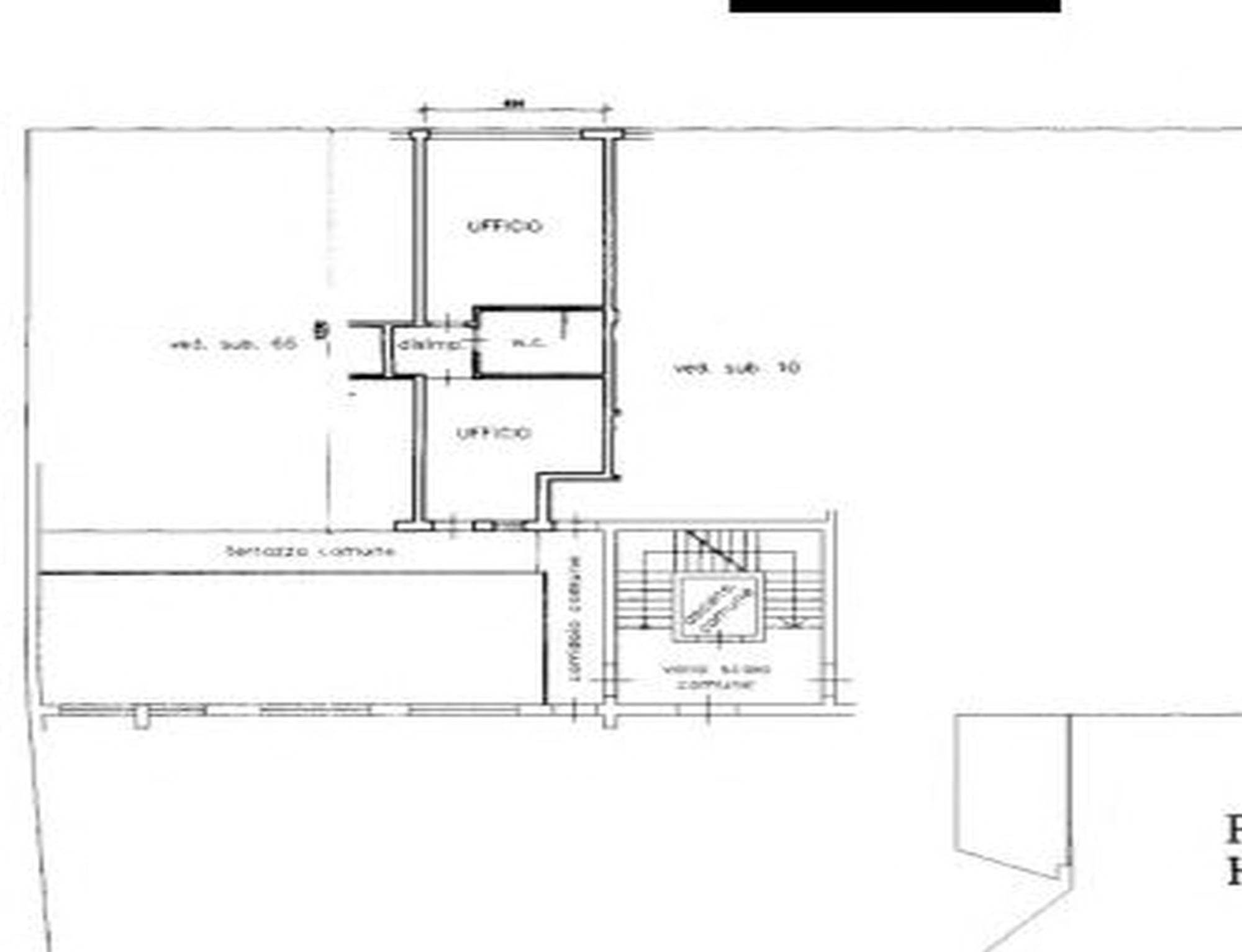
L'unità immobiliare consiste in un appartamento al secondo piano, un ufficio e un posto auto coperto in un complesso condominiale. L'unità immobiliare da valutare si trova a 39012 Merano (BZ), via Luis Zuegg 68/D.
L’intero edificio sviluppa 4 piani, 3 piani fuori terra e 1 piano sottoterra.
L'appartamento oggetto di valutazione è cosí costituita: 2° piano: 3 stanze, doccia-W.C., bagno-W.C., cucina, corridoio.
L’ufficio oggetto di valutazione è cosí costituito: 2. piano: 2 uffici, disimpegno, WC

Superficie lorda commerciale abitazione mq: 123,00
Superficie lorda commerciale uffici mq: 58,75


Home Agency offre il servizio di assistenza per acquistare tramite un mutuo con banche convenzionate. Assiste ed indirizza, dall’aggiudicazione fino alla consegna delle chiavi.

PERCHE’ COMPRARE ALL’ASTA:
- Acquisto sicuro tramite Tribunale;
- Prezzo inferiore rispetto al mercato libero, quindi rata del mutuo più bassa;
- Banche convenzionate con i Tribunali;
- Nessun vincolo di prezzo nella rivendita e nella locazione.

Le Aste Giudiziarie sono soluzioni abitative a prezzi unici, in quanto si compera ad un prezzo inferiore, paragonato alla realtà proibitiva del mercato libero, e l’investimento immobiliare risulta essere sicuramente conveniente.
Per maggiori delucidazioni vi invitiamo a contattarci. Sarà nostra premura fissare un appuntamento in studio e trasferirvi tutte le informazioni necessarie per un’attenta e serena valutazione.

PADOVA (PD) Via Giovanni Berchet, 10 - previo appuntamento
Bologna - Padova - Rovigo - Treviso - Venezia - Vicenza
Caratteristiche principali
Codice:
2.24.1.281125.BZ
Città:
Silandro
Categoria:
Appartamento
Locali:
6
Camere:
3
Bagni:
3
Mq:
181,75
Terrazzi:
1
Piano:
2
Anno:
2002
Anno ristrutturazione:
2004
Classe energetica:
G
Stato Immobile:
Buono
Grado:
Signorile
Posizione:
Collina
Panorama:
Vista Aperta
Orientamento:
Nord
Lati Liberi:
2
Giardino:
Comune
Arredi:
Non Arredato
Tipo Soggiorno:
Soggiorno
Tipo Cucina:
Angolo Cottura
Riscaldamento:
Autonomo
Tipo Riscaldam.:
Caldaia
Tipo Impianto:
Radiatori
Fonte Energetica:
Gas
Acqua Calda:
Autonoma
Raffrescamento:
No
Infissi:
Legno
Serramenti:
Buono
Persiana:
Tapparella PVC
Accesso Disabili:
Nessuna Barriera
Accesso interno disabili:
Pieno accesso
Accessori
Ascensore
Mappa
Via Andreas Hofer , 8 - Silandro (BZ)
Richiedi informazioni
Invia
Cookie preference