Acquisto Assistito - in Asta e Pre-Asta

In vendita
Casa singola
Pianella
168.167 €
Descrizione
Acquisto Assistito - in Asta e Pre-Asta
Per maggiori proposte visita il sito dell’agenzia: www.asteagency.com

Verifica fattibilità d’acquisto in PRE-ASTA

DATA ASTA: 16/12/2025

Disponibilità: Libero al Decreto di Trasferimento
UBICAZIONE E DESCRIZIONE:
Contrada la Grotta, 4, 65019 Pianella PE
Descrizione sintetica: Piena e perfetta proprietà del compendio immobiliare, costituito da un fabbricato ad uso abitazione, composto di cinque appartamenti, con annesso terreno pertinenziale di mq 15.773,00.
Appartamento al piano seminterrato composto da soggiorno con angolo cottura, due camere, due bagni, ripostiglio e corte
Appartamento al piano seminterrato composto da soggiorno con angolo cottura, tre camere, due bagni, due ripostigli e corte
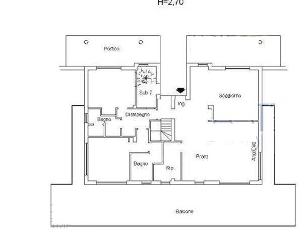
Appartamento al piano terra composto da soggiorno con angolo cottura, quattro camere, due bagni, due ripostigli oltre a balcone.
Appartamento al piano primo composto da soggiorno con angolo cottura, due camere, due bagni, ripostiglio e due balconi.
Appartamento al piano primo composto da soggiorno con angolo cottura, due camere, due bagni, ripostiglio e due balconi.



Aste Agency SRL offre il servizio di assistenza per acquistare tramite un mutuo con banche convenzionate. Assiste ed indirizza, dall’aggiudicazione fino alla consegna delle chi avi.

PERCHE’ COMPRARE ALL’ASTA:
- Acquisto sicuro tramite Tribunale;
- Prezzo inferiore rispetto al mercato libero, quindi rata del mutuo più bassa;
- Banche convenzionate con i Tribunali;
- Nessun vincolo di prezzo nella rivendita e nella locazione.

Le Aste Giudiziarie sono soluzioni abitative a prezzi unici, in quanto si compera ad un prezzo inferiore, paragonato alla realtà proibitiva del mercato libero, e l’investimento immobiliare risulta essere sicuramente conveniente.
Per maggiori delucidazioni vi invitiamo a contattarci. Sarà nostra premura fissare un appuntamento in studio e trasferirvi tutte le informazioni necessarie per un’attenta e serena valutazione.

ASTE AGENCY SRL – Contattateci per un appuntamento presso uno dei nostri uffici o in videochiamata.
Caratteristiche principali
Codice:
2.22.1.161225.PE
Città:
Pianella
Categoria:
Casa singola
Locali:
23
Camere:
13
Bagni:
10
Mq:
629,59
Balconi:
3
Piano:
Terra
Anno:
2007
Classe energetica:
G
Stato Immobile:
Buono
Grado:
Medio
Arredi:
Non Arredato
Tipo Cucina:
Angolo Cottura
Riscaldamento:
Autonomo
Fonte Energetica:
Metano
Accesso Disabili:
No
Mappa
Contrada la Grotta 65019, 4 - Pianella (PE)
Richiedi informazioni
Invia
Cookie preference