Acquisto Assistito - in Asta e Pre-Asta

In vendita
Appartamento
Villa Cortese
87.000 €
Descrizione
Acquisto Assistito in Asta Giudiziaria
Per maggiori proposte visita il sito dell’agenzia: www.asteagency.com

Verifica fattibilità d’acquisto in PRE-ASTA


DATA ASTA : 12/03/26


Disponibilità: Libero al decreto di trasferimento

UBICAZIONE E DESCRIZIONE:
Indirizzo: Via Emilia, 37 Villa Cortese MI

Descrizione sintetica:
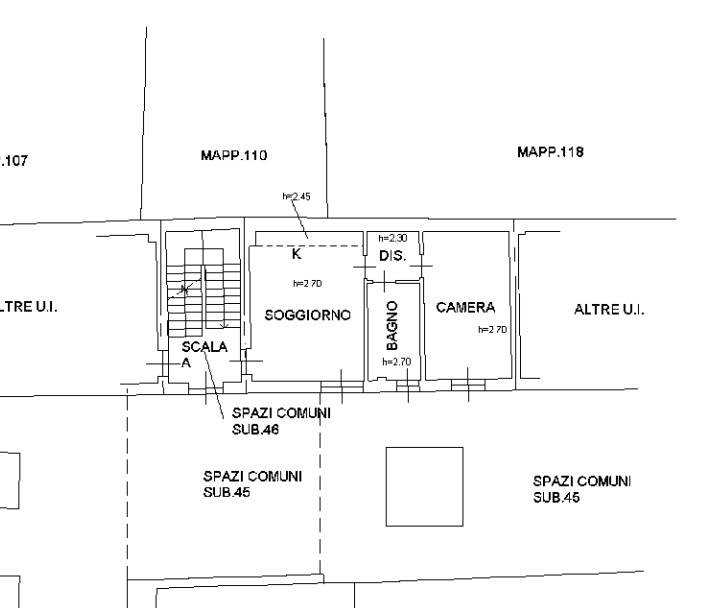
Appartamento posto al piano terra, composto da soggiorno con angolo cottura, camera, bagno e garage esclusivo di mq 39,00.


Aste Agency SRL offre il servizio di assistenza per acquistare tramite un mutuo con banche convenzionate. Assiste ed indirizza, dall’aggiudicazione fino alla consegna delle chiavi.

PERCHE’ COMPRARE ALL’ASTA:
- Acquisto sicuro tramite Tribunale;
- Prezzo inferiore rispetto al mercato libero, quindi rata del mutuo più bassa;
- Banche convenzionate con i Tribunali;
- Nessun vincolo di prezzo nella rivendita e nella locazione.

Le Aste Giudiziarie sono soluzioni abitative a prezzi unici, in quanto si compera ad un prezzo inferiore, paragonato alla realtà proibitiva del mercato libero, e l’investimento immobiliare risulta essere sicuramente conveniente.
Per maggiori delucidazioni vi invitiamo a contattarci. Sarà nostra premura fissare un appuntamento in studio e trasferirvi tutte le informazioni necessarie per un’attenta e serena valutazione.

ASTE AGENCY SRL – Contattateci per un appuntamento presso uno dei nostri uffici o in videochiamata.
Caratteristiche principali
Codice:
199.24.120326.MI
Città:
Villa Cortese
Categoria:
Appartamento
Locali:
3
Camere:
1
Bagni:
1
Mq:
102
Box:
1
Piano:
Terra
Anno:
2010
Classe energetica:
G
Stato Immobile:
Buono
Grado:
Medio
Arredi:
Non Arredato
Tipo Cucina:
Angolo Cottura
Riscaldamento:
Autonomo
Fonte Energetica:
Metano
Accesso Disabili:
No
Mappa
Via emilia , 37 - Villa Cortese (MI)
Virtual tour
Planimetrie
Richiedi informazioni
Invia
Cookie preference