Acquisto Assistito - in Asta e Pre-Asta

In vendita
Rustico/Casale
Sermide
33.510 €
Descrizione
Per maggiori proposte visita il sito dell’agenzia: www.asteagency.com

Verifica fattibilità d’acquisto in PRE-ASTA

DATA ASTA: 04/12/2025

Disponibilità: Libero
UBICAZIONE E DESCRIZIONE:
Via L. Galvani, 54 - 46028 Sermide e Felonica MN
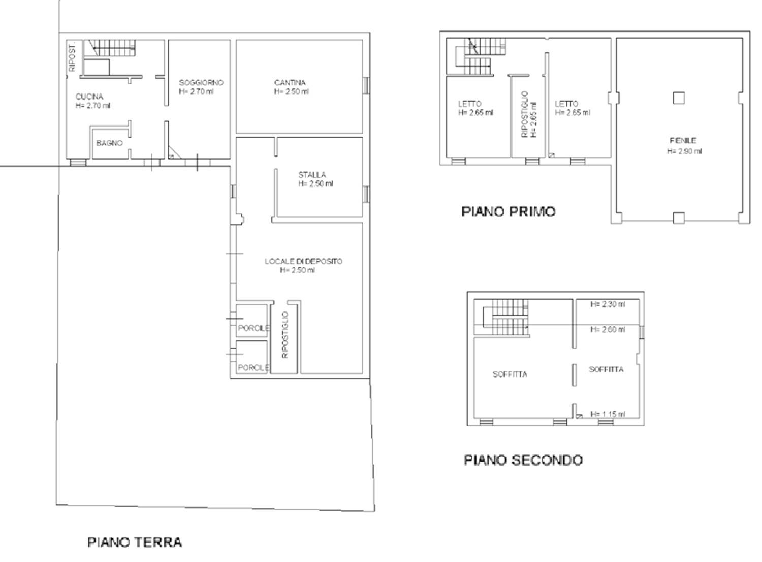
Descrizione sintetica: Trattasi di abitazione con rustico in aderenza cosi composti:
ABITAZIONE
• piano terra di mq 71,29 composto da ingresso, soggiorno, cucina, bagno, ripostiglio e vano scala;
• piano primo di mq 71,29 composta da vano scale, due camere da letto e ripostiglio;
• piano secondo di mq 72,40 composto da vano scale e due locali soffitta.
RUSTICO
• piano terra di mq 145,74 composto da locale cantina, locale deposito, locale stalla, ripostiglio e due locali porcile;
• piano primo di mq 80,46 composto da locale fienile;
• annessa area cortiliva.

Aste Agency SRL offre il servizio di assistenza per acquistare tramite un mutuo con banche convenzionate. Assiste ed indirizza, dall’aggiudicazione fino alla consegna delle chiavi.

PERCHE’ COMPRARE ALL’ASTA:
- Acquisto sicuro tramite Tribunale;
- Prezzo inferiore rispetto al mercato libero, quindi rata del mutuo più bassa;
- Banche convenzionate con i Tribunali;
- Nessun vincolo di prezzo nella rivendita e nella locazione.

Le Aste Giudiziarie sono soluzioni abitative a prezzi unici, in quanto si compera ad un prezzo inferiore, paragonato alla realtà proibitiva del mercato libero, e l’investimento immobiliare risulta essere sicuramente conveniente.
Per maggiori delucidazioni vi invitiamo a contattarci. Sarà nostra premura fissare un appuntamento in studio e trasferirvi tutte le informazioni necessarie per un’attenta e serena valutazione.

ASTE AGENCY SRL – Contattateci per un appuntamento presso uno dei nostri uffici o in videochiamata.
Caratteristiche principali
Codice:
192.24.041225.MN
Città:
Sermide
Categoria:
Rustico/Casale
Locali:
4
Camere:
2
Bagni:
1
Mq:
313,5
Piano:
Terra
Anno:
1967
Classe energetica:
G
Stato Immobile:
Abitabile
Grado:
Signorile
Arredi:
Non Arredato
Tipo Cucina:
Abitabile
Riscaldamento:
No
Accesso Disabili:
No
Mappa
Via L. Galvani, 54 - Sermide (MN)
Richiedi informazioni
Invia
Cookie preference