Acquisto Assistito in Asta e Pre-Asta

In vendita
Capannone
Vigodarzere
451.000 €
Descrizione
Acquisto Assistito in Asta e Pre-Asta
Per maggiori proposte visita il sito dell’agenzia: www.asteagency.com

Verifica fattibilità d’acquisto in PRE-ASTA

DATA ASTA : 04/03/26

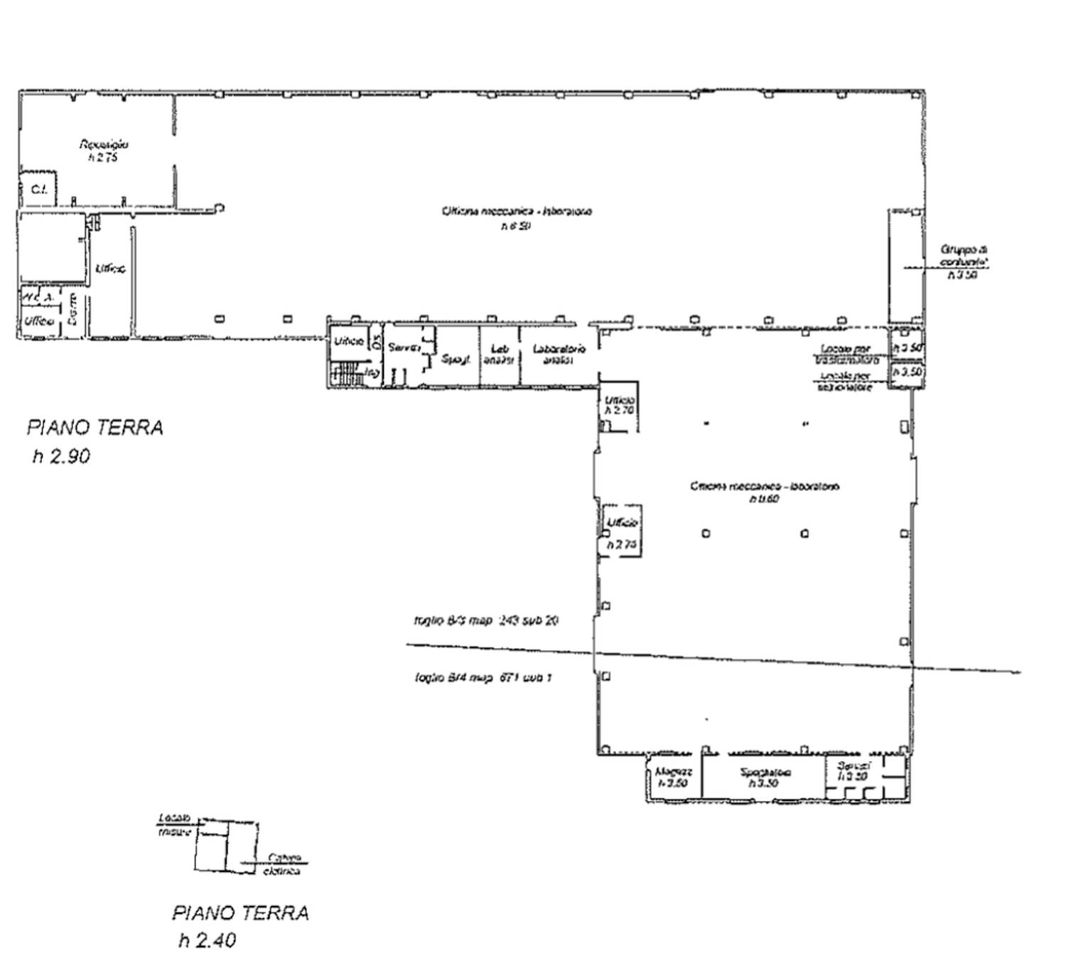
UBICAZIONE E DESCRIZIONE:
Indirizzo: Via monte grappa, 3 - Vigodarzere (PD)

Descrizione sintetica: Piena proprietà di Capannone ad uso artigianale con abitazione del custode e terreni limitrofi. Consistenza abitazione: piano terra ingresso e vano scala. Primo piano: soggiorno/pranzo con angolo cottura, disimpegno, due camere matrimoniali, guardaroba e bagni finestrati.

Aste Agency SRL offre il servizio di assistenza per acquistare tramite un mutuo con banche convenzionate. Assiste ed indirizza, dall’aggiudicazione fino alla consegna delle chiavi.

PERCHE’ COMPRARE ALL’ASTA:
- Acquisto sicuro tramite Tribunale;
- Prezzo inferiore rispetto al mercato libero, quindi rata del mutuo più bassa;
- Banche convenzionate con i Tribunali;
- Nessun vincolo di prezzo nella rivendita e nella locazione.

Le Aste Giudiziarie sono soluzioni abitative a prezzi unici, in quanto si compera ad un prezzo inferiore, paragonato alla realtà proibitiva del mercato libero, e l’investimento immobiliare risulta essere sicuramente conveniente.
Per maggiori delucidazioni vi invitiamo a contattarci. Sarà nostra premura fissare un appuntamento in studio e trasferirvi tutte le informazioni necessarie per un’attenta e serena valutazione.

ASTE AGENCY SRL – Contattateci per un appuntamento presso uno dei nostri uffici o in videochiamata.
Caratteristiche principali
Codice:
189.17.040326.PD
Città:
Vigodarzere
Categoria:
Capannone
Locali:
10
Camere:
2
Bagni:
3
Mq:
110
Box:
1
Mq Box:
24
Piano:
Terra
Anno:
1967
Classe energetica:
G
Stato Immobile:
Buono
Grado:
Medio
Posizione:
Periferia
Panorama:
Vista Aperta
Orientamento:
Nord Ovest Sud Est
Lati Liberi:
4
Giardino:
Cortile
Arredi:
Non Arredato
Tipo Soggiorno:
Sala da Pranzo
Tipo Cucina:
Angolo Cottura
Riscaldamento:
Autonomo
Tipo Riscaldam.:
Ventilconvettore
Tipo Impianto:
Aria
Fonte Energetica:
Metano
Acqua Calda:
Autonoma
Infissi:
Legno
Serramenti:
Buono
Persiana:
Tapparella PVC
Pavim. Giorno:
Gres Porcellanato
Pavim. Notte:
Gres Porcellanato
Pavim. Cucina:
Gres Porcellanato
Pavim. Bagno:
Ceramica
Pavimento:
Cemento
Accesso Disabili:
No
Accesso interno disabili:
Parziale
Mappa
Via monte grappa, 3 - Vigodarzere (PD)
Richiedi informazioni
Invia
Cookie preference