Acquisto Assistito in Asta Giudiziaria

In vendita
Villa
Curtatone
1.275.759 €
Descrizione
Acquisto Assistito in Asta Giudiziaria
Per maggiori proposte visita il sito dell’agenzia:
www.asteagency.com

Verifica fattibilità d’acquisto in PRE-ASTA
DATA ASTA : 25/02/2026

Disponibilità: Libero al Decreto di Trasferimento

UBICAZIONE E DESCRIZIONE:
Indirizzo: Via Punte n. 92-94 – Curtatone (MN)
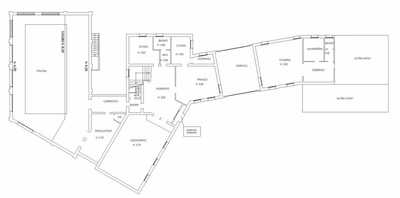
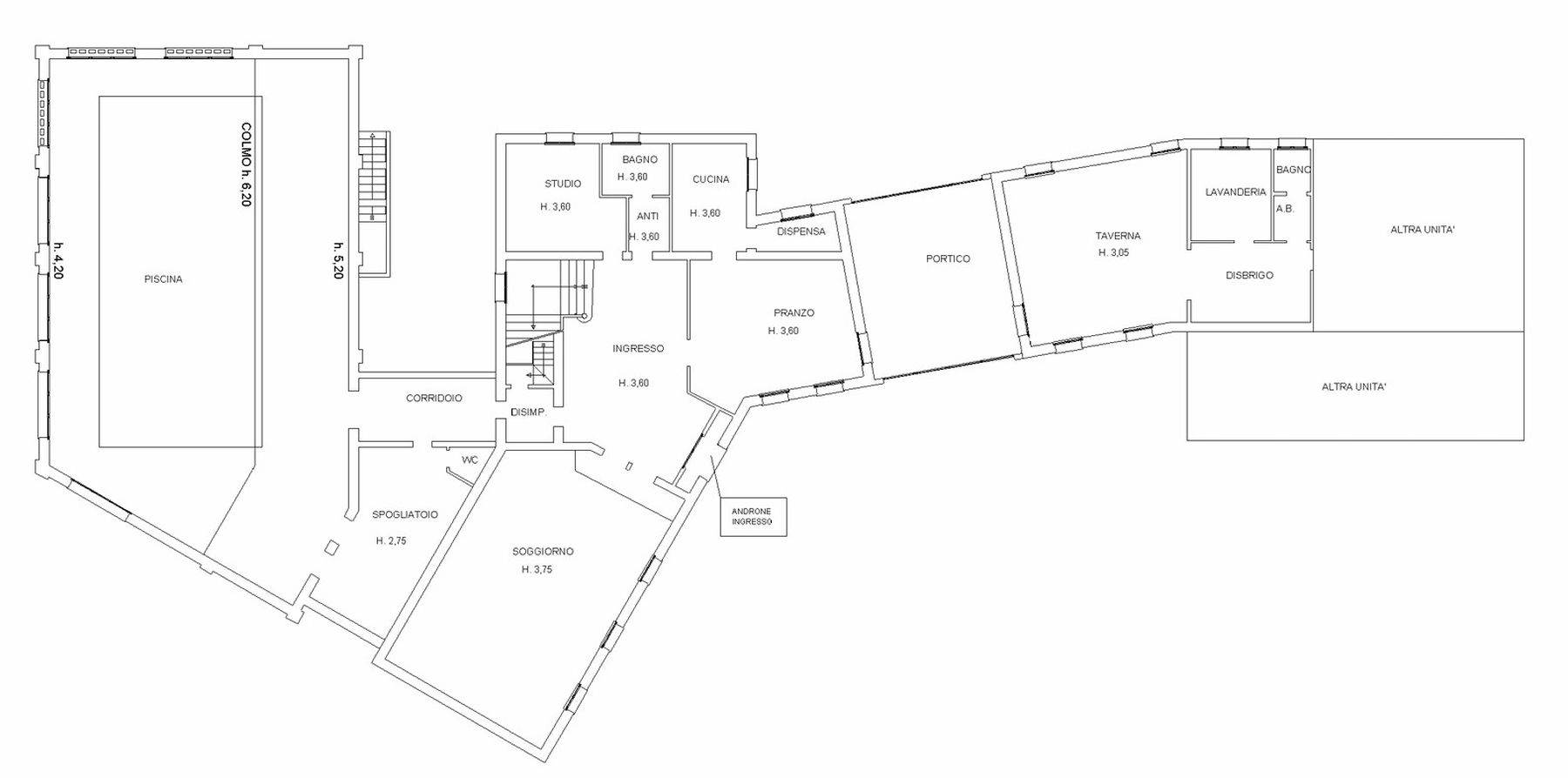
Descrizione sintetica: Villa a destinazione residenziale, sviluppato a piano terra e un altro corpo di fabbrica comprendente a piano terra un'autorimessa con antistante portico e, a piano primo, un'altra abitazione. Di pertinenza di tale fabbricato, vi sono alcuni corpi di fabbrica localizzati sul lato nord-ovest del fabbricato ed insistenti su area pertinenziale e precisamente locali tecnici, box auto piccolo e grande autorimessa, n. 2 ulteriori box auto adiacenti e pollaio, nonchè campo da tennis localizzato nella porzione sud-ovest dell'ampia area verde.

Aste Agency SRL offre il servizio di assistenza per acquistare tramite un mutuo con banche convenzionate. Assiste ed indirizza, dall’aggiudicazione fino alla consegna delle chiavi.

PERCHE’ COMPRARE ALL’ASTA:
- Acquisto sicuro tramite Tribunale;
- Prezzo inferiore rispetto al mercato libero, quindi rata del mutuo più bassa;
- Banche convenzionate con i Tribunali;
- Nessun vincolo di prezzo nella rivendita e nella locazione.

Le Aste Giudiziarie sono soluzioni abitative a prezzi unici, in quanto si compera ad un prezzo inferiore, paragonato alla realtà proibitiva del mercato libero, e l’investimento immobiliare risulta essere sicuramente conveniente.
Per maggiori delucidazioni vi invitiamo a contattarci. Sarà nostra premura fissare un appuntamento in studio e trasferirvi tutte le informazioni necessarie per un’attenta e serena valutazione.

ASTE AGENCY SRL – Contattateci per un appuntamento presso uno dei nostri uffici o in videochiamata.
Caratteristiche principali
Codice:
1855.21.250226.MN
Città:
Curtatone
Categoria:
Villa
Locali:
26
Camere:
10
Bagni:
6
Mq:
851
Piano:
Terra
Anno:
1967
Classe energetica:
G
Stato Immobile:
Buono
Grado:
Signorile
Arredi:
Non Arredato
Tipo Cucina:
Abitabile
Riscaldamento:
Autonomo
Fonte Energetica:
Metano
Acqua Calda:
Autonoma
Accesso Disabili:
No
Accesso interno disabili:
Non accessibile
Accessori
Piscina
Mappa
Via Punte , 92 - Curtatone (MN)
Planimetrie
Richiedi informazioni
Invia
Cookie preference